Bildegalleri

Velkommen til Tyinvegen 8543, en eiendom presentert av EiendomsMegler 1 Fjellmegleren!
Inaktiv
Tyin
Fritidsbolig med flott utsikt og fantastisk beliggenhet ved Tyinvannet.
Prisantydning2 690 000 kr
- Omkostninger
- 68 480 kr
- Totalpris
- 2 758 480 kr
- Formuesverdi
- 335 112 kr
- Verditakst
- 2 800 000 kr
Nøkkelinfo
- Beliggenhet
- På fjellet
- Boligtype
- Hytte
- Eieform
- Eier (Selveier)
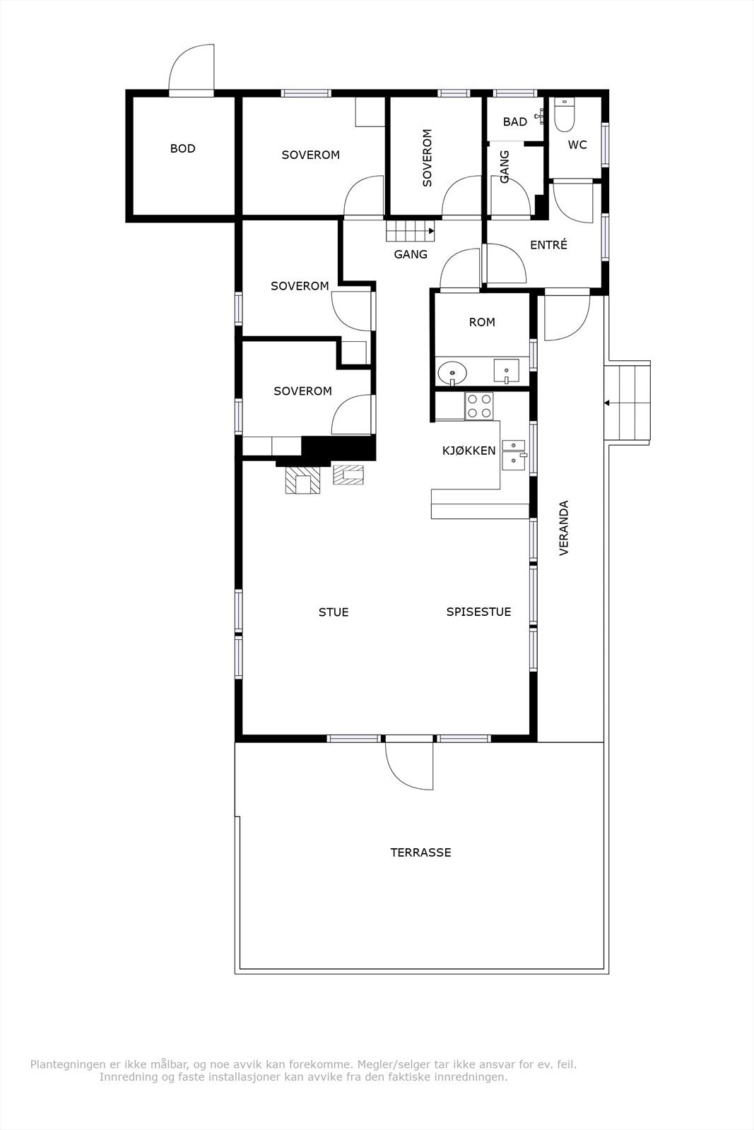
- Primærrom
- 95 m²
- Bruksareal
- 101 m²
- Tomteareal
- 1 008 m² (eiet)
- Byggeår
- 1991
- Soverom
- 4
- Energimerking
- E - Oransje
- Overtakelse
- Etter nærmere avtale med selger. Vær vennlig å angi ønsket overtagelsesdato i vedlagte budskjema.
Fasiliteter
Balkong/Terrasse
Peis/Ildsted
Rolig
Utsikt
Innlagt strøm
Turterreng
Visning
For visning utover den annonserte visningen, ta kontakt med selger, Inger Maria Sundal på telefon 414 59 129 eller megler på telefon 901 94 417.
Husk å lese komplett salgsoppgave før visning. Bestill komplett, utskriftsvennlig salgsoppgave.
VisningspåmeldingOm boligen
Vi har gleden av å presenterte Tyinvegen 8543, og denne flotte eiendommen med panoramautsikt utover Tyinvannet og den fantastiske fjellheimen.
En fritidseiendom beliggende på Tyin i et område kalt Reikesteinodden i Vang kommune.
Eiendommen ligger fint til, med gode solforhold og flott utsikt mot Tyinvannet og utsikt innover mot Jotunheimen.
Tyin er et fantastisk område som ligger ved inngangen til Jotunheimen, og er perfekt for å oppleve norsk storslått natur på sitt vakreste og villeste.
Hytte bygget på 1990-tallet, med en tradisjonell hyttestandard på overflater og utstyr.
- Fantastisk plassering i nærhet av Tyinvannet
- Panoramautsikt rett fra stuevinduet mot fjord og fjell
- Fire soverom, samt hems
- El-billader
Velkommen til visning!
En fritidseiendom beliggende på Tyin i et område kalt Reikesteinodden i Vang kommune.
Eiendommen ligger fint til, med gode solforhold og flott utsikt mot Tyinvannet og utsikt innover mot Jotunheimen.
Tyin er et fantastisk område som ligger ved inngangen til Jotunheimen, og er perfekt for å oppleve norsk storslått natur på sitt vakreste og villeste.
Hytte bygget på 1990-tallet, med en tradisjonell hyttestandard på overflater og utstyr.
- Fantastisk plassering i nærhet av Tyinvannet
- Panoramautsikt rett fra stuevinduet mot fjord og fjell
- Fire soverom, samt hems
- El-billader
Velkommen til visning!
NB: Knappen for å vise hele beskrivelsen har kun en visuell effekt.
NB: Knappen for å vise hele beskrivelsen har kun en visuell effekt.
Salgsoppgaven beskriver vesentlig og lovpålagt informasjon om eiendommen
Se komplett salgsoppgaveNyttige lenker
Nærområdet
EIE Fjellmegleren Valdres
Annonseinformasjon
| FINN-kode | 319769764 |
|---|---|
| Sist endret | 18. juli 2024 10:42 |
| Referanse | 1533230058 |
Annonsene kan være mangelfulle i forhold til lovpålagt opplysningsplikt. Før bindende avtale inngås oppfordres interessenter til å innhente komplett informasjon fra meglerforetaket, selger eller utleier.


































