Bildegalleri

Osen 14
Lekker tomannsbolig med alt på ett plan, utsikt og gode solforhold.
Lekker tomannsbolig med alt på ett plan, utsikt og gode solforhold.
Prosjektets status
Planlegging
-
Salgsstart
-
Byggestart
-
Overtakelse
-
Nøkkelinfo
- Boligtype
- Tomannsbolig
- Soverom
- 3
- Rom
- 4
- Primærrom
- 76 m²
- Bruksareal
- 76 m²
Beskrivelse
Oppdragsansvarlig
Østbø & Kaldheim Eiendomsmegling AS / Jan Erik Østbø
Selger/Utbygger
Brødrene Mæland Prosjekt AS
Betegnelse
Gnr. 271 Bnr. 151 Snr. 2 i Vindafjord kommune
Ideell andel: 1/1
Byggeår
2024
Beliggenhet
Attraktiv beliggenhet i Osen i Ølen med sørvestvendt uteplass. Her har gode solforhold og ligger i en stille og rolig blindgate. Gangavstand til Ølen sentrum
Bygninger
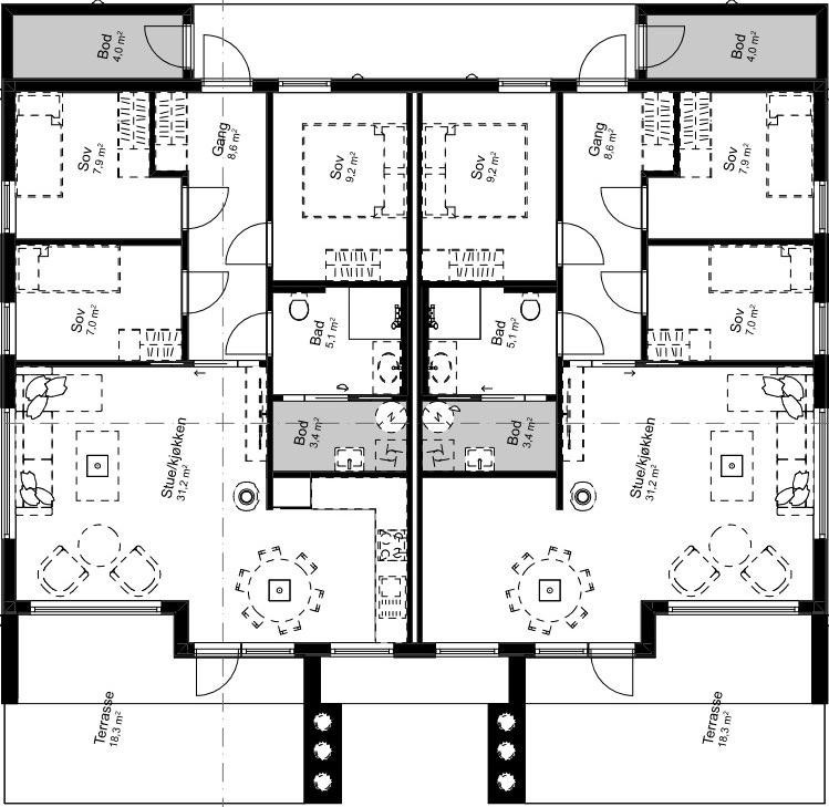
Vertikaldelt tomannsbolig.
Byggemåte
Boligen oppføres i tre bindingsverk, støpt plate
Arealer og fordeling pr. etasje
Primærrom: 76 kvm - 76 kvm, Bruksareal: 76 kvm - 76 kvm
Rom som er P-rom: Inneholder entre/gang, tre soverom, bad, bod/vaskerom, stue med åpen kjøkkenløsning
1.etasje: 76 kvm
Innhold
Innredet med alt på ett plan. Entre/gang, tre soverom, bad, bod/vaskerom og stue med åpen kjøkkenløsning.
Standard
Nyoppført bolig, bygges etter TEK17. Moderne innredet med malte slette overflater på vegger og tak. Males i fagen 1903-Y32R. Gulver i oppholdsrom får Kaminat plank i typen Pergo coastel oak. Lekker bad med fliser på gulv og i dusjsone. Ellers blir vegger behandlet med våtromsmaling. Kjøkken leveres fra HTH med integrert komfyr, platetopp, oppvaskmaskin og kjøl-/fryseskap. Se vedlagt beskrivelse og tegninger.
Oppvarming
Elektrisk og vedfyring
Adkomst
Følg vegen fra Ølen sentrum mot Dreganes, ta av første til høyre etter broen i Osen, første til venstre og naturlig bortover. en kommer da til område. Første byggtrinn er øverst på område ved lekeplassen.
Beskrivelse av tomt
Opparbeidet tomt med jordslåtte skråninger, asfaltert gårdsrom og ferdigplen.
Tinglyste rettigheter og forpliktelser
Kommunen har legalpant som sikkerhet for betaling av kommunale avgifter. Legalpant er pant som følger av loven, og som ikke tinglyses. Legalpant følger derfor eiendommen ved salg. På eiendommen kan det være tinglyst erklæringer som f eks rett for kommunen til å vedlikeholde rørsystemer for vann- og kloakk. Disse erklæringene vil følge eiendommen ved salg. Kontakt megler for nærmere informasjon.
Servitutter / rettigheter
Eiendommen overdras fri for pengeheftelser, med unntak av eventuelle erklæringer, avtaler, servitutter og panteheftelser som fremgår av salgsoppgaven og skal følge med eiendommen ved salg. Kjøpers bank vil få prioritet etter disse.
Vei / Vann / Avløp
Tilknyttet offentlig vann og avløp.
Ferdigattest eller midl. brukstillatelse
Ferdigattest/brukstillatelse vil foreligge før overtagelse.
Verdi ved skattefastsetting
Verdien ved skattefastsetting er p.t. ikke fastsatt. Verdien ved skattefastsetting fastsettes av Ligningskontoret etter beregningsmodell som tar hensyn til om boligen er en såkalt "primærbolig" (der boligeieren er folkeregistrert bosatt) eller "sekundærbolig" (alle boliger man eier, men ikke bor fast i). Interessenter oppfordres til å sjekke www.skatteetaten.no eller kontakte ansvarlig megler for nærmere informasjon om verdien ved skattefastsetting.
Reguleringsforhold
Område er regulert for bolig.
Andre faste løpende kostnader
Hver enkelt seksjon bærer sine utgifter. Offentlig avgifter er ikke fastsatt, men for denne type bolig ligger det i område 12.000 - 14.000,- pr år.
Oppgjør
Fult oppgjør ved overtagelse av boligen.
Finansiering
Kontakt megler for avklaring av finansielle forhold, herunder lån til kjøp av eiendom. Privatmegleren har avtale med Nordea om formidling av lån og andre finansielle tjenester. Privatmegleren mottar godtgjørelse for dette.
Adgang til utleie
Boligen kan fritt leies ut
Sikkerhetsstillelse
Alle eiendomsmeglingsforetak har lovpålagt forsikring av klientmidler begrenset oppad til kr 45 mill. Enkeltsaker er forsikret inntil kr 15 mill. Dersom kjøpers låneinstitusjon krever tilleggsforsikring ved omsetning over 15 millioner, må kjøper selv eller dennes låneinstitusjon dekke utgiftene forbundet med dette.
Planlagt overtagelse
Byggetid er beregnet ca. 12 mnd fra igangssettingstillatelse.
Selgers forbehold
Salg av minst 1 seksjon for igangsetting.
Solgt ihht bustadoppføringsloven
Boligene selges i henhold til Bustadoppføringslova som regulerer kjøpers (forbrukers) rettigheter og plikter ved avtale om oppføring av bolig og kjøp av fast eiendom der bygningen ikke er fullført når avtalen inngås. Ved salg til aksjeselskap legges Avhendingslovens bestemmelser til grunn. For øvrig gjelder Lov om eierseksjoner for eierseksjonssameiet og driften av dette.
Garantier
Det stilles garantier i henhold til Bustadoppføringslovas bestemmelser. Garanti etter § 12 vil bli stilt i forbindelse med avtaleinngåelse. Garantien skal være pålydende 3% av kjøpesummen i byggetiden og 5% i 5 år etter overlevering av boligene til kjøper. Garanti etter § 47 forutsettes stilt om selger ønsker utbetalt forskudd/delinnbetaling/sluttoppgjør før hjemmelsovergang. Eventuelle påkrevde endringer av garantier ved eventuelle videresalg/transporter utføres ikke og bekostes ikke av selger.
Forsikring
Frem til overtagelse vil eiendommen være forsikret av selger. Etter overtagelse vil eiendommen forsikres gjennom sameiets fellesforsikring. Kjøper må selv besørge innboforsikring og forsikring av eventuelle særskilte påkostninger.
Budgiving
Boligene selges til fastpris.
Alle bud/kjøpetilbud på eiendommen skal være skriftlig og sendes meglerforetaket pr. fax, mail, sms eller via vår "gi bud"-knapp på våre nettsider. Knappen finner du også på Privatmeglerens hjemmeside for prosjektet, se på den enkelte bolig.
Bud/kjøpetilbud må ikke ha kortere akseptfrist enn til kl. 12.00 første virkedag etter siste annonserte visning. Lørdag regnes ikke som virkedag. Bud/kjøpetilbud med kortere frist enn dette kan ikke formidles av megler. Nærmere info om budgiving finner du på egen side sammen med kjøpetilbud/budskjema.
Som budgiver hos Privatmegleren kan du kreve budjournal fremlagt så snart handel er gjennomført.
Innhold i budjournal er lovregulert, og innebærer at budgivere må akseptere at opplysninger om budet kan bli fremlagt for selger, kjøper og øvrige budgivere. Budgiver som ikke blir kjøper, kan kreve kopi av anonymisert budjournal.
Lov om hvitvasking
Megler er underlagt lov om hvitvasking som innebærer plikt til å melde ifra til Økokrim om mistenkelige transaksjoner
Meglers vederlag og utlegg
Dersom eiendommen ikke omsettes, faktureres selger for direkte utlegg.
Nyttige lenker
Nærområdet
PrivatMegleren Østbø & Kaldheim
Annonseinformasjon
| FINN-kode | 319764417 |
|---|---|
| Sist endret | 22. des. 2025 03:11 |
| Referanse | 314230198 |
Annonsene kan være mangelfulle i forhold til lovpålagt opplysningsplikt. Før bindende avtale inngås oppfordres interessenter til å innhente komplett informasjon fra meglerforetaket, selger eller utleier.













