Bildegalleri

Fasade. Kontorene ligger i 2. etasje med egen inngang.
TORGÅRD - Lyse og fine cellekontor med møterom, parkering og egen inngang.
Nøkkelinfo
- Areal
- 56 m²
- Bruttoareal
- 56 m²
- Tomt
- Eiet
Type lokale
Fasiliteter
Kort om eiendommen
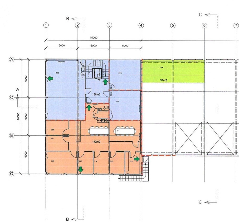
Arealene som skal leies ut er 3 cellekontor på ca. 12 kvm BTA og et større hjørnekontor på ca. 20 kvm BTA.
Det er totalt 7 kontor i etasjen.
Felles møterom, kjøkken og spiseplass samt toaletter og dusj.
Det er tilgang til heis og et større møterom/ klasserom.
Egen inngang via utvendig trapp.
Gjennomgående god standard med fliser på gulv og lyse vegger, balansert ventilasjon, fjernvarme og solskjerming.
P-plass pr kontor inngår i leien.
Kontorene er ledigstilt.
Eiendommen ligger i et attraktivt industriområde for lager, logistikk og transport syd for Trondheim. Lett tilgang til E6 syd, Klæbu og til Trondheim sentrum, beliggende ca. 13 km syd for Trondheim og nært til E6.
Beliggenhet
Torgårdstrøa 4 ligger til midt i det nye lager-, logistikk- og industriområdet Kvenild og Torgård, beliggende ca. 13 km syd for Trondheim og nært til E6.
Adkomst
Fra Trondheim følger en E6 syd over Heimdalsmyra. Ta av til Klæbu ved Sandmoen. Når en har kjørt over E6, kjører en rett frem i 1. rundkjøring og tar til høyre ved REMA lageret inn til det nye industriområdet Kvenild og Torgård.Torgårdstrøa ligger på venstre hånd.
Ca 13 km fra Trondheim sentrum og ca 13 minutter å kjøre med bil.
Kommer en fra syd, tar en av til høyre ved Sandmoen bensinstasjon.
Ved å trykke på kartet får du enkelt tilgang til en spesifisert reiserute fra din startdestinasjon til eiendommen.
Innhold
Arealet er totalt ca. 95 kvm og ligger i 2. etasje inneholde 4 cellekontor, felles møterom og kjøkken. Parkering på byggets tomt og egen inngang til arealet.
Eksklusivt areal er ca. 56 kvm BTA.
Standard
Gjennomgående god standard med fliser på gulv og lyse vegger, balansert ventilasjon, fjernvarme og solskjerming.
Parkering
Parkering på eiendommen. Avtales direkte med fremleier. Parkeringsarealet er merket rosa på skissen.
Ansvarlig megler
Kirsten Setsaas
Matrikkelinformasjon
Visning
Ta kontakt for å avtale visning.Nyttige lenker
Creto Næringsmegling AS
Nærområdet
Annonseinformasjon
| FINN-kode | 318702730 |
|---|---|
| Sist endret | 12. okt. 2023 12:32 |
| Referanse | CN9.2324 |
Annonsene kan være mangelfulle i forhold til lovpålagt opplysningsplikt. Før bindende avtale inngås oppfordres interessenter til å innhente komplett informasjon fra meglerforetaket, selger eller utleier.


















