Bildegalleri

Røstøen Nord
Ditt eget lille hjem
Et flunkende nytt hjem der ingen har bodd før deg!
Prisantydning3 779 900 kr
Kort om prosjektet
Fått deg ny jobb i Industriparken på Raufoss? Da må du jo feire med ny enebolig! Vi har en som er innflyttingsklar på Reinsvoll, kun få minutter unna. KVANT-eneboligene har alt du trenger på ett plan. Se det flotte området i videoen over!
Prosjektets status
Planlegging
Ferdig prosjektert
Salgsstart
KVANT i salg!
Byggestart
Nr 45 er innflyttingsklar
Overtakelse
Etter avtale
Nøkkelinfo
- Boligtype
- Enebolig
- Soverom
- 3
- Bruksareal
- 93 m²
Visning
Ta kontakt for å avtale visning.Beskrivelse
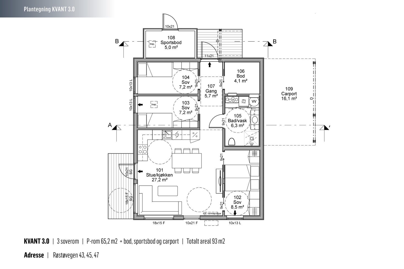
Til deg som ønsker deg en smart og areal effektiv enebolig, med alt du trenger p å ett plan!
Her har vi planlagt en KVANT 3.0 med 3 soverom, innvendig bod, sportsbod og carport.
Byggestart er ikke fastsatt, så løp og kjøp!
NB: Knappen for å vise hele beskrivelsen har kun en visuell effekt.
NB: Knappen for å vise hele beskrivelsen har kun en visuell effekt.
Nærområdet
Mesterhus Innlandet AS
- det blir som avtalt
Annonseinformasjon
| FINN-kode | 318423151 |
|---|---|
| Sist endret | 12. feb. 2026 13:33 |
| Referanse | 47 - KVANT 3.0 |
Annonsene kan være mangelfulle i forhold til lovpålagt opplysningsplikt. Før bindende avtale inngås oppfordres interessenter til å innhente komplett informasjon fra meglerforetaket, selger eller utleier.





