Bildegalleri
Ditt eget lille hjem
Innflyttingsklar! Et flunkende nytt hjem der ingen har bodd før deg!
Pris på lån: fra 14 337 kr/mnd
Eff.rente 5,16 %. 2 442 300 o/25 år. Kostnad: 1 858 800 kr. Totalt 4 301 100 kr.
LånekalkulatorKort om prosjektet
Fått deg ny jobb i Industriparken på Raufoss? Da må du jo feire med ny enebolig! Vi har en som er innflyttingsklar på Reinsvoll, kun få minutter unna. KVANT-eneboligene har alt du trenger på ett plan. Se det flotte området i videoen over!
Prosjektets status
Planlegging
Ferdig prosjektert
Salgsstart
KVANT i salg!
Byggestart
Nr 45 er innflyttingsklar
Overtakelse
Etter avtale
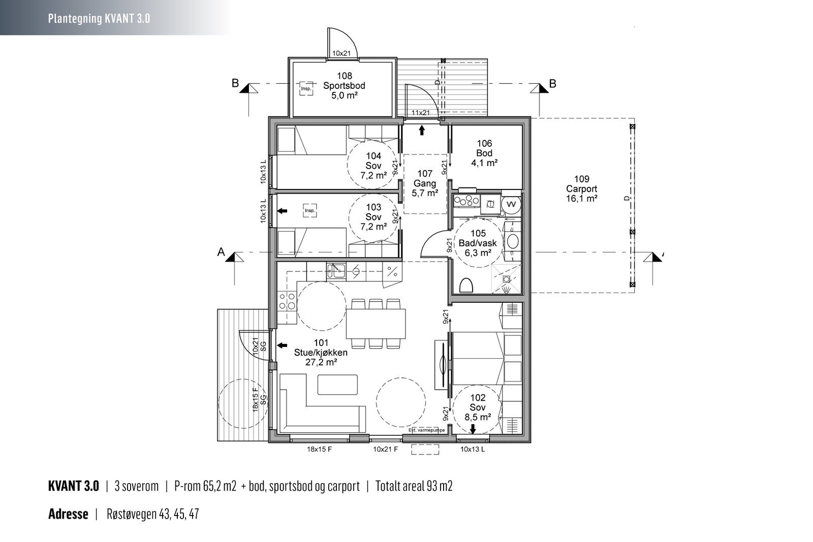
Nøkkelinfo
- Boligtype
- Enebolig
- Soverom
- 3
- Bruksareal
- 93 m²
Fasiliteter
Visning
Ta kontakt for å avtale visning.Beskrivelse
Til deg som ønsker deg en smart og areal effektiv enebolig, med alt du trenger på ett plan!
Klar til å ta med deg godstolen og flytte inn allerede i dag!
Her har vi bygd en KVANT 3.0 med 3 soverom, innvendig bod, sportsbod og carport.
Boligens p-rom: 6
Nærområdet
Mesterhus - Mesterhus Innlandet AS
Annonseinformasjon
| FINN-kode | 318423092 |
|---|---|
| Sist endret | 13. nov. 2025 09:45 |
| Referanse | 45 - KVANT 3.0 |
Annonsene kan være mangelfulle i forhold til lovpålagt opplysningsplikt. Før bindende avtale inngås oppfordres interessenter til å innhente komplett informasjon fra meglerforetaket, selger eller utleier.



