Bildegalleri

Jannik Holm (916 51 902) v/Schala & Partners har gleden av å presentere denne 2-roms andelsleiligheten i Betzy Kjelsbergs vei 11!
Solgt før visning. Lignende søkes! Oppussingsobjekt med solrik balkong og spektakulær utsikt | 11.etg m/heis
Nøkkelinfo
- Boligtype
- Leilighet
- Eieform
- Andel
- Soverom
- 1
- Primærrom
- 65 m²
- Bruksareal
- 65 m²
- Etasje
- 11
- Byggeår
- 1960
- Energimerking
- F - Oransje
- Tomteareal
- 14 284 m² (eiet)
Fasiliteter
Om boligen
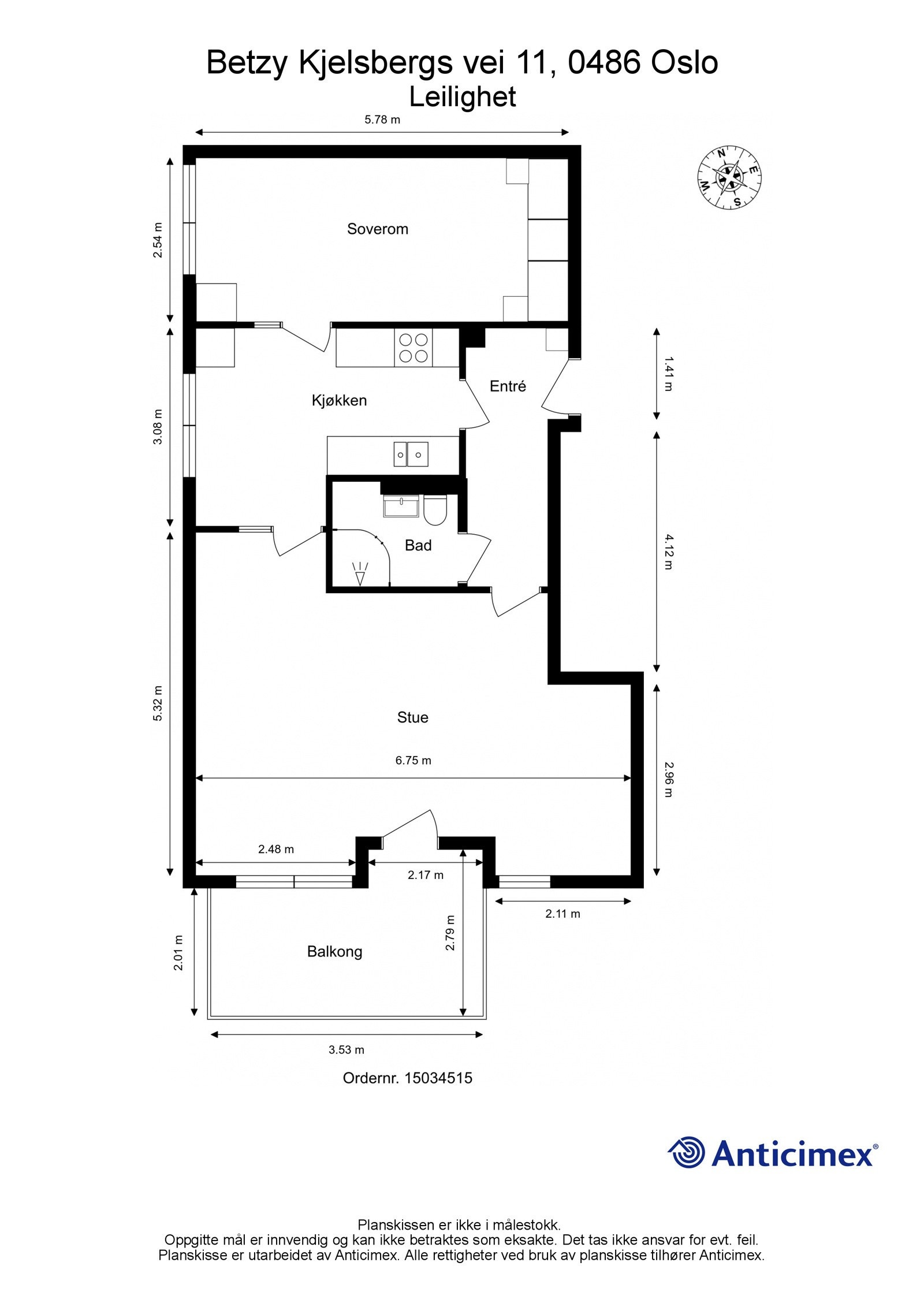
Vi ønsker deg velkommen til Betzy Kjelsbergs vei 11 - En lys og arealeffektiv 2-roms med massevis av potensiale! Leiligheten ligger høyt og fritt i byggets 11. etasje (med heis), med brede vindusflater som sørger for gode innvendige lysforhold og en luftig atmosfære. Her får du også en herlig balkong med panoramautsikt, svært gode solforhold og helt uten sjenerende innsyn.
Leiligheten ligger i et meget attraktivt og barnevennlig boligområde på Grefsen. Eiendommen ligger like ved Grefsen skole, og har nærhet til både marka, barnehager, offentlig kommunikasjon og flere gode servicetilbud.
NB! Boligen er moden for oppussing!
- Solrik balkong med panoramautsikt
- Lys og arealeffektiv
- Gode rom
- 2 disponible kjellerboder
- 11etg m/heis
- Vv + TV/internett inkl
- Fellesvaskeri
- Attraktivt og sentralt
- Nærhet til marka
Salgsoppgaven beskriver vesentlig og lovpålagt informasjon om eiendommen
Se komplett salgsoppgaveNyttige lenker
Nærområdet
Schala & Partners Lørenskog
Prisstatistikk
Betzy Kjelsbergs vei 11
på annonsen
prisantydning per kvadratmeter
Prisfordeling
Pris per m² ligger 31 188 kr under snittet for leiligheter i Grefsen - Kjelsås.
Grafen viser antall leiligheter solgt i Grefsen - Kjelsås siste året fordelt på pris per m² - totalt 464 leiligheter
Antall boliger
Kvadratmeterpris tilsvarer prisantydning pluss fellesgjeld per kvadratmeter (p-rom eller BRA-i). Prisene i grafen er avrundet til nærmeste 1000 kr.
Annonseinformasjon
| FINN-kode | 317302561 |
|---|---|
| Sist endret | 07. sep. 2023 08:29 |
| Referanse | 71230105 |
Annonsene kan være mangelfulle i forhold til lovpålagt opplysningsplikt. Før bindende avtale inngås oppfordres interessenter til å innhente komplett informasjon fra meglerforetaket, selger eller utleier.



































