Bildegalleri

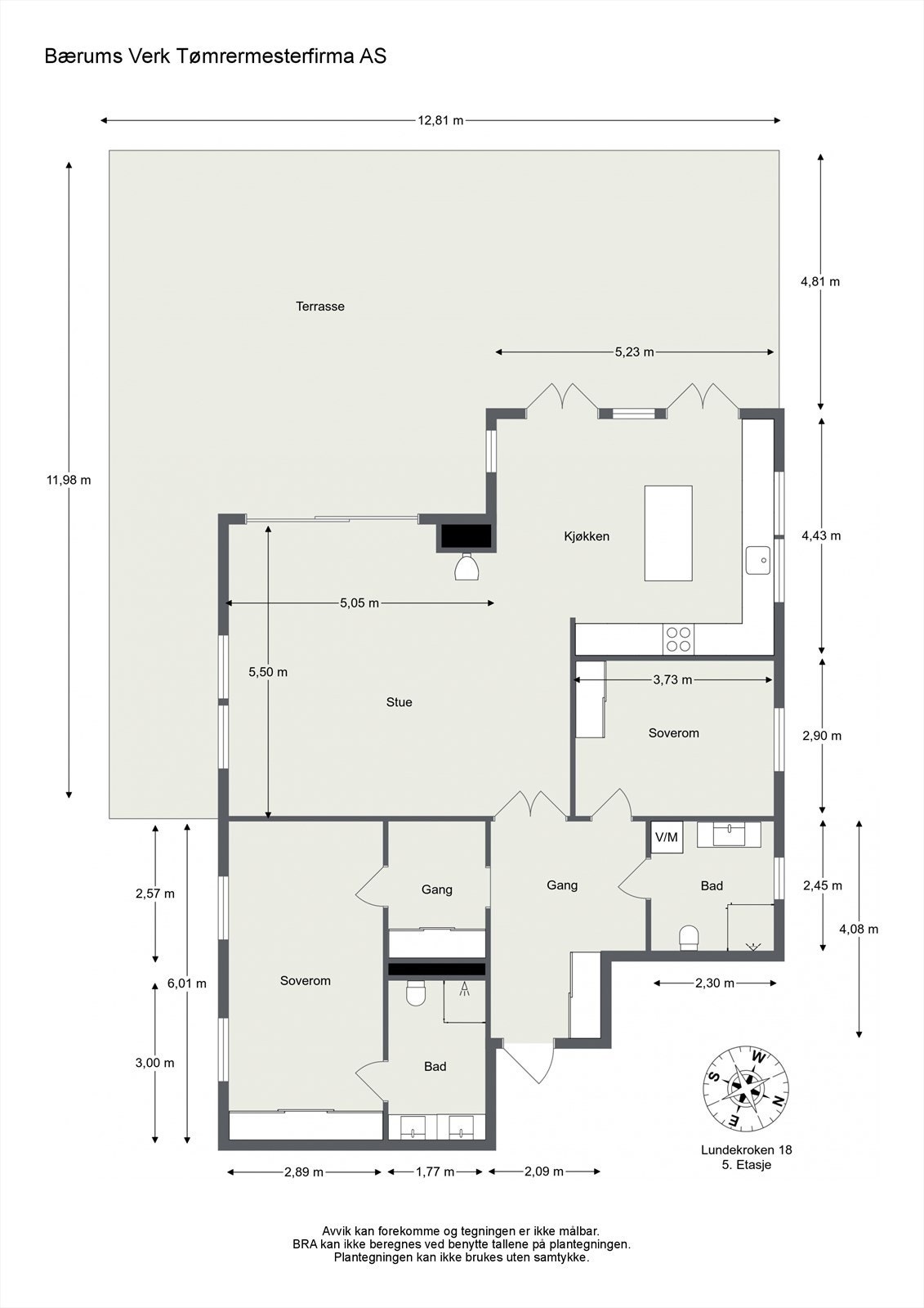
Velkommen til Lundekroken 18 - En moderne, påkostet og unik toppleilighet med fantastisk takterrasse på ca. 87 kvm.
Inaktiv
Billingstad
Strøken & unik penthouseleilighet - Takterrasse på 87m2 med fantastisk utsikt og uten sjenerende innsyn - Heis & garasje
Prisantydning18 600 000 kr
Nøkkelinfo
- Boligtype
- Leilighet
- Eieform
- Eier (Selveier)
- Soverom
- 2
- Primærrom
- 113 m²
- Bruksareal
- 113 m²
- Etasje
- 5
- Byggeår
- 2014
- Energimerking
- C - Oransje
- Rom
- 3
- Tomteareal
- 4 691 m² (eiet)
- Bruttoareal
- 123 m²
Fasiliteter
Takterrasse
Balkong/Terrasse
Barnevennlig
Bredbåndstilknytning
Garasje/P-plass
Heis
Kjæledyr tillatt
Ingen gjenboere
Kabel-TV
Offentlig vann/kloakk
Parkett
Peis/Ildsted
Rolig
Sentralt
Utsikt
Vaktmester-/vektertjeneste
Bademulighet
Turterreng
Lademulighet
Om boligen
Velkommen til Lundekroken 18! En stilren og unik toppleilighet beliggende i et meget tilbaketrukkent og attraktivt område på Billingstad, med svært kort vei til alt man trenger i hverdagen. Her bor du rolig og skjermet til, uten gjennomgangstrafikk, samtidig som det er umiddelbar nærhet til det urbane byliv, off. komm, butikker og flotte turområder.
Fremstående kvaliteter:
- Takterrasse på ca. 87m2 med panoramautsikt og uten sjenerende innsyn
- Jacuzzi
- Høy og påkostet standard
- Håndlagde og eksklusive innredninger
- Sol fra morgen til kveld
- 2 sov av god størrelse + 2 bad
- Garasje m. EL-billader
- Vannbåren gulvvarme + VV + TV/Internett inkl. i felleskostnader
- Heis
- Gasspeis fra Faber
- Balansert ventilasjon
- Utv. bod + kjellerbod
Fremstående kvaliteter:
- Takterrasse på ca. 87m2 med panoramautsikt og uten sjenerende innsyn
- Jacuzzi
- Høy og påkostet standard
- Håndlagde og eksklusive innredninger
- Sol fra morgen til kveld
- 2 sov av god størrelse + 2 bad
- Garasje m. EL-billader
- Vannbåren gulvvarme + VV + TV/Internett inkl. i felleskostnader
- Heis
- Gasspeis fra Faber
- Balansert ventilasjon
- Utv. bod + kjellerbod
NB: Knappen for å vise hele beskrivelsen har kun en visuell effekt.
NB: Knappen for å vise hele beskrivelsen har kun en visuell effekt.
Salgsoppgaven beskriver vesentlig og lovpålagt informasjon om eiendommen
Se komplett salgsoppgaveNyttige lenker
Nærområdet
Nordvik Bærum
Annonseinformasjon
| FINN-kode | 316398581 |
|---|---|
| Sist endret | 27. sep. 2023 08:47 |
| Referanse | NOP56.23124 |
Annonsene kan være mangelfulle i forhold til lovpålagt opplysningsplikt. Før bindende avtale inngås oppfordres interessenter til å innhente komplett informasjon fra meglerforetaket, selger eller utleier.






































































