Bildegalleri

Plantegning leil. A3
Hyllveien Madserud
20 leiligheter beliggende i et rolig område med Frognerparken som nærmeste nabo!
Prosjektets status
Planlegging
-
Salgsstart
Salget er i gang
Byggestart
Ferdigstilt august 2025
Overtakelse
Innflyttingsklart
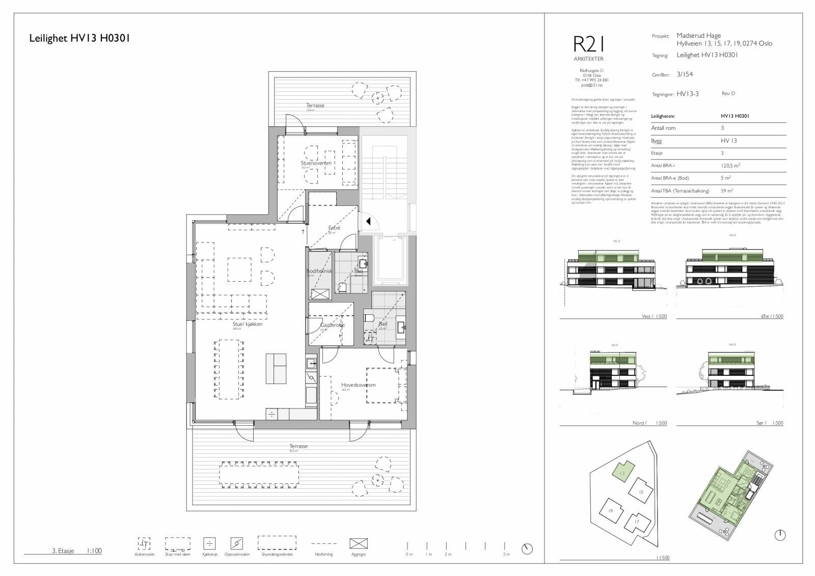
Nøkkelinfo
- Boligtype
- Leilighet
- Etasje
- 3
- Soverom
- 2
- Rom
- 3
- Internt bruksareal
- 120 m² (BRA-i)
- Bruksareal
- 125 m²
- Eksternt bruksareal
- 5 m² (BRA-e)
- Balkong/Terrasse
- 59 m² (TBA)
Beskrivelse
Betegnelse
Gnr. 3 Bnr. 668 Snr. 3 og Gnr. 3 Bnr. 668 Snr. 22 i Oslo kommune
Byggeår
2024
HYLLVEIEN MADSERUD
Madserud er et fredfullt og ærverdig gammelt villaområde, kjent for sin rolige atmosfære og sentrale beliggenhet. Med flotte byvillaer side om side, er Madserud et av Oslos mest fasjonable områder. Området grenser til det praktfulle Vigelandsanlegget i Frognerparken, som regnes blant Norges mest imponerende parker. Går du andre veien kommer du til Karenslyst allé, som inneholder det du trenger i det daglige. På Madserud har du det som plommen i egget.
Hyllveien ligger i hjertet av Madserud. Du har nærhet til et av Norges flotteste og frodigste parkanlegg samtidig som du har nærhet til Skøyen stasjon. Likevel bor du skjermet fra all trafikkstøy og mylder. i Hyllveien kan du nyte stillheten og roen og høre fuglene kvitre. Du bor både skjermet og sentralt.
rett ved eiendommen ligger Oslo Tennisklubb, som skal utvikles til et toppmoderne tennisanlegg, noe som vil være en fantastisk ressurs nærområdet.
KVALITETER
Hyllveien er i en klasse for seg, med upåklagelig beliggenhet og byggenes sammensetting fra materialitet, planløsning og standard til utomhus og hage. Her kombineres klassiske detaljer med unike planløsninger og et sterkt fokus på materialvalg og utførelse. Hyllveien serverer kvalitet, elegante løsninger og moderne fortreffelighet. For de som søker noe mer, er dette prosjektet det perfekte valget.
Kjøkkenet i Hyllveien er elegant og smakfullt med eksklusive løsninger, vakre detaljer og funksjonell design. Kjøkkenet er fra den italienske produsenten Poliform, levert av Expo Nova. Alle hvitevarer er fra Gaggenau og Siemens.
Badene har en sofistikert og tidløs stil, som gir en luksuriøs følelse til ethvert baderom. Tapwell leverer takdusj og førsteklasses armatur som tilfører et elegant preg. De fantastiske Beren Flisene fra Living Ceramics og sort eik servantmøbel gir badene en behagenlig følelse.
Alle leilighetene har 2 eller 3 soverom, hvorav hovedsoverommet har egne en-suite bad. De er gjerne skjermet bort fra stue- og kjøkkendel, for mest mulig ro og skjerming.
Leilighetene har store vindusflater og hjørnevinduer som gir godt med lys og utsyn i flere retninger.
Alle ingangspartier i prosjektet er elegant utsmykket med den vakre lyskronen Drop Chandelier Bulb fra 101 Copenhagen.
LEILIGHETENE
Hyllveien Madserud består av fire individuelle bygninger, der bygningene A og D gir rom for tre storslåtte leiligheter, hver med sin egen etasje. Toppleilighetene prydes med private takterrasser. Bygg B og C reiser seg over fire etasjer, med to leiligheter på hver av de tre første etasjene, og en eksklusiv toppleilighet med privat takterrasse.
Uansett hvilken leilighet du velger, er hver leilighet bundet sammen med en underjordisk parkeringskjeller via heis - noe som gir Hyllveien Madserud den perfekte blandingen av elegant design og moderne bekvemmelighet.
PRIVATE UTEAREALER
Terrassen blir en strålende forlengelse av stuen, hvor innenførs og utendørs liv fusjonerer sømløst, og skaper et harmonisk rom for avslapning i naturskjønne omgivelser. Store dører åpner opp mellom kjøkken og terrasse på solfylte dager og skaper en unik romfølelse.
De øverste etasjene blir beriket med private takterrasser som tilbyd beboerne en eksklusiv og avslappende utendørs oase, med fantastisk utsikt og mulighet for sosiale sammenkomster.
TILVALG
I Hyllveien har arkitekter og interiørarkitekt gått sammen om å skape et tidsriktig konsept. Kvaliteter i interiør spiller sammen med arkitektoniske grep på fasade og i utomhusarealer for å skape en harmonisk helhet.
Det er likevel anledning for den enkelte kjøper til å bestille tilvalg dersom det er ønskelig. Eksempelvis type parkett, malingsfarger, kjøkkenoverflater o.l.
UTOMHUS
Som et tilskudd i en bydel med historisk kapital, skal uterommet på Hyllveien stå som en forlengelse av det frodige parkanlegget til Frognerparken og bli en del av det nye parkanlegget til Oslo Tennisklubb. Bølgende terreng, prydbusker, fargesprangende stauder og voluminøse busker bidrar til å skape et romforløp og gir assosiasjoner til de engelske hagene. Heller, kantstein og murer i lys granitt, bidrar til å strukturere tomtens grøntareal, forbindelseslinjer og adkomster.
Arealer og fordeling pr. etasje
Primærrom: 120,50 kvm, Bruksareal: 125,50 kvm, BRA-i: 120,50 kvm , BRA-e: 5 kvm , TBA: 59 kvm
Oppvarming
Primær oppvarming i leilighetene er vannbåren gulvvarme. Temperaturen styres ved termostater montert på vegg eller i skap. Varmt forbruksvann og
vannbåren varme på baderom tilknyttes fjernvarmeanlegg.
Parkering / Garasje
Hver seksjon har mulighet for kjøp av en p-plass i felles parkeringskjeller. Pris pr. plass kr 1 200 000,-. Selger forbeholder seg retten til organisering av p-plassene og p-kjelleren for øvrig.
Tinglyste rettigheter og forpliktelser
Kommunen har legalpant som sikkerhet for betaling av kommunale avgifter. Legalpant er pant som følger av loven, og som ikke tinglyses. Legalpant følger derfor eiendommen ved salg. På eiendommen kan det være tinglyst erklæringer som f eks rett for kommunen til å vedlikeholde rørsystemer for vann- og kloakk. Disse erklæringene vil følge eiendommen ved salg. Kontakt megler for nærmere informasjon.
Øvrige sameiere har panterett i seksjonen for krav mot sameieren som følge av sameieforholdet, jf. eierseksjonsloven § 31. Pantekravet kan ikke overstige 2G (Folketrygdens grunnbeløp). Sameiet kan vedtektsfeste ytterligere panterett for sameiet. Vedtektsfestet pant tinglyses i seksjonene.
Servitutter / rettigheter
Eiendommen overdras fri for pengeheftelser, med unntak av eventuelle erklæringer, avtaler, servitutter og panteheftelser som fremgår av salgsoppgaven og skal følge med eiendommen ved salg. Kjøpers bank vil få prioritet etter disse.
Ferdigattest eller midl. brukstillatelse
Det prosjekteres og bygges i henhold til Byggteknisk forskrift TEK17. Selger har ansvaret for at det foreligger brukstillatelse eller ferdigattest på leiligheten senest ved kjøpers overtakelse av leiligheten.
Verdi ved skattefastsetting
Verdien ved skattefastsetting er p.t. ikke fastsatt. Verdien ved skattefastsetting fastsettes av Ligningskontoret etter beregningsmodell som tar hensyn til om boligen er en såkalt "primærbolig" (der boligeieren er folkeregistrert bosatt) eller "sekundærbolig" (alle boliger man eier, men ikke bor fast i). Interessenter oppfordres til å sjekke www.skatteetaten.no eller kontakte ansvarlig megler for nærmere informasjon om verdien ved skattefastsetting.
Beskrivelse av sameiet
En sameier eier en andel i eiendommen, med tilknyttet enerett til bruk av sin bruksenhet, jf. eierseksjonsloven § 25.
Ingen kan erverve mer enn to boligseksjoner i et sameie, jf. eierseksjonsloven § 23 første ledd. Dersom et erverv har funnet sted i strid med eierseksjonslovens regler kan Kartverket nekte overskjøting.
Dersom overskjøting blir nektet, er kjøper likevel forpliktet til å gjennomføre handelen med selger, og oppgjør til selger vil finne sted tross manglende overskjøting.
Interessenter oppfordres til å sette seg inn i sameiets vedtekter, husordensregler, regnskap, budsjett, årsberetning m.m. Se særlig om vedtekter og husordensregler knyttet til husdyrhold, dugnader, trappevask o.l.
Andre faste løpende kostnader
Kr. 4 080,- pr. .
Felleskostnader inkluderer blant annet vaktmestertjenester, kommunale avgifter, vann og avløp, renovasjon, snømåking,
strøing, gressklipping, vedlikehold av fellesarealer, forretningsfører, TV/bredbånd og bygningsforsikring.
Månedlige felleskostnader er gjennomsnittlig stipulert til ca. kr 34,- pr. kvm. BRA.
Fjernvarme avregnes á-konto. Det beregnes kr 15 pr. kvm. BRA og kommer i tillegg til beregnet felleskostnad pr. mnd.
Ved kjøp av parkeringsplass kommer driftskostnad pr. plass pr. mnd. kr 400,- i tillegg til beregnet felleskostnad.
Oslo Kommune har eiendomsskatt. Den enkelte seksjonseier vil faktureres for eiendomsskatt direkte fra kommunen. Dette kommer i tillegg til budsjetterte driftskostnader. Det tas forbehold om endringer i offentlige skatter og avgifter.
Kjøper plikter å betale sin andel av fellesutgiftene forsameiet fra overtakelse. Budsjett over fellesutgiftene stadfestes av sameiet på ekstraordinær generalforsamling forut for overtakelse. Fellesutgiftene består blant annet av kapitalkostnader (som omtalt ovenfor) og drifts- og vedlikeholdskostnader. Se utkast til budsjett for sameiet inntatt som vedlegg. Størrelsen på de faktiske utgiftene avhenger blant annet av hvilke ytelser/tjenester sameiet rekvirerer.
Oppgjør
Forskudd tilsvarende 10 % av kjøpesum betales til meglers klientkonto så snart kjøper har mottatt bekreftelse fra megler om at selger har stilt entreprenørgaranti etter buofl. § 12. Forskudd innbetalt til meglers klientkonto er selgers penger og under selgers råderett fra det tidspunkt selger har stilt garanti etter buofl. § 47. Også avkastning av pengene er selgers fra det tidspunkt selger har oppfylt vilkårene for å motta forskudd.
Innbetalingen av 10 % skal være i form av ubundet egenkapital. Det vil si at det ikke skal etableres pant i boligen (eller i eiendommen hvor boligen inngår) som sikkerhet for kjøpers finansiering av håndpenger. Eventuelle tilleggsbestillinger/endringer betales etter nærmere avtale med selger.
Resterende del av kjøpesummen betales innen kl. 16.00, 3 dager før overtakelse. Dersom det skal utbetales noen del av kjøpesummen fra meglers klientkonto før boligen er overskjøtet til kjøper, skal selger stille garanti som dekker det beløp som skal
disponeres jf. buolf. § 47
Finansiering
Kontakt megler for avklaring av finansielle forhold, herunder lån til kjøp av eiendom. Privatmegleren har avtale med Nordea om formidling av lån og andre finansielle tjenester. Privatmegleren mottar godtgjørelse for dette.
Annen viktig informasjon
Interessenter oppfordres til å sette seg godt inn i salgsoppgaven og tilhørende salgsdokumenter før det legges inn bud.
Salgsoppgave med vedlegg kan lastes ned fra denne annonsen eller fra prosjektets hjemmeside: https://hyllveien.no/
Sikkerhetsstillelse
Alle eiendomsmeglingsforetak har lovpålagt forsikring av klientmidler begrenset oppad til kr 45 mill. Enkeltsaker er forsikret inntil kr 15 mill. Dersom kjøpers låneinstitusjon krever tilleggsforsikring ved omsetning over 15 millioner, må kjøper selv eller dennes låneinstitusjon dekke utgiftene forbundet med dette.
Solgt ihht bustadoppføringsloven
Boligene selges i henhold til Bustadoppføringslova som regulerer kjøpers (forbrukers) rettigheter og plikter ved avtale om oppføring av bolig og kjøp av fast eiendom der bygningen ikke er fullført når avtalen inngås. Ved salg til aksjeselskap legges Avhendingslovens bestemmelser til grunn. For øvrig gjelder Lov om eierseksjoner for eierseksjonssameiet og driften av dette.
Garantier
Det stilles garantier i henhold til Bustadoppføringslovas bestemmelser. Garanti etter § 12 vil bli stilt i forbindelse med avtaleinngåelse. Garantien skal være pålydende 3% av kjøpesummen i byggetiden og 5% i 5 år etter overlevering av boligene til kjøper. Garanti etter § 47 forutsettes stilt om selger ønsker utbetalt forskudd/delinnbetaling/sluttoppgjør før hjemmelsovergang. Eventuelle påkrevde endringer av garantier ved eventuelle videresalg/transporter utføres ikke og bekostes ikke av selger.
Forsikring
Frem til overtagelse vil eiendommen være forsikret av selger. Etter overtagelse vil eiendommen forsikres gjennom sameiets fellesforsikring. Kjøper må selv besørge innboforsikring og forsikring av eventuelle særskilte påkostninger.
Budgiving
Alle budskjøpetilbud på eiendommen skal være skriftlig og sendes meglerforetaket pr. fax, mail, sms eller via vår "gi bud"-knapp på våre nettsider. Knappen finner du også på Privatmeglerens hjemmeside for prosjektet, se på den enkelte bolig.
Bud/kjøpetilbud må ikke ha kortere akseptfrist enn til kl. 12.00 første virkedag etter siste annonserte visning. Lørdag regnes ikke som virkedag. Bud/kjøpetilbud med kortere frist enn dette kan ikke formidles av megler. Nærmere info om budgiving finner du på egen side sammen med kjøpetilbud/budskjema.
Som budgiver hos Privatmegleren kan du kreve budjournal fremlagt så snart handel er gjennomført.
Innhold i budjournal er lovregulert, og innebærer at budgivere må akseptere at opplysninger om budet kan bli fremlagt for selger, kjøper og øvrige budgivere. Budgiver som ikke blir kjøper, kan kreve kopi av anonymisert budjournal.
Lov om hvitvasking
Megler er underlagt lov om hvitvasking som innebærer plikt til å melde ifra til Økokrim om mistenkelige transaksjoner
Nyttige lenker
Nærområdet

PrivatMegleren Nyeboliger Oslo
Madserud Hage Prosjekt AS
Utbygger
Annonseinformasjon
| FINN-kode | 315833775 |
|---|---|
| Sist endret | 22. aug. 2025 08:43 |
| Referanse | 304230146 |
Annonsene kan være mangelfulle i forhold til lovpålagt opplysningsplikt. Før bindende avtale inngås oppfordres interessenter til å innhente komplett informasjon fra meglerforetaket, selger eller utleier.
