Bildegalleri

Nordvik Finnsnes presenterer Lundliveien 11!
Solgt
MULIGHET FOR PRIVAT VISNING HELE UKEN ETTER AVTALE, KONTAKT MEGLER!
Prisantydning1 700 000 kr
Nøkkelinfo
- Boligtype
- Enebolig
- Eieform
- Eier (Selveier)
- Soverom
- 2
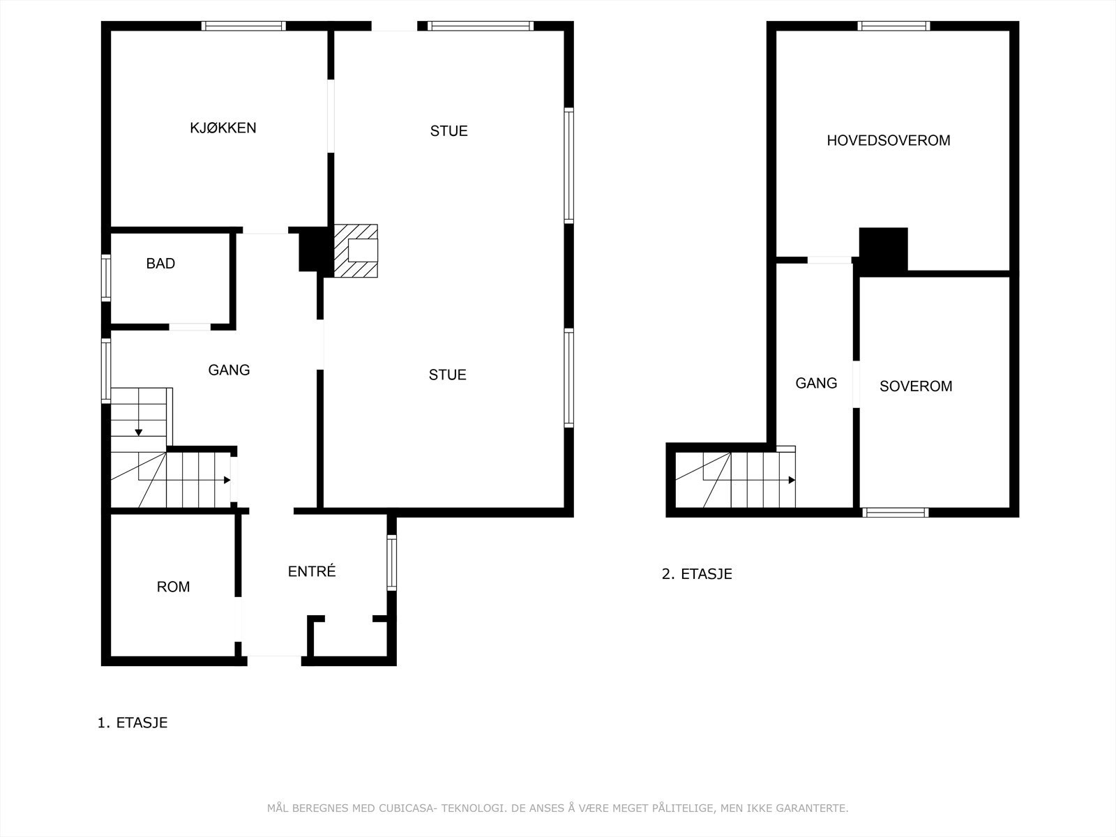
- Internt bruksareal
- 146 m² (BRA-i)
- Bruksareal
- 146 m²
- Balkong/Terrasse
- 25 m² (TBA)
- Etasje
- 2
- Byggeår
- 1947
- Energimerking
- F - Gul
- Tomteareal
- 673 677 m² (eiet)
Fasiliteter
Balkong/Terrasse
Barnevennlig
Garasje/P-plass
Hage
Fiskemulighet
Turterreng
Om boligen
Velkommen til Lundliveien 11, her presentert av Nordvik Finnsnes!
Er du på utkikk etter en stor eiendom på 643 mål, er glad i vedhogst og ønsker deg fiskerett i lakseførende elv eller kanskje jaktrett? Enten du er ivrig jeger, fisker eller i simpelthen bare ønsker deg det enkle liv har du mulighet til å skape deg dette her i fine omgivelser ved Salangselva. Denne eiendommen byr på det meste for deg som er glad i naturen og er bebygd med bolig som går over to plan med 2 soverom, fjøs med innlagt strøm, vedsjå og enkel garasje. Eiendommen fremstår med behov for en del vedlikehold, noe som gir en fin mulighet for deg som er nevenyttig!
AVLYST! Påmeldingsvisning torsdag 20. februar klokken 17:30! Ta kontakt med megler for visning!
Sjekk ut vår videovising!
Er du på utkikk etter en stor eiendom på 643 mål, er glad i vedhogst og ønsker deg fiskerett i lakseførende elv eller kanskje jaktrett? Enten du er ivrig jeger, fisker eller i simpelthen bare ønsker deg det enkle liv har du mulighet til å skape deg dette her i fine omgivelser ved Salangselva. Denne eiendommen byr på det meste for deg som er glad i naturen og er bebygd med bolig som går over to plan med 2 soverom, fjøs med innlagt strøm, vedsjå og enkel garasje. Eiendommen fremstår med behov for en del vedlikehold, noe som gir en fin mulighet for deg som er nevenyttig!
AVLYST! Påmeldingsvisning torsdag 20. februar klokken 17:30! Ta kontakt med megler for visning!
Sjekk ut vår videovising!
NB: Knappen for å vise hele beskrivelsen har kun en visuell effekt.
NB: Knappen for å vise hele beskrivelsen har kun en visuell effekt.
Salgsoppgaven beskriver vesentlig og lovpålagt informasjon om eiendommen
Se komplett salgsoppgaveNyttige lenker
Nærområdet
Nordvik Finnsnes
Prisstatistikk
Lundliveien 11
16 957 klikk
på annonsen
11 643 kr
prisantydning per kvadratmeter
Prisfordeling
Pris per m² ligger 2 357 kr under snittet for eneboliger i Bardu.
Grafen viser antall eneboliger solgt i Bardu siste året fordelt på pris per m² - totalt 32 eneboliger
Antall boliger
Kvadratmeterpris tilsvarer prisantydning pluss fellesgjeld per kvadratmeter (p-rom eller BRA-i). Prisene i grafen er avrundet til nærmeste 1000 kr.
Annonseinformasjon
| FINN-kode | 315502865 |
|---|---|
| Sist endret | 22. juni 2025 14:39 |
| Referanse | 28-0047/23 |
Annonsene kan være mangelfulle i forhold til lovpålagt opplysningsplikt. Før bindende avtale inngås oppfordres interessenter til å innhente komplett informasjon fra meglerforetaket, selger eller utleier.




























