Bildegalleri

Sånn kan det bli - bilde er av et lignende lokale som er pusset opp
Fleksibelt kontorlokale ved Jernbanetorget
Nøkkelinfo
- Areal
- 430 m²
- Etasje
- 2.
- Renovert år
- 2009
- Overtakelse
- Etter avtale
Type lokale
Fasiliteter
Om eiendommen
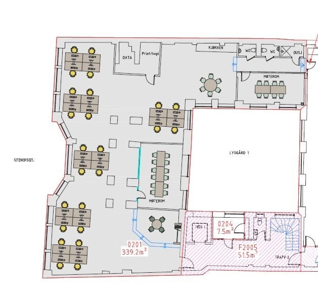
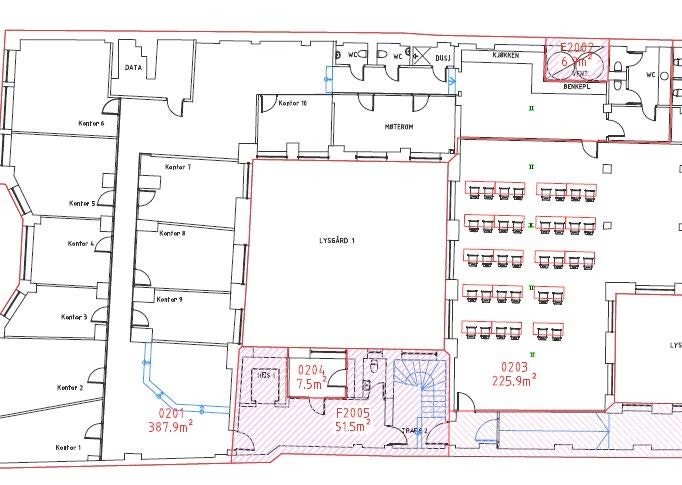
Vi får ledige lokaler i 2. etasje i Stenersgata 8. Lokalet er i dag et samlet areal på 596 kvm netto. Det er mulighet å dele lokalet i to deler, se plantegning. Arealet har mulighet for gode løsninger med kombinasjoner av kontorlandskap, møterom, stillerom og sosiale soner, i tillegg til spiserom og kjøkken. Arealet og interiør kan tilpasses ny leietaker.
Lokalet 0201 er på 430 kvm brutto og 339,2 kvm netto.
Lokalene kan leies samlet eller hver for seg. Det er inngang både fra Stenersgata og Storgata.
Bildene er fra Compass
De flotte oppussede lokalen er hos leietaker Compass Human Resources, som har leid i Stenersgata siden år 2000.
Compass Human Resources har over 35 års erfaring med rekruttering, og er en av de ledende og mest erfarne aktørene innenfor området Search & Selection i Norden. Ved siden av rekruttering, jobber de med ledervurderinger og Management Due Diligence. Compass har en bredt sammensatt kundeportefølje basert på langsiktige kunderelasjoner innenfor et antall bransjeområder.
De er i dag 14 ansatte i Stenersgata 2, og Compass Human Resources Group har i tillegg kontorer i København, Stockholm og Espoo.
Beliggenhet
Eiendommen ligger vis á vis Oslo City med kun få meters gange til Oslo S og Jernbanetorget. Gåavstand til alt av offentlig kommunikasjon og hva Oslo sentrum har å tilby.
I Stenersgata ligger blant annet Oslo City, Thon Hotel Terminus Standard, H&M og Rema 1000.
Visning
Ta kontakt for å avtale visning.Thon Eiendom
Hans Jørgen Hansen
Nærområdet
Annonseinformasjon
| FINN-kode | 315465171 |
|---|---|
| Sist endret | 20. nov. 2023 10:44 |
| Referanse | Eline Høyte |
Annonsene kan være mangelfulle i forhold til lovpålagt opplysningsplikt. Før bindende avtale inngås oppfordres interessenter til å innhente komplett informasjon fra meglerforetaket, selger eller utleier.




















