Bildegalleri

Velkommen til Gjøgriveien 5 i Hillestad.
Solgt
Liten eldre enebolig på 1 plan ,solrik og landlig beliggenhet i Hillestad med kort vei til avkj. E-18.
Prisantydning2 090 000 kr
Nøkkelinfo
- Boligtype
- Enebolig
- Eieform
- Eier (Selveier)
- Soverom
- 2
- Primærrom
- 75 m²
- Bruksareal
- 91 m²
- Etasje
- 1
- Byggeår
- 1940
- Energimerking
- G - Oransje
- Rom
- 3
- Tomteareal
- 646 m² (eiet)
Fasiliteter
Balkong/Terrasse
Garasje/P-plass
Hage
Peis/Ildsted
Turterreng
Om boligen
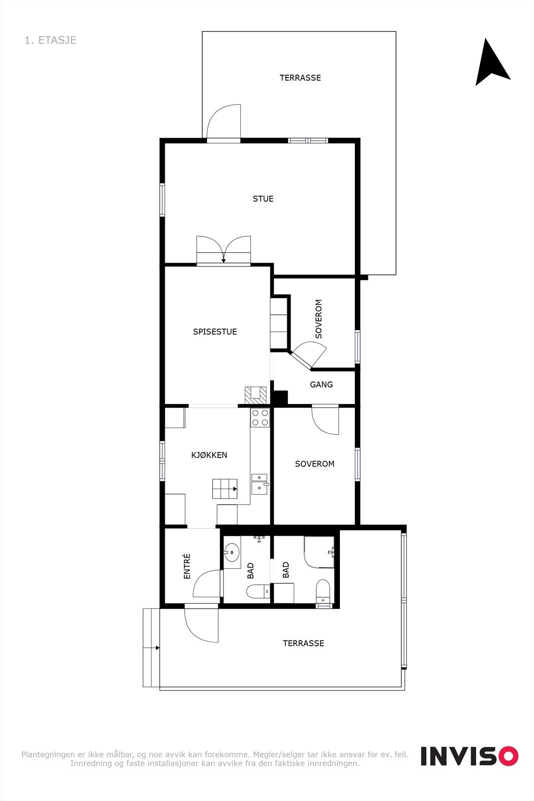
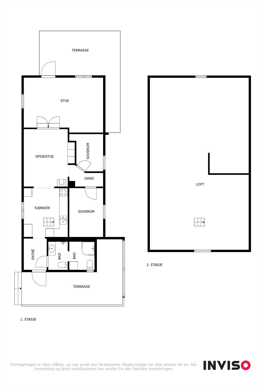
1.etg.: Gang, bad, 3 soverom, kjøkken, spisestue og stue.
Enebolig oppført ca 1940. Påbygget i 2017 med stue og det som er er nyste bad. Tak lagt om ca 2016. Kledning fra ca 2015 og 2017, enkelte avvik. Vinduer og ytterdører fra forskjellige perioder. Enkelte behov for vedlikehold. Innvendig overflater med varierende tilstand. Mangler stedvis noe lister og uferdige avslutninger. Kjøkken med bruksslitasje. Eldre bad med behov for oppgradering. Nyeste del er gjort som vennetjeneste. Preges av ufagmessige utførelse. Eldre skader i bjelkelag mot kryprom. Tiltak må påregnes. Uthus antatt fra samme periode som bolig. Noeutbedringer er gjort samt tilbygget carport fra 2019. Fortsatt noe vedlikeholdsbehov og avvik. Generelt har begge bygg behov for vedlikehold og utbedringer i varierende grad.
Enebolig oppført ca 1940. Påbygget i 2017 med stue og det som er er nyste bad. Tak lagt om ca 2016. Kledning fra ca 2015 og 2017, enkelte avvik. Vinduer og ytterdører fra forskjellige perioder. Enkelte behov for vedlikehold. Innvendig overflater med varierende tilstand. Mangler stedvis noe lister og uferdige avslutninger. Kjøkken med bruksslitasje. Eldre bad med behov for oppgradering. Nyeste del er gjort som vennetjeneste. Preges av ufagmessige utførelse. Eldre skader i bjelkelag mot kryprom. Tiltak må påregnes. Uthus antatt fra samme periode som bolig. Noeutbedringer er gjort samt tilbygget carport fra 2019. Fortsatt noe vedlikeholdsbehov og avvik. Generelt har begge bygg behov for vedlikehold og utbedringer i varierende grad.
NB: Knappen for å vise hele beskrivelsen har kun en visuell effekt.
NB: Knappen for å vise hele beskrivelsen har kun en visuell effekt.
Salgsoppgaven beskriver vesentlig og lovpålagt informasjon om eiendommen
Se komplett salgsoppgaveNyttige lenker
Nærområdet
Eiendomsmegler 1 Holmestrand
et foretak i SpareBank 1 Sør-Norge konsernet
Prisstatistikk
Gjøgriveien 5
18 661 klikk
på annonsen
27 866 kr
prisantydning per kvadratmeter
Prisfordeling
Pris per m² ligger 1 134 kr under snittet for eneboliger i Holmestrand.
Grafen viser antall eneboliger solgt i Holmestrand siste året fordelt på pris per m² - totalt 223 eneboliger
Antall boliger
Kvadratmeterpris tilsvarer prisantydning pluss fellesgjeld per kvadratmeter (p-rom eller BRA-i). Prisene i grafen er avrundet til nærmeste 1000 kr.
Annonseinformasjon
| FINN-kode | 315329130 |
|---|---|
| Sist endret | 13. jan. 2024 15:04 |
| Referanse | 7029230054 |
Annonsene kan være mangelfulle i forhold til lovpålagt opplysningsplikt. Før bindende avtale inngås oppfordres interessenter til å innhente komplett informasjon fra meglerforetaket, selger eller utleier.




























