Bildegalleri

Boligmegleren presenterer Kalkveien 13 - Velkommen på visning
SKAUGO - Lekker og moderne enebolig i rolig boligområde - Sentrumsnær beliggenhet - 22 kvm terrasse - Garasje
Nøkkelinfo
- Boligtype
- Enebolig
- Eieform
- Eier (Selveier)
- Soverom
- 3
- Internt bruksareal
- 174 m² (BRA-i)
- Bruksareal
- 174 m²
- Balkong/Terrasse
- 20 m² (TBA)
- Byggeår
- 2020
- Tomt
- Eiet
Fasiliteter
Om boligen
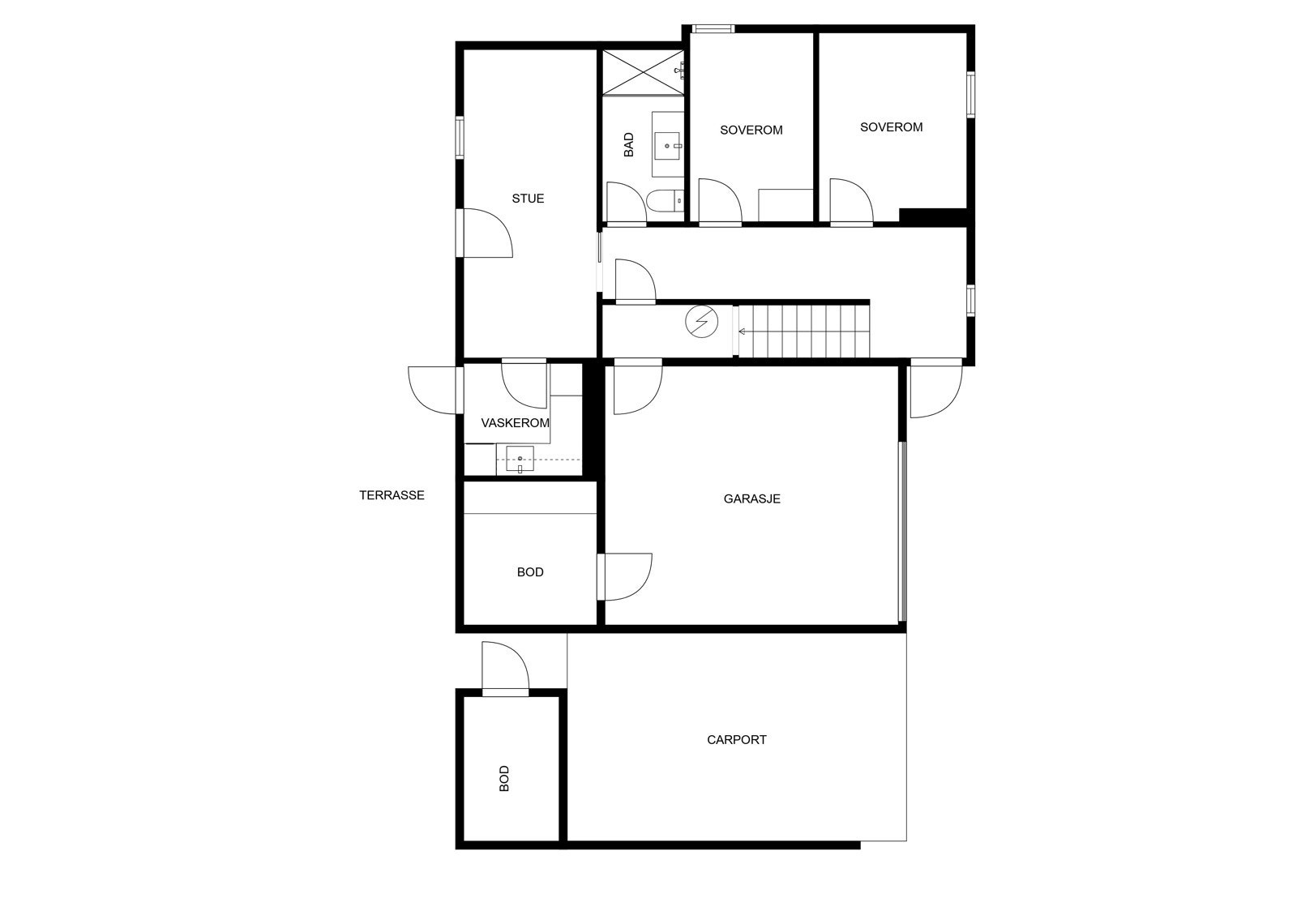
Boligmegleren presenterer Kalkveien 13!
Lekker og moderne enebolig med ypperlig beliggenhet i barnevennlig boligområde på populære Skaugo. Boligen går over to plan og har en arealeffektiv planløsning med blant annet kombinert stue og kjøkken, tre bad, tre soverom og vaskerom.
Fra hovedsoverommet er det inngang til walk in-garderobe og eget bad. Boligen har en gjennomgående høy standard med blant annet kjøkken fra kvalitetsleverandøren Aubo og elektrisk screen på de store vindusflatene i stua.
Fra stua er det utgang til boligens 22 kvm store terrasse som fungerer som en forlengelse av stua hele sommerhalvåret. I tillegg til garasje med elektrisk port er det carport tilhørende eiendommen.
Boligen ligger kun 4 km fra Kvadraturen og kun 2 km fra UiA.
Velkommen på visning!
Salgsoppgaven beskriver vesentlig og lovpålagt informasjon om eiendommen
Se komplett salgsoppgaveNyttige lenker
Nærområdet
BOLIGMEGLEREN MARCUSSEN HORGEN
Annonsene kan være mangelfulle i forhold til lovpålagt opplysningsplikt. Før bindende avtale inngås oppfordres interessenter til å innhente komplett informasjon fra meglerforetaket, selger eller utleier.















































