Bildegalleri

Nye leiligheter i Fjellnest ved Hemsedal Skisenter - klar for overtakelse fra september!
Inaktiv
Fjellnest All In - toppleilighet over 2 plan - klar for overtakelse!
Prisantydning8 800 000 kr
- Omkostninger
- 12 342 kr
- Totalpris
- 8 812 342 kr
Nøkkelinfo
- Beliggenhet
- På fjellet
- Boligtype
- Leilighet
- Eieform
- Eier (Selveier)
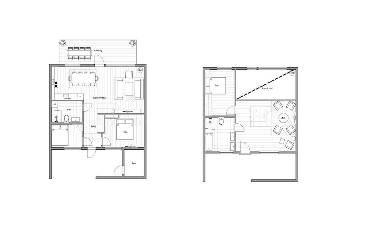
- Primærrom
- 112 m²
- Bruksareal
- 117 m²
- Tomt
- Eiet
- Byggeår
- 2023
- Soverom
- 3
- Rom
- 5
Fasiliteter
Alpinanlegg
Balkong/Terrasse
Barnevennlig
Bilvei frem
Bredbåndstilknytning
Garasje/P-plass
Peis/Ildsted
Rolig
Utsikt
Vaktmester-/vektertjeneste
Innlagt strøm
Offentlig vann/kloakk
Turterreng
Visning
Kontakt megler for privatvisning.
Husk å lese komplett salgsoppgave før visning. Bestill komplett, utskriftsvennlig salgsoppgave.
VisningspåmeldingOm boligen
Leilighet med luftig og flott planløsning med 3 soverom, 2 stuer og 2 bad under bygging ved Hemsedal Skisenter. Beliggenhet med ski inn og alt av aktiviteter og uteliv innen rekkevidde. Kort vei til sykkelløyper og lysløype for langrenn, opplyst gangvei til Hemsedal sentrum, skianlegget, Fyri og Fjellandsbyen.
Tidsriktig og kvalitetsmessig god leveranse med bl.a. gasspeis, vannbåren varme fra fjernvarmeanlegg, ventilasjon m/varmegjenvinning og 3-lags energiglass. Parkering m/lader i garasjeanlegg.
Tidsriktig og kvalitetsmessig god leveranse med bl.a. gasspeis, vannbåren varme fra fjernvarmeanlegg, ventilasjon m/varmegjenvinning og 3-lags energiglass. Parkering m/lader i garasjeanlegg.
- Svært attraktiv beliggenhet
- Gode muligheter for utleie
- Parkering m/lader i garasjeanlegg
- Skivei for enkelt retur fra skianlegget
- Transportheis under planlegging
- Meld interesse www.fjellnest.no
- Kontakt megler for visning
NB: Knappen for å vise hele beskrivelsen har kun en visuell effekt.
NB: Knappen for å vise hele beskrivelsen har kun en visuell effekt.
Salgsoppgaven beskriver vesentlig og lovpålagt informasjon om eiendommen
Se komplett salgsoppgaveNyttige lenker
Nærområdet
EIE Fjellmegleren Hemsedal
Annonseinformasjon
| FINN-kode | 314711145 |
|---|---|
| Sist endret | 30. nov. 2023 15:49 |
| Referanse | 1532230152 |
Annonsene kan være mangelfulle i forhold til lovpålagt opplysningsplikt. Før bindende avtale inngås oppfordres interessenter til å innhente komplett informasjon fra meglerforetaket, selger eller utleier.















