Bildegalleri

Velkommen til Sofienberggata 44 - en flott 3-romsleilighet med moderniseringsbehov. En spennende mulighet for deg som ønsker å sette ditt eget preg på leiligheten. Herlig, solrik balkong og heisadkomst til 5. etasje.
3-roms selveier med oppussingsbehov. Heis! Vestvendt balkong! 2 soverom mot bakgård. Mulighet for garasjeleie.
Nøkkelinfo
- Boligtype
- Leilighet
- Eieform
- Eier (Selveier)
- Soverom
- 2
- Primærrom
- 68 m²
- Bruksareal
- 70 m²
- Etasje
- 5
- Byggeår
- 1988
- Energimerking
- D - Rød
- Rom
- 3
- Tomteareal
- 1 182 m² (eiet)
Fasiliteter
Om boligen
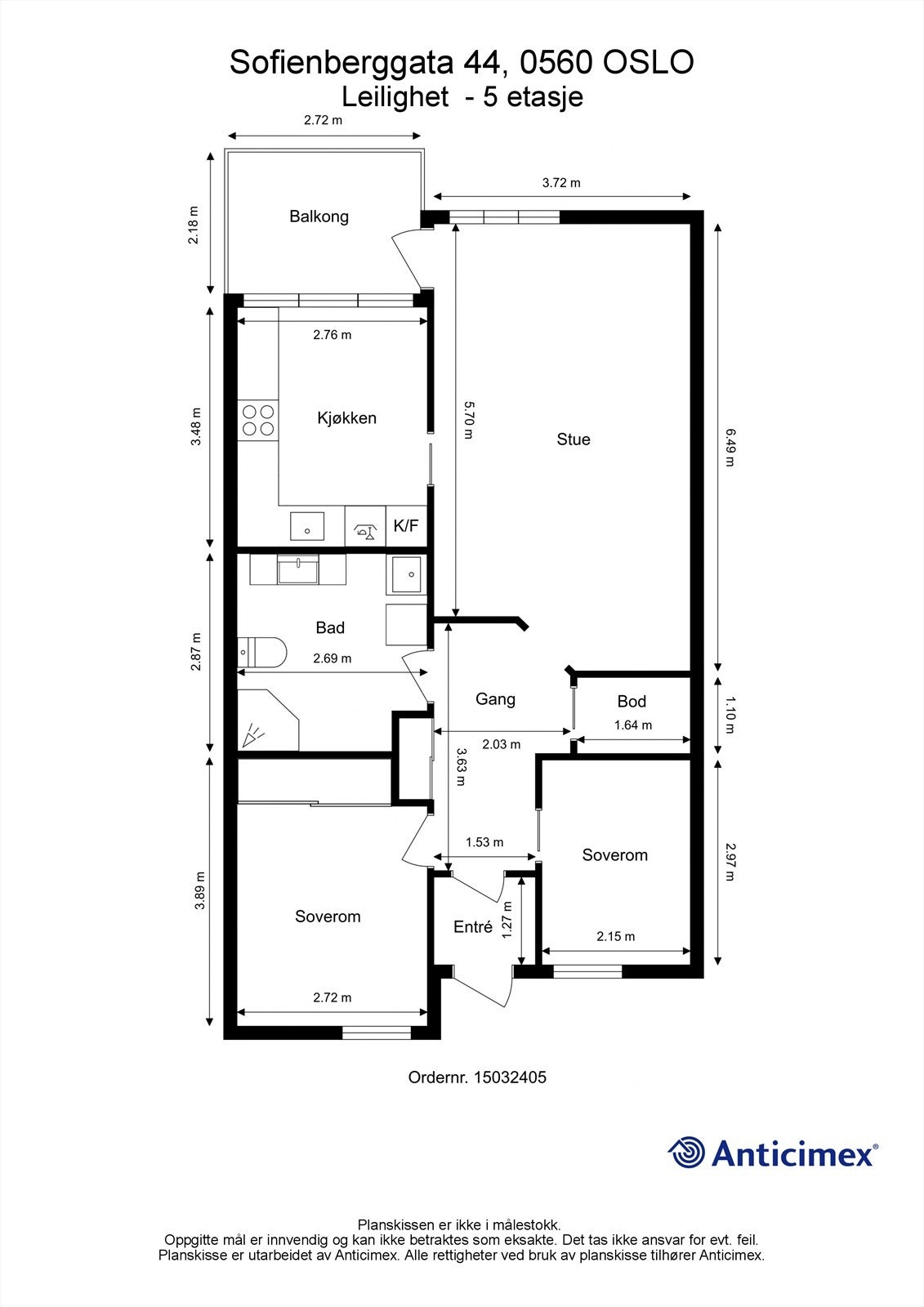
Dette er en gjennomgående 3-roms med solrik, vestvendt balkong. Her bor du høyt og fritt i 5. etasje med heis, med flott utsyn mot vest.
Leiligheten har oppussingsbehov, og inneholder en lys stue, separat kjøkken med plass til spisesone foran vinduet, to soverom som vender mot bakgård, innvendig bod, et svært romslig bad og entré med gulvvarme, samt balkong.
Utleie mulig, stipulert leie pr mnd ca kr 19 000,-.
Det er garasjeanlegg i kjelleren som driftes av Dypro AS, det er ofte ledige plasser til leie.
Leiligheten har en fantastisk beliggenhet mellom idylliske Botanisk hage og Grünerløkka. Området er svært sentralt, med alt av butikker, kaféer, treningstilbud og parker noen minutter unna.
Velkommen til hyggelig visning.
Salgsoppgaven beskriver vesentlig og lovpålagt informasjon om eiendommen
Se komplett salgsoppgaveNyttige lenker
Nærområdet
Krogsveen Grünerløkka
Prisstatistikk
Sofienberggata 44
på annonsen
prisantydning per kvadratmeter
Prisfordeling
Pris per m² ligger 37 206 kr under snittet for leiligheter i Grünerløkka - Sofienberg.
Grafen viser antall leiligheter solgt i Grünerløkka - Sofienberg siste året fordelt på pris per m² - totalt 2 423 leiligheter
Antall boliger
Kvadratmeterpris tilsvarer prisantydning pluss fellesgjeld per kvadratmeter (p-rom eller BRA-i). Prisene i grafen er avrundet til nærmeste 1000 kr.
Annonseinformasjon
| FINN-kode | 313567555 |
|---|---|
| Sist endret | 18. aug. 2023 13:19 |
| Referanse | KR42.2317 |
Annonsene kan være mangelfulle i forhold til lovpålagt opplysningsplikt. Før bindende avtale inngås oppfordres interessenter til å innhente komplett informasjon fra meglerforetaket, selger eller utleier.












































