Bildegalleri

Pent opparbeidet hage med gressplen, prydbusker og stor markterrasse.
Inaktiv
Færder | Hvasser
Tjøme/Hvasser - Nydelig fritidseiendom fra 2012 med hele 5 soverom og 2 bad. Stor god hage - flotte uteplasser med gode
Prisantydning8 450 000 kr
- Omkostninger
- 212 670 kr
- Totalpris
- 8 662 670 kr
- Kommunale avg.
- 18 745 kr per år
- Formuesverdi
- 204 910 kr
- Verditakst
- 8 750 000 kr
Nøkkelinfo
- Beliggenhet
- Ved sjøen
- Boligtype
- Hytte
- Eieform
- Selveier
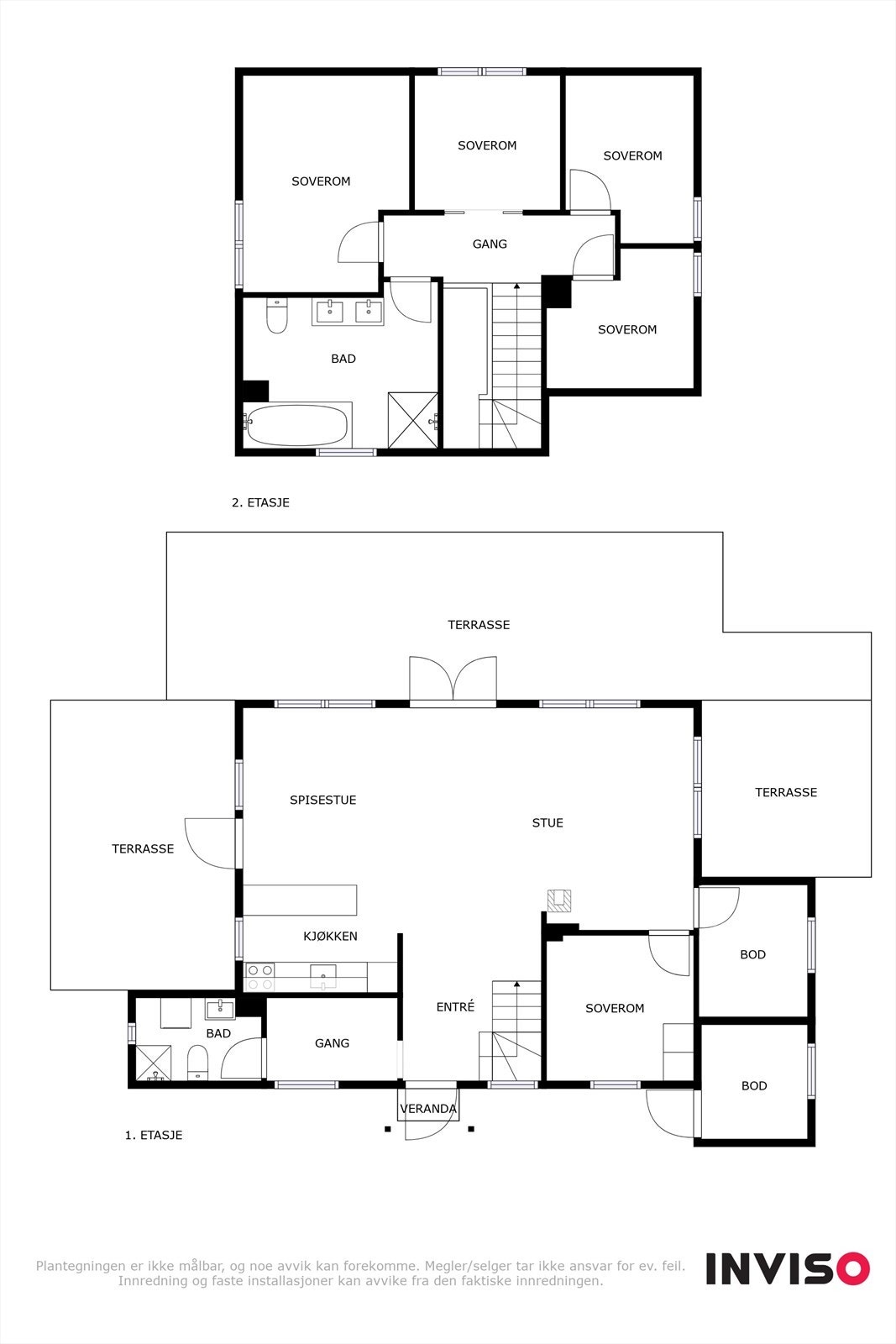
- Primærrom
- 116 m²
- Bruksareal
- 128 m²
- Tomteareal
- 831 m² (eiet)
- Byggeår
- 2012
- Soverom
- 5
- Rom
- 6
- Energimerking
- C - Oransje
- Overtakelse
- Ca. 3.mnd. frem i tid - kontakt megler for ytterligere detaljer.
Fasiliteter
Balkong/Terrasse
Bilvei frem
Hage
Peis/Ildsted
Innlagt strøm
Offentlig vann/kloakk
Turterreng
Visning
Dersom du planlegger å delta på visning bes du om å melde deg på visningen i forkant til megler. Trykk på påmeldingsknappen i annonsen eller kontakt megler. Frist for påmelding er dagen før visningsdagen innen kl. 12.00. Visninger uten påmelding, vil ikke bli avholdt
Husk å lese komplett salgsoppgave før visning. Bestill komplett, utskriftsvennlig salgsoppgave.
VisningspåmeldingOm boligen
Liaveien 23 er en nydelig fritidseiendom bygget i 2012 og beliggende på Hvasser. Flott opparbeidede tomt med mange fine uteplasser som gir gode solforhold både morgen og kveld. Eiendommen ligger i et veletablert bolig og fritidsområde med kort vei til sjø/bademuligheter, friluftsområder og nærbutikker. Havbakeriet finner du rett nede i veien.
Gode parkeringsmuligheter på egen tomt.
Lys og innbydende fritidseiendom med åpen stue og kjøkken løsning. Fra stue er det utgang til en romslig markterrasse med god plass for både spise- og sittegruppe. Stor god hage for både soling og litt sommer aktiviteter. Med hele 5 soverom og 2 bad så er det god plass til stor familien. Eiendommen har for det meste flis og furgulv, vegger er gjennomgående lysmalte. Velkommen til visning.
Gode parkeringsmuligheter på egen tomt.
Lys og innbydende fritidseiendom med åpen stue og kjøkken løsning. Fra stue er det utgang til en romslig markterrasse med god plass for både spise- og sittegruppe. Stor god hage for både soling og litt sommer aktiviteter. Med hele 5 soverom og 2 bad så er det god plass til stor familien. Eiendommen har for det meste flis og furgulv, vegger er gjennomgående lysmalte. Velkommen til visning.
NB: Knappen for å vise hele beskrivelsen har kun en visuell effekt.
NB: Knappen for å vise hele beskrivelsen har kun en visuell effekt.
Salgsoppgaven beskriver vesentlig og lovpålagt informasjon om eiendommen
Se komplett salgsoppgaveNyttige lenker
Nærområdet
EiendomsMegler 1 Horten
et foretak i SpareBank 1 Sør-Norge konsernet
Annonseinformasjon
| FINN-kode | 313091572 |
|---|---|
| Sist endret | 14. des. 2023 13:46 |
| Referanse | 7016230085 |
Annonsene kan være mangelfulle i forhold til lovpålagt opplysningsplikt. Før bindende avtale inngås oppfordres interessenter til å innhente komplett informasjon fra meglerforetaket, selger eller utleier.



































































