Bildegalleri

Velkommen til Lunaveien 8
Solgt
Virik
Pen og velholdt enebolig med tomt på hele 1650 kvm. Solrikt og barnevennlig beliggende i et meget populært boligstrøk.
Prisantydning6 500 000 kr
Nøkkelinfo
- Boligtype
- Enebolig
- Eieform
- Eier (Selveier)
- Soverom
- 3
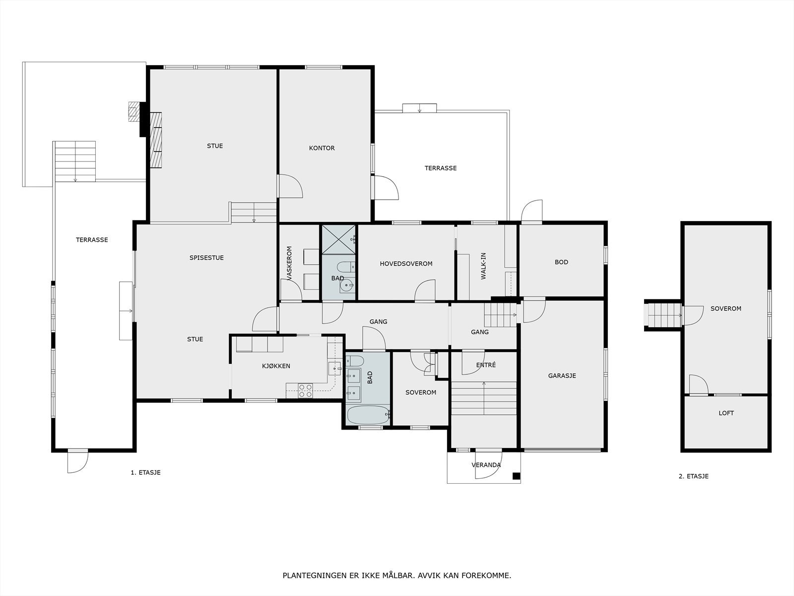
- Primærrom
- 180 m²
- Bruksareal
- 210 m²
- Byggeår
- 1963
- Energimerking
- G - Oransje
- Renovert år
- 2022
- Tomteareal
- 1 649 m² (eiet)
Fasiliteter
Balkong/Terrasse
Barnevennlig
Bredbåndstilknytning
Garasje/P-plass
Hage
Kjæledyr tillatt
Ingen gjenboere
Offentlig vann/kloakk
Parkett
Peis/Ildsted
Rolig
Sentralt
Utsikt
Utvidelsesmuligheter
Turterreng
Om boligen
Velkommen til Lunaveien 8. Nydelig beliggende eiendom i naturskjønne og svært usjenerte og idylliske omgivelser. Vakker, stor hage med vestvendt terrasse og utmerkede solforhold. Boligen er særdeles innholdsrik, og med sin praktiske planløsning meget familievennlig. Innvendig fremstår boligen lys og pen, og det er lagt vekt på store og luftige oppholdsrom med god takhøyde. Tomten har en stor og åpen gressplen på nedsiden av huset med stort potensiale.
Eiendommen ligger stille og fredelig til på Gemini-feltet, et attraktivt og populært boligområde ca. 2,5 km fra sentrum. Gemini er et meget barnevennlig område med bl.a. lekeplasser og mange barn i nærområdet. Kort vei til Virik barneskole og flotte
turområder i gangavstand som Bugården, Marum og Sandefjord golfbane.
Eiendommen ligger stille og fredelig til på Gemini-feltet, et attraktivt og populært boligområde ca. 2,5 km fra sentrum. Gemini er et meget barnevennlig område med bl.a. lekeplasser og mange barn i nærområdet. Kort vei til Virik barneskole og flotte
turområder i gangavstand som Bugården, Marum og Sandefjord golfbane.
NB: Knappen for å vise hele beskrivelsen har kun en visuell effekt.
NB: Knappen for å vise hele beskrivelsen har kun en visuell effekt.
Salgsoppgaven beskriver vesentlig og lovpålagt informasjon om eiendommen
Se komplett salgsoppgaveNyttige lenker
Nærområdet
EiendomsMegler 1 Sandefjord
et foretak i SpareBank 1 Sør-Norge konsernet
Prisstatistikk
Lunaveien 8
18 898 klikk
på annonsen
36 111 kr
prisantydning per kvadratmeter
Prisfordeling
Pris per m² ligger 4 111 kr over snittet for eneboliger i Sandefjord.
Grafen viser antall eneboliger solgt i Sandefjord siste året fordelt på pris per m² - totalt 543 eneboliger
Antall boliger
Kvadratmeterpris tilsvarer prisantydning pluss fellesgjeld per kvadratmeter (p-rom eller BRA-i). Prisene i grafen er avrundet til nærmeste 1000 kr.
Annonseinformasjon
| FINN-kode | 312155963 |
|---|---|
| Sist endret | 14. jan. 2024 11:04 |
| Referanse | 7018230088 |
Annonsene kan være mangelfulle i forhold til lovpålagt opplysningsplikt. Før bindende avtale inngås oppfordres interessenter til å innhente komplett informasjon fra meglerforetaket, selger eller utleier.



























































