Bildegalleri

Fasade fra vest
Inaktiv
Åsane/Dåpaløkka
Innholdsrikt rekkehus over 4 halvplan. Solrik usjenert uteplass barnevennlig, og rolig beliggenhet - Garasje
Prisantydning2 900 000 kr
Nøkkelinfo
- Boligtype
- Rekkehus
- Eieform
- Andel
- Soverom
- 3
- Primærrom
- 111 m²
- Bruksareal
- 126 m²
- Byggeår
- 1982
- Energimerking
- D - Gul
- Rom
- 4
- Tomteareal
- 22 395 m² (eiet)
- Bruttoareal
- 131 m²
Fasiliteter
Balkong/Terrasse
Barnevennlig
Bredbåndstilknytning
Garasje/P-plass
Hage
Ingen gjenboere
Offentlig vann/kloakk
Parkett
Peis/Ildsted
Rolig
Turterreng
Visning
Dersom du planlegger å delta på visning bes du om å melde deg på visningen i forkant til megler. Trykk på påmeldingsknappen i annonsen eller kontakt megler. Frist for påmelding er visningsdagen innen kl. 12.00. Visninger uten påmelding, vil ikke bli avholdt.
VisningspåmeldingOm boligen
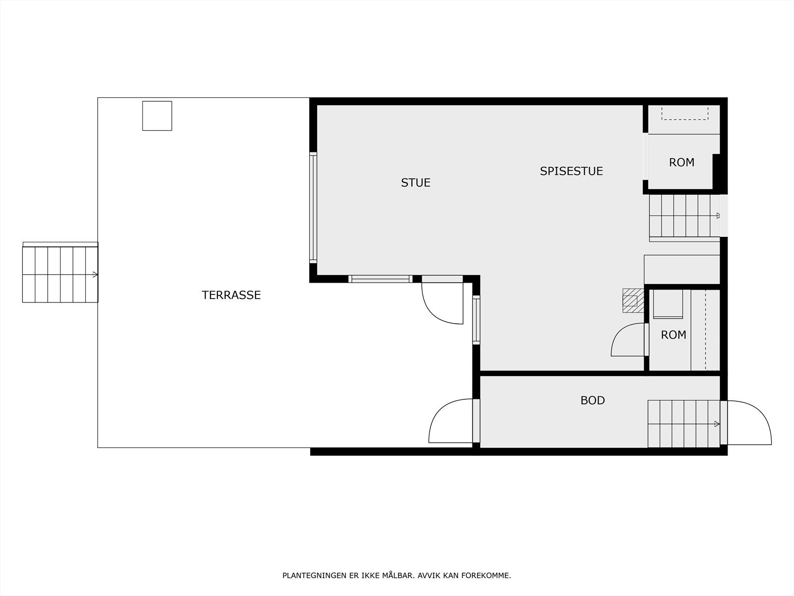
Dåpaløkka 51 C er et praktisk og innholdsrikt rekkehus med flotte uteplasser på begge sider av boligen, Boligen er lys og trivelig og holder en god standard. Den inneholder: 1. halvplan: Stue, kontor, bod, tilliggende utebod, 2. halvplan: Kjøkken, Bad/vaskerom, toalettrom, gang og vindfang, 3. halvplan: Gang, 2 soverom og bad, 4. halvplan Soverom, gang og loftsrom. Felleskostnadene inkluderer renter og avdrag tilknyttet fellesgjeld, bygningsforsikring, utvendig vedlikehold, styrehonorar, forretningsførsel, revisjonshonorar, maskinbrøyting, kommunale avgifter og grunnavgift Sandefjord Bredbånd. Borettslaget står foran en periode med oppgradering av bygningsmassen, les salgsoppgaven nøye.
NB: Knappen for å vise hele beskrivelsen har kun en visuell effekt.
NB: Knappen for å vise hele beskrivelsen har kun en visuell effekt.
Salgsoppgaven beskriver vesentlig og lovpålagt informasjon om eiendommen
Se komplett salgsoppgaveNyttige lenker
Nærområdet
EiendomsMegler 1 Sandefjord
et foretak i SpareBank 1 Sør-Norge konsernet
Annonseinformasjon
| FINN-kode | 311138088 |
|---|---|
| Sist endret | 12. okt. 2023 09:32 |
| Referanse | 7018230179 |
Annonsene kan være mangelfulle i forhold til lovpålagt opplysningsplikt. Før bindende avtale inngås oppfordres interessenter til å innhente komplett informasjon fra meglerforetaket, selger eller utleier.








































