Bildegalleri

Mynte Fra ABCHUS
Inaktiv
Hølen
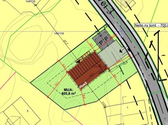
Riulfsbakken 1
Mynte fra ABCHUS Rimelig enebolig med uinnredet loft som kan inredes på egenhånd av kjøper.
Prisantydning6 850 000 kr
Prosjektets status
Planlegging
Alle planer er godkjent av Kommunen
Salgsstart
Mars
Byggestart
Ved salg av 1 bolig
Overtakelse
6 mnd etter oppstart
Nøkkelinfo
- Boligtype
- Enebolig
- Eieform
- Eier (Selveier)
- Soverom
- 2
- Antall etasjer
- 1
- Energimerking
- B - Oransje
- Primærrom
- 87 m²
- Bruksareal
- 150 m²
Fasiliteter
Offentlig vann/kloakk
Barnevennlig
Kabel-TV
Parkett
Balansert ventilasjon
Bredbåndstilknytning
Peis/Ildsted
Visning
Ta kontakt for å avtale visning.Beskrivelse
Boligen passer utmerket til nyetablerte. Da man kan innrede loftet når man trenger mer plass. Innredning av loftet vil gi ytterligere 3 soverom bad og loftstue om man ønsker dette.
Boligen gir også mulighet for husbankfinansiering om man skulle ønske dette.
Boligen leveres nøkkelferdig
NB: Knappen for å vise hele beskrivelsen har kun en visuell effekt.
NB: Knappen for å vise hele beskrivelsen har kun en visuell effekt.
Nærområdet
ABChus AS
Fleksibilitet - Trygghet - Kunnskap
Einar Nilsen
Annonsene kan være mangelfulle i forhold til lovpålagt opplysningsplikt. Før bindende avtale inngås oppfordres interessenter til å innhente komplett informasjon fra meglerforetaket, selger eller utleier.







