Bildegalleri

Velkommen til Kroveien 11 - En svært pen og innholdsrik enebolig med en attraktiv beliggenhet på Kroa i Leksvik og Indre Fosen kommune!
Flott beliggende og sjønær enebolig med upåklagelig fjordutsikt | Uthus på 226 m² | Idylliske omgivelser
Nøkkelinfo
- Boligtype
- Enebolig
- Eieform
- Eier (Selveier)
- Soverom
- 4
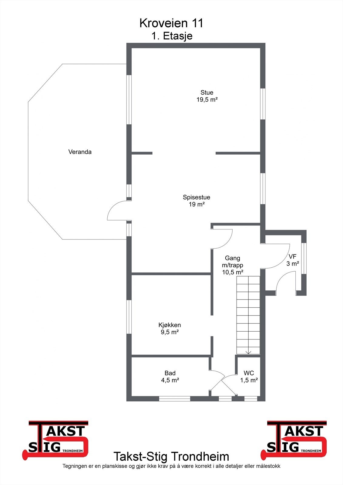
- Internt bruksareal
- 139 m² (BRA-i)
- Bruksareal
- 139 m²
- Balkong/Terrasse
- 61 m² (TBA)
- Byggeår
- 1921
- Energimerking
- G - Oransje
- Rom
- 5
- Tomteareal
- 1 600 m² (eiet)
Fasiliteter
Om boligen
Her kan du bli den nye eieren av en flott eiendom med en romslig tomt på hele 1,6 mål. Tomten er pent opparbeidet, og du får en landlig og idyllisk beliggenhet. Boligen er renovert og oppgradert sporadisk siden 2000, og fremstår i dag som innholdsrik med noen behov for oppgraderinger. Beliggenhet må sies å være svært attraktiv, og det er sjelden at slike eiendommer kommer for salg i Leksvik.
Kvaliteter verdt å merke seg:
- Attraktiv beliggenhet
- Innholdsrik enebolig med flere gode soverom
- Pent opparbeidet uteområde
- Nydelig fjordutsikt og gode solforhold
- Stor tomt og tilhørende garasje/uthus på 226 m²
Velkommen til en hyggelig visning!
Salgsoppgaven beskriver vesentlig og lovpålagt informasjon om eiendommen
Se komplett salgsoppgaveNyttige lenker
Nærområdet
Heimdal Eiendomsmegling avd. Heimdal
Prisstatistikk
Kroveien 11
på annonsen
prisantydning per kvadratmeter
Prisfordeling
Pris per m² ligger 1 972 kr under snittet for eneboliger i Indre Fosen.
Grafen viser antall eneboliger solgt i Indre Fosen siste året fordelt på pris per m² - totalt 81 eneboliger
Antall boliger
Kvadratmeterpris tilsvarer prisantydning pluss fellesgjeld per kvadratmeter (p-rom eller BRA-i). Prisene i grafen er avrundet til nærmeste 1000 kr.
Annonseinformasjon
| FINN-kode | 309694201 |
|---|---|
| Sist endret | 14. juni 2025 19:34 |
| Referanse | 8-23-0031 |
Annonsene kan være mangelfulle i forhold til lovpålagt opplysningsplikt. Før bindende avtale inngås oppfordres interessenter til å innhente komplett informasjon fra meglerforetaket, selger eller utleier.





































