Bildegalleri

Velkommen til Gyltesøveien 6.
Solgt
Sande i Vestfold
Sjarmerende fritidseiendom med utsikt mot sjøen - Kort vei til badeplass - Solrike uteplasser - Oppussingsobjekt
Prisantydning2 490 000 kr
- Omkostninger
- 63 636 kr
- Totalpris
- 2 553 636 kr
- Kommunale avg.
- 13 164 kr per år
- Formuesverdi
- 555 000 kr
Nøkkelinfo
- Beliggenhet
- Innlandet
- Boligtype
- Hytte
- Eieform
- Eier (Selveier)
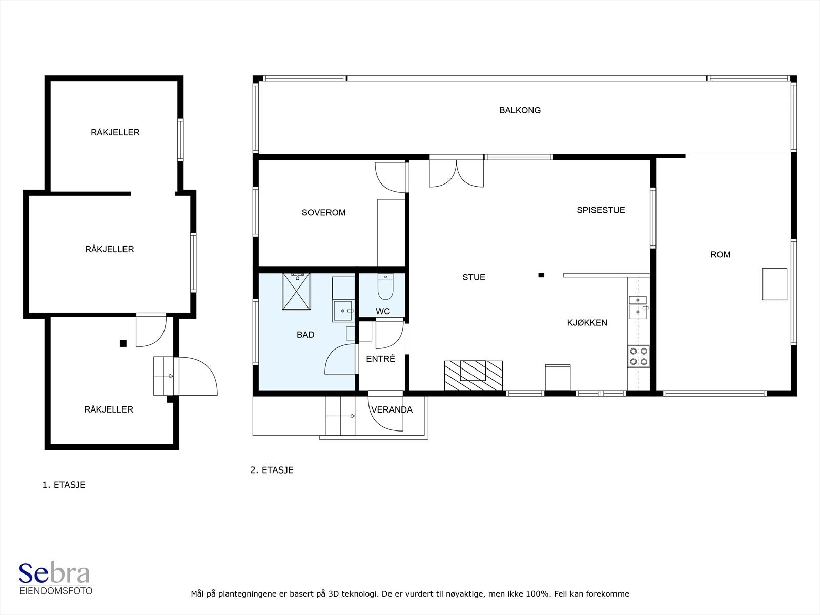
- Primærrom
- 63 m²
- Bruksareal
- 109 m²
- Tomteareal
- 2 050 m² (eiet)
- Byggeår
- 1962
- Soverom
- 1
- Rom
- 2
- Energimerking
- G - Oransje
- Overtakelse
- Overtagelse etter nærmere avtale med selger. Vær vennlig å angi ønsket overtagelsesdato i vedlagte budskjema.
Fasiliteter
Balkong/Terrasse
Utsikt
Fiskemulighet
Turterreng
Om boligen
Velkommen til Gyltesøveien 6.
Flott hytteeiendom beliggende på Gyltesø. Her er det ca. 10 km til Sande sentrum, som har kjøpesenter, skoler og jernbanestasjon. Ellers kort vei til Holmestrand og ca 1 time til Oslo. Eiendommen ligger landlig og usjenert til med fin utsikt og gode solforhold. Her kan man leve ut fritidsboligdrømmen med kort vei til sjøen og badestrand!
Fritidsboligen er over en etasje samt kjeller som ble oppført i tre over grunnmurer i 1962. Bygget har saltak tekket med profilerte takplater av stål og eternittplater, og er kledd utvendig med liggende tre kledning. I hovedsak vinduer av tre med ett eller to enkle glass. Boligen er oppgradert med nye vinduer på soverom og bad ca. 2007, ny ytterdør ca. 2007 og varmepumpe i 2016.
Velkommen til visning!
Flott hytteeiendom beliggende på Gyltesø. Her er det ca. 10 km til Sande sentrum, som har kjøpesenter, skoler og jernbanestasjon. Ellers kort vei til Holmestrand og ca 1 time til Oslo. Eiendommen ligger landlig og usjenert til med fin utsikt og gode solforhold. Her kan man leve ut fritidsboligdrømmen med kort vei til sjøen og badestrand!
Fritidsboligen er over en etasje samt kjeller som ble oppført i tre over grunnmurer i 1962. Bygget har saltak tekket med profilerte takplater av stål og eternittplater, og er kledd utvendig med liggende tre kledning. I hovedsak vinduer av tre med ett eller to enkle glass. Boligen er oppgradert med nye vinduer på soverom og bad ca. 2007, ny ytterdør ca. 2007 og varmepumpe i 2016.
Velkommen til visning!
NB: Knappen for å vise hele beskrivelsen har kun en visuell effekt.
NB: Knappen for å vise hele beskrivelsen har kun en visuell effekt.
Salgsoppgaven beskriver vesentlig og lovpålagt informasjon om eiendommen
Se komplett salgsoppgaveNyttige lenker
Nærområdet
EiendomsMegler 1 Tønsberg
En del av Sparebank 1 Sør-Norge
Annonseinformasjon
| FINN-kode | 309086372 |
|---|---|
| Sist endret | 27. juni 2025 06:00 |
| Referanse | 7044250005 |
Annonsene kan være mangelfulle i forhold til lovpålagt opplysningsplikt. Før bindende avtale inngås oppfordres interessenter til å innhente komplett informasjon fra meglerforetaket, selger eller utleier.













































