Bildegalleri

Velkommen til visning.
Solgt
Moss sentrum - Perfekt førstegangskjøp
Romslig og nyere 2-roms toppleilighet fra 2020 | Innglasset balkong | V.v & fyring | Felles takterrasse | Supersentralt
Prisantydning3 400 000 kr
Nøkkelinfo
- Boligtype
- Leilighet
- Eieform
- Eier (Selveier)
- Soverom
- 1
- Primærrom
- 59 m²
- Bruksareal
- 67 m²
- Etasje
- 4
- Byggeår
- 2020
- Energimerking
- C - Mørkegrønn
- Rom
- 2
- Tomteareal
- 1 228 m² (eiet)
Fasiliteter
Takterrasse
Balkong/Terrasse
Bredbåndstilknytning
Garasje/P-plass
Heis
Kabel-TV
Offentlig vann/kloakk
Sentralt
Utsikt
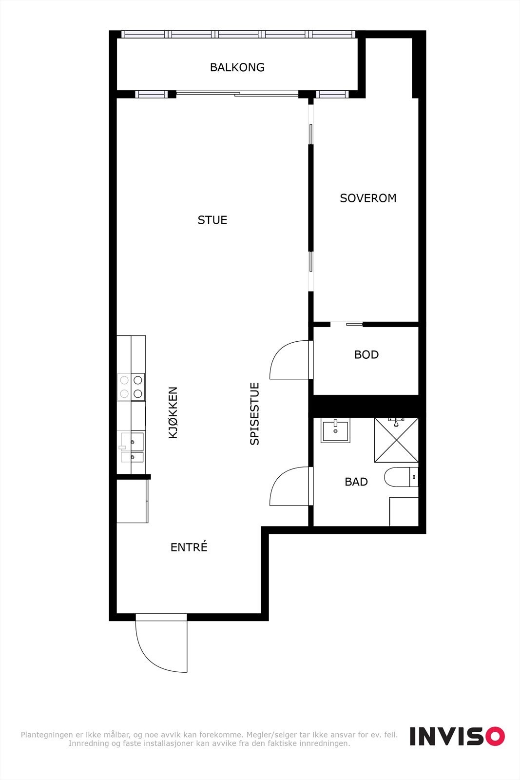
Om boligen
Velkommen til Storgata 6, en nyere og supersentral 2-roms toppleilighet med innglasset balkong. Fra boligen har du gangavstand til alt av servicetilbud, strand, sjø og skog. Kanalområde med restauranter og uteliv rett rundt hjørnet. Fine turområder med gangstier til bl.a. Alby og badestrender i nærheten. 4 minutters gangavstand til buss og jernbanestasjon med 45 minutters reisetid til Oslo.
Kort fortalt:
- Nyere 2-roms ferdigstilt i 2020
- Sydøstvendt innglasset balkong
- Arealsmart og praktisk planløsning
- Lys og åpen stue-/kjøkkenløsning
- Lunt og godt soverom
- Innvendig og ekstern bod
- Vannbåren varme og balansert ventilasjon
- TV, internett, fyring og v.vann inkl
- Parkeringsmuligheter
- Felles takterrasse med sjøutsikt
- Meget sentralt og tilgjengelig
- 4 min gange til togstasjon
Kort fortalt:
- Nyere 2-roms ferdigstilt i 2020
- Sydøstvendt innglasset balkong
- Arealsmart og praktisk planløsning
- Lys og åpen stue-/kjøkkenløsning
- Lunt og godt soverom
- Innvendig og ekstern bod
- Vannbåren varme og balansert ventilasjon
- TV, internett, fyring og v.vann inkl
- Parkeringsmuligheter
- Felles takterrasse med sjøutsikt
- Meget sentralt og tilgjengelig
- 4 min gange til togstasjon
NB: Knappen for å vise hele beskrivelsen har kun en visuell effekt.
NB: Knappen for å vise hele beskrivelsen har kun en visuell effekt.
Salgsoppgaven beskriver vesentlig og lovpålagt informasjon om eiendommen
Se komplett salgsoppgaveNyttige lenker
Nærområdet
EiendomsMegler 1 Stovner
Vi loser deg trygt gjennom hele boligsalget
Prisstatistikk
Storgata 6
5 468 klikk
på annonsen
57 627 kr
prisantydning per kvadratmeter
Prisfordeling
Pris per m² ligger 5 627 kr over snittet for leiligheter i Moss.
Grafen viser antall leiligheter solgt i Moss siste året fordelt på pris per m² - totalt 750 leiligheter
Antall boliger
Kvadratmeterpris tilsvarer prisantydning pluss fellesgjeld per kvadratmeter (p-rom eller BRA-i). Prisene i grafen er avrundet til nærmeste 1000 kr.
Annonseinformasjon
| FINN-kode | 308835372 |
|---|---|
| Sist endret | 14. feb. 2025 15:24 |
| Referanse | 3286230180 |
Annonsene kan være mangelfulle i forhold til lovpålagt opplysningsplikt. Før bindende avtale inngås oppfordres interessenter til å innhente komplett informasjon fra meglerforetaket, selger eller utleier.


























