Bildegalleri

Kjøkken

Jessneslia BK 2-2

Jessneslia Holene

Prisantydning6 498 000 kr
Totalpris
6 516 842 kr
Omkostninger
18 842 kr

Kort om prosjektet

Jessneslia - nærhet til alt, helt uten stress. Fem energieffektive eneboliger over to plan med opptil fem soverom, to bad, romslig terrasse og egen garasje. Sol fra formiddag til kveld, kort vei til Mjøsa. Ingen forskuddsbetaling – betal først ved overtakelse.

  • Planlegging

    2023/24

  • Salgsstart

    2025

  • Byggestart

    2026

  • Overtakelse

    Etter avtale

Nøkkelinfo

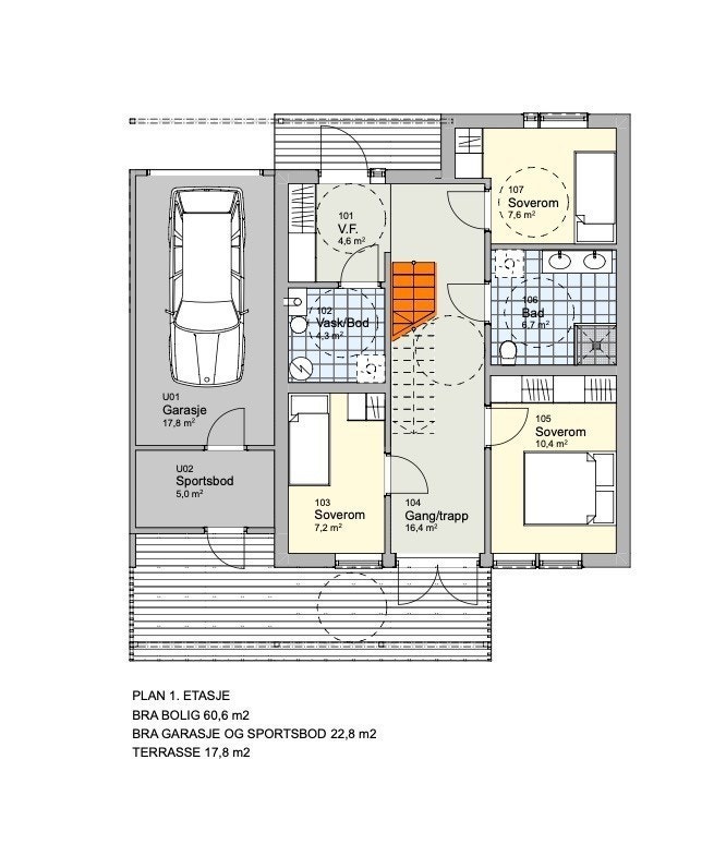
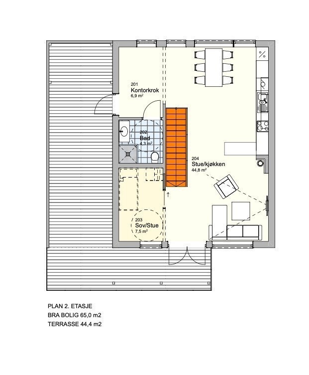
Boligtype
Enebolig
Soverom
4
Primærrom
127 m²
Bruksareal
179 m²
Energimerking
B

Les mer om bruksareal her

Fasiliteter

Balkong/Terrasse
Offentlig vann/kloakk
Utsikt
Barnevennlig
Garasje/P-plass
Balansert ventilasjon
Bredbåndstilknytning
Peis/Ildsted
Turterreng

Visning

Ta kontakt for å avtale visning.

Beskrivelse

En moderne, to-etasjers bolig ideell for deg som setter pris på komfort, praktiske løsninger og flotte utomhusarealer.

Nyt morgen- og ettermiddagssol på den romslige terrassen i fredelige omgivelser. Hjertet av dette hjemmet i andre etasje er det generøse kjøkkenet og oppholdsrommet – det perfekte samlingsstedet for familie og venner.

Skreddersy ditt hjem med opptil 5 soverom
Denne boligen gir deg muligheten til inntil fem soverom, noe som gir deg stor fleksibilitet til å tilpasse hjemmet etter dine behov og ønsker.

Gjør hverdagen enklere med romslige og praktiske fasiliteter
Morgenrutinene blir enklere med to store bad, og det praktiske vaskerommet gjør klesvasken til en enkel oppgave. Du trenger heller ikke å bekymre deg for oppbevaringsplass, ettersom boligen leveres med garasje og en tilhørende bod på 5 kvadratmeter.

Nærområdet

Annonseinformasjon

FINN-kode308036009
Sist endret24. feb. 2025 13:23
ReferansexHoleneBx

Rapporter annonse

Annonsene kan være mangelfulle i forhold til lovpålagt opplysningsplikt. Før bindende avtale inngås oppfordres interessenter til å innhente komplett informasjon fra meglerforetaket, selger eller utleier.