Bildegalleri

Endebolig
Jessneslia BK 2-2
Jessneslia Holene
Kort om prosjektet
Jessneslia - nærhet til alt, helt uten stress. Fem energieffektive eneboliger over to plan med opptil fem soverom, to bad, romslig terrasse og egen garasje. Sol fra formiddag til kveld, kort vei til Mjøsa. Ingen forskuddsbetaling – betal først ved overtakelse.
Prosjektets status
Planlegging
2023/24
Salgsstart
2025
Byggestart
2026
Overtakelse
Etter avtale
Nøkkelinfo
- Boligtype
- Enebolig
- Soverom
- 4
- Primærrom
- 127 m²
- Bruksareal
- 179 m²
- Energimerking
- B
Fasiliteter
Visning
Ta kontakt for å avtale visning.Beskrivelse
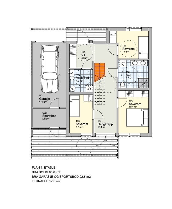
En moderne, to-etasjers bolig ideell for deg som setter pris på komfort, praktiske løsninger og flotte utomhusarealer.
Dette er endeleiligheten mot vest med større uteareal enn enhetene i midten.
Nyt morgen- og ettermiddagssol på den romslige terrassen i fredelige omgivelser. Hjertet av dette hjemmet i andre etasje er det generøse kjøkkenet og oppholdsrommet – det perfekte samlingsstedet for familie og venner.
Skreddersy ditt hjem med opptil 5 soverom
Denne boligen gir deg muligheten til inntil fem soverom, noe som gir deg stor fleksibilitet til å tilpasse hjemmet etter dine behov og ønsker.
Gjør hverdagen enklere med romslige og praktiske fasiliteter
Morgenrutinene blir enklere med to store bad, og det praktiske vaskerommet gjør klesvasken til en enkel oppgave. Du trenger heller ikke å bekymre deg for oppbevaringsplass, ettersom boligen leveres med garasje og en tilhørende bod på 5 kvadratmeter.
Nærområdet
Nordbohus - Innlandet Ringsaker/Hamar
Annonseinformasjon
| FINN-kode | 308035706 |
|---|---|
| Sist endret | 08. feb. 2024 13:20 |
| Referanse | xHoleneEx |
Annonsene kan være mangelfulle i forhold til lovpålagt opplysningsplikt. Før bindende avtale inngås oppfordres interessenter til å innhente komplett informasjon fra meglerforetaket, selger eller utleier.












