Bildegalleri

Ledig kontorlokaler / showroom på Billingstadsletta
Nøkkelinfo
- Tomt
- Eiet
- Etasje
- 2.
Type lokale
Fasiliteter
Kort om eiendommen
På vegne av Billingstadsletta 46 AS har vi gleden av å tilby ledige kontorlokaler.
Med mindre tilpasninger er lokalene også velegnet til showroom.
Beliggenhet
Lokalene ligger fint til på Billingstadsletta i Asker. Her har det etter hvert blitt etablert alt fra bilforhandlere med eksklusive merker, men også velkjente møbelforretninger, kjøkkenleverandører, Power og IKEA.
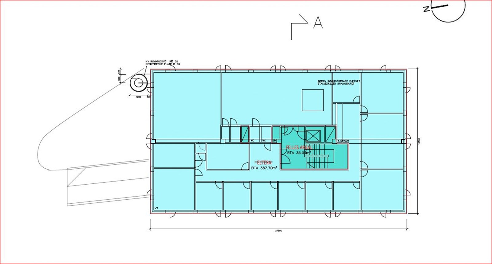
Arealer og innholdsbeskrivelse
Lokalet er i byggets 2. etasje og består av ca 454 kvm BTA. Her er det 10 kontor / store møterom i tillegg til kjøkken. Eget toalett og dusj
Standard
Lokalene fremstår som lyse og holder en god standard.
Mye vinduer gjør at dagslyset utnyttes godt.
Parkering
Utendørs parkering kan leies etter nærmere avtale.
Matrikkelinformasjon
Nyttige lenker
Krogsveen avd. Næring/ Link Næringsmegling AS
Nærområdet
Annonseinformasjon
| FINN-kode | 307893242 |
|---|---|
| Sist endret | 10. juni 2024 07:25 |
| Referanse | KR25.2316 |
Annonsene kan være mangelfulle i forhold til lovpålagt opplysningsplikt. Før bindende avtale inngås oppfordres interessenter til å innhente komplett informasjon fra meglerforetaket, selger eller utleier.















