Bildegalleri

Velkommen til Breskelivegen 33
Småbruk i Breskelia - mulighet for utleie av bolig og stallplasser - mulighet for å skille ut boligtomter
Nøkkelinfo
- Boligtype
- Gårdsbruk/Småbruk
- Eieform
- Eier (Selveier)
- Soverom
- 6
- Primærrom
- 245 m²
- Bruksareal
- 293 m²
- Byggeår
- 1947
- Energimerking
- G - Rød
- Tomteareal
- 19 227 m² (eiet)
Fasiliteter
Om boligen
Hel tomannsbolig med mulighet for gode leieinntekter. I driftsbygning er det nyoppusset stallplass (2 hestebokser) og et koselig selskapslokale i 2. etasje.
Potensiale for å skille ut 3 boligtomter!
Eiendommen er ikke odels- og konsesjonsbelagt.
Boligen inneholder:
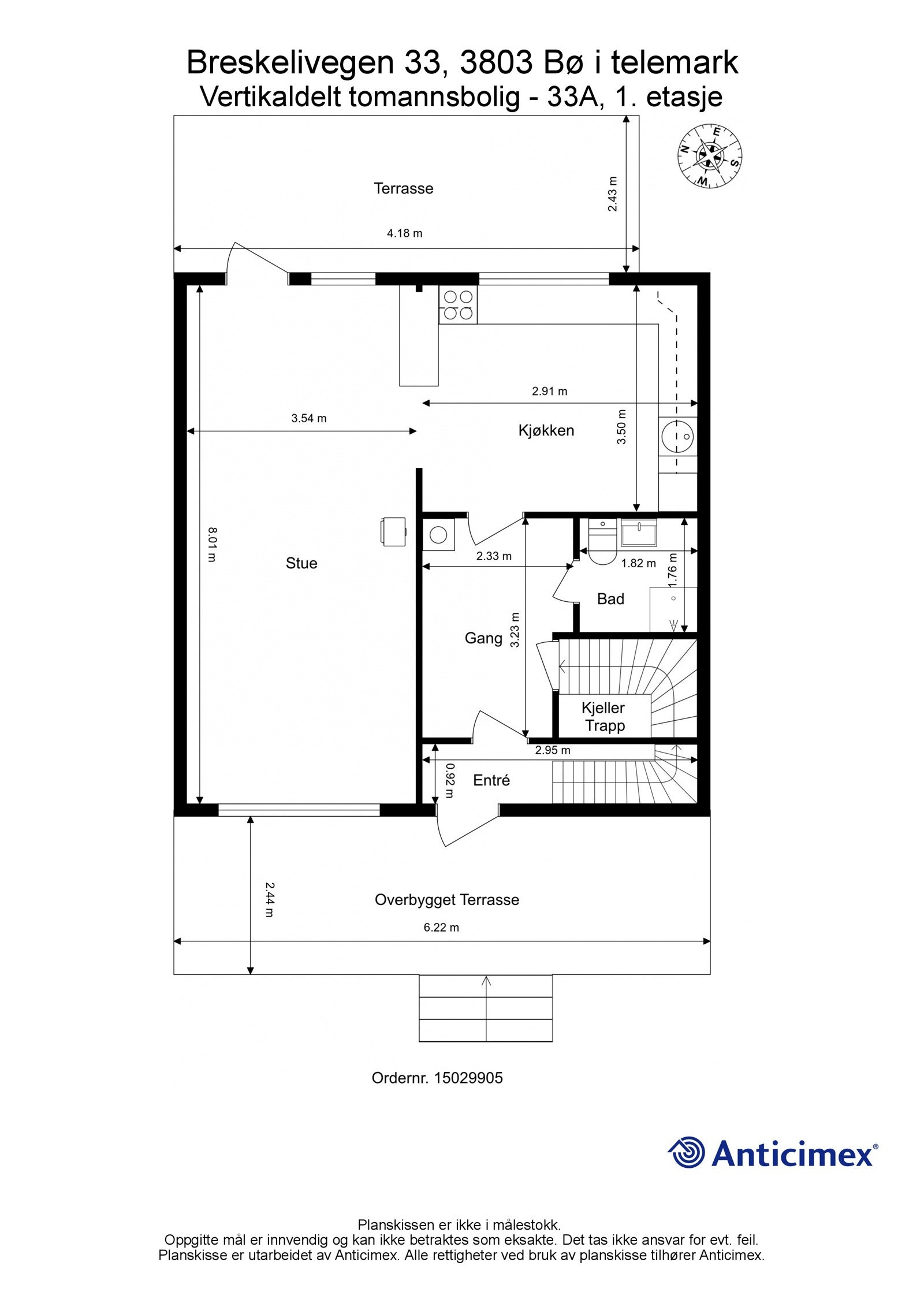
33A
1. etg.: Stue, kjøkken, gang, entre og bad. Trappegang til kjeller.
2.etg.: Gang og 3 soverom
Kjeller: 3 kjellerrom
33B
1. etg.: Entré, vaskerom, gang, bad, trapperom, kjøkken, stue og soverom.
Sokkeletasje: Omkledningsrom, entre, 2 ganger, 2 soverom og bod.
Eiendommen har en rolig, solrik og usjenert beliggenhet i Breskelia. Skog, natur og flotte turområder i umiddelbar nærhet, og det går en tursti rett i nærområdet som fører deg til Bryggefjell. Det er ca 4 km til Bø sentrum.
Salgsoppgaven beskriver vesentlig og lovpålagt informasjon om eiendommen
Se komplett salgsoppgaveNyttige lenker
Nærområdet
Lokalmegleren & Partners
Prisstatistikk
Breskelivegen 33
på annonsen
prisantydning per kvadratmeter
Prisfordeling
Pris per m² ligger 3 449 kr under snittet for gårdsbruk/småbruk i Midt-Telemark.
Grafen viser antall gårdsbruk/småbruk solgt i Midt-Telemark siste året fordelt på pris per m² - totalt 8 gårdsbruk/småbruk
Antall boliger
Kvadratmeterpris tilsvarer prisantydning pluss fellesgjeld per kvadratmeter (p-rom eller BRA-i). Prisene i grafen er avrundet til nærmeste 1000 kr.
Annonseinformasjon
| FINN-kode | 307863669 |
|---|---|
| Sist endret | 05. aug. 2024 11:19 |
| Referanse | 48230032 |
Annonsene kan være mangelfulle i forhold til lovpålagt opplysningsplikt. Før bindende avtale inngås oppfordres interessenter til å innhente komplett informasjon fra meglerforetaket, selger eller utleier.





































































