Bildegalleri

Velkommen til Høybråtenveien 73F! Presenteres av lokalmegler Arsalan Syed v/ Eiendomsmegler 1.
Attraktiv enebolig o/2 plan | Terrasse og skjermet hage | Solrikt på høydedrag m/utsikt | 2 separate innganger | Garasje
Nøkkelinfo
- Boligtype
- Enebolig
- Eieform
- Eier (Selveier)
- Soverom
- 3
- Primærrom
- 149 m²
- Bruksareal
- 160 m²
- Etasje
- 1
- Byggeår
- 1963
- Energimerking
- F - Oransje
- Rom
- 5
- Tomteareal
- 765 m² (eiet)
- Bruttoareal
- 183 m²
Fasiliteter
Om boligen
Nå har du muligheten til å skape din egen drømmebolig i et etablert og populært nabolag på Høybråten! Eneboligen har en fin beliggenhet i et rolig og barnevennlig nabolag, men har samtidig svært kort gangavstand til offentlig transport. Det er også kort vei til dagligvareforretninger, skole og barnehage.
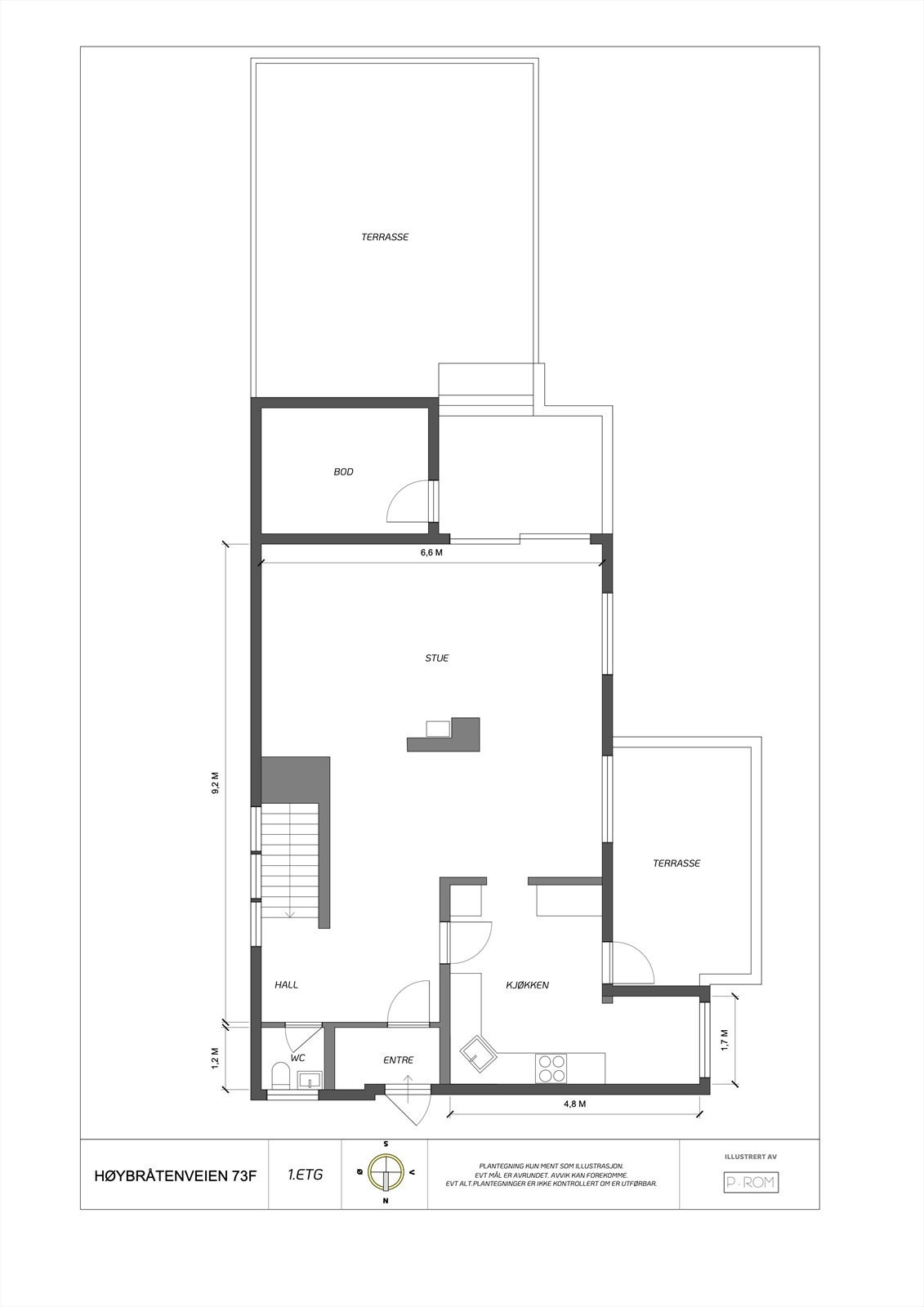
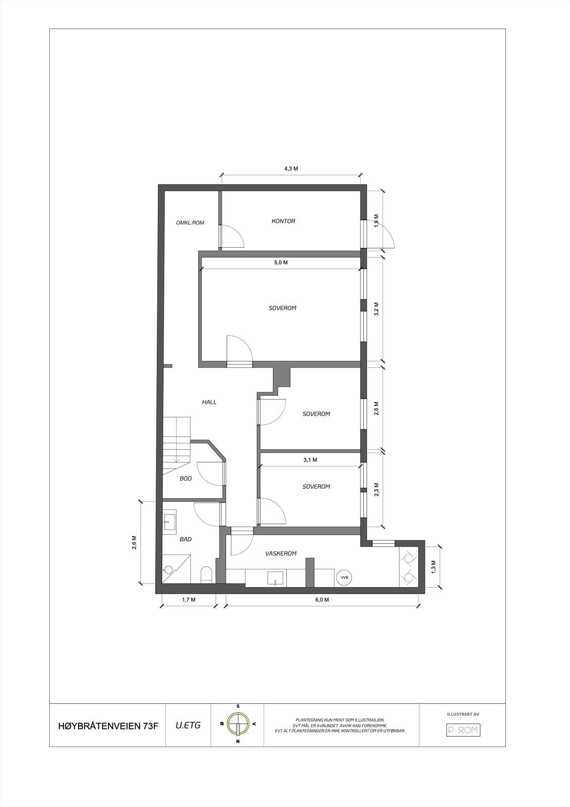
Boligen strekker seg over to plan og inneholder 3 sov, stue, kjøkken, bad, vaskerom, kontor og flere solrike uteplasser. i tillegg har man en flott opparbeidet tomt og en praktisk garasje
Kort fortalt:
Pen og attraktiv enebolig over 2 plan
Parkering på gårdsplass og garasje
Sokner til Høybråten skole
Kort vei til Lørenskog og Oslo sentrum
2 separate innganger
Flytt rett inn
Barnevennlig og attraktivt bomiljø
Velkommen til visning !
Salgsoppgaven beskriver vesentlig og lovpålagt informasjon om eiendommen
Se komplett salgsoppgaveNyttige lenker
Nærområdet
Eiendomsmegler 1 Søndre Nordstrand
Prisstatistikk
Høybråtenveien 73F
på annonsen
prisantydning per kvadratmeter
Prisfordeling
Pris per m² ligger 3 268 kr over snittet for eneboliger i Furuset.
Grafen viser antall eneboliger solgt i Furuset siste året fordelt på pris per m² - totalt 41 eneboliger
Antall boliger
Kvadratmeterpris tilsvarer prisantydning pluss fellesgjeld per kvadratmeter (p-rom eller BRA-i). Prisene i grafen er avrundet til nærmeste 1000 kr.
Annonseinformasjon
| FINN-kode | 307540744 |
|---|---|
| Sist endret | 06. okt. 2023 11:04 |
| Referanse | 3215230071 |
Annonsene kan være mangelfulle i forhold til lovpålagt opplysningsplikt. Før bindende avtale inngås oppfordres interessenter til å innhente komplett informasjon fra meglerforetaket, selger eller utleier.


















































