Bildegalleri

Velkommen til Strand-Nedre Høvik
Moderne enebolig fra 2017 på solrik tomt med strandandel, brygge, båtplass, store terrasser, dobbelgarasje og utleie
Prisantydning38 000 000 kr
Nøkkelinfo
- Boligtype
- Enebolig
- Eieform
- Eier (Selveier)
- Soverom
- 4
- Internt bruksareal
- 358 m² (BRA-i)
- Bruksareal
- 358 m²
- Balkong/Terrasse
- 247 m² (TBA)
- Byggeår
- 2017
- Energimerking
- B - Mørkegrønn
- Rom
- 7
- Tomteareal
- 927 m² (eiet)
Fasiliteter
Barnevennlig
Balkong/Terrasse
Garasje/P-plass
Offentlig vann/kloakk
Parkett
Turterreng
Utsikt
Sentralt
Moderne
Rolig
Bademulighet
Lademulighet
Balansert ventilasjon
Om boligen
I en rolig gate uten gjennomgangstrafikk med umiddelbar nærhet til sjøen, ligger Bjerkealleen 26 B - en nyere, lys og gjennomført funkisdrøm fra 2017, oppgradert i 2025.
Over fire plan får du alt du trenger av komfort, sentralt plassert i et ettertraktet og barnevennlig område på Nedre Høvik. Bjerkealleen er en del av kyststien og normalt stengt med låst bom ved nr. 26 B (i dag midlertidig åpen pga. E18-utbygging, men vil stenges igjen når arbeidet er ferdig).
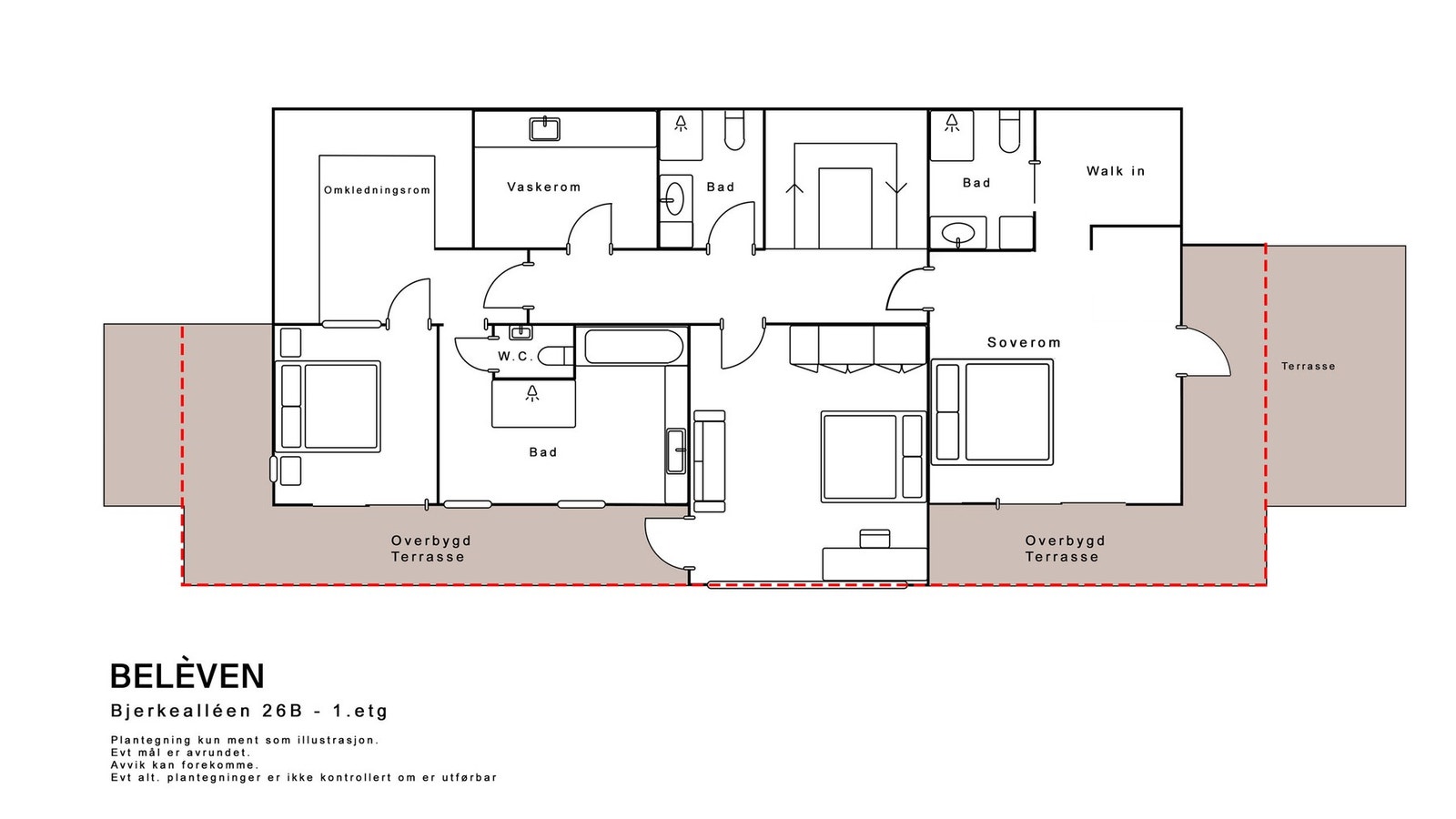
Boligen holder gjennomgående svært høy standard med en gjennomtenkt, plasseffektiv planløsning, moderne innredning og rene, luftige rom. Flere stuer, store overbygde terrasser der inne blir ute og ute blir inne, fire soverom, fem bad, vaskerom, treningsrom, smørebod, vinrom, dobbelgarasje, utebod m.m. gir boligen et sjeldent rikt funksjonsnivå. I tillegg har eiendommen hybel/praktikantdel med egen inngang.
Det følger tinglyst bruksrett til felles strand - kun et steinkast fra huset - med liten brygge og båtplass.
Over fire plan får du alt du trenger av komfort, sentralt plassert i et ettertraktet og barnevennlig område på Nedre Høvik. Bjerkealleen er en del av kyststien og normalt stengt med låst bom ved nr. 26 B (i dag midlertidig åpen pga. E18-utbygging, men vil stenges igjen når arbeidet er ferdig).
Boligen holder gjennomgående svært høy standard med en gjennomtenkt, plasseffektiv planløsning, moderne innredning og rene, luftige rom. Flere stuer, store overbygde terrasser der inne blir ute og ute blir inne, fire soverom, fem bad, vaskerom, treningsrom, smørebod, vinrom, dobbelgarasje, utebod m.m. gir boligen et sjeldent rikt funksjonsnivå. I tillegg har eiendommen hybel/praktikantdel med egen inngang.
Det følger tinglyst bruksrett til felles strand - kun et steinkast fra huset - med liten brygge og båtplass.
NB: Knappen for å vise hele beskrivelsen har kun en visuell effekt.
NB: Knappen for å vise hele beskrivelsen har kun en visuell effekt.
Salgsoppgaven beskriver vesentlig og lovpålagt informasjon om eiendommen
Se komplett salgsoppgaveNyttige lenker
Nærområdet
Belèven Eiendomsmegling
Annonsene kan være mangelfulle i forhold til lovpålagt opplysningsplikt. Før bindende avtale inngås oppfordres interessenter til å innhente komplett informasjon fra meglerforetaket, selger eller utleier.














































