
Bildegalleri

Småroi Panorama.
Nye Utsikts tomter Blefjellhyttegrend med Nøkkelferdig Buen Panorama.
- Omkostninger
- 18 750 kr
- Totalpris
- 3 408 750 kr
Pris på lån: fra 14 254 kr/mnd
Eff.rente 5,88 %. 2 034 000 o/20 år. Kostnad: 1 386 960 kr. Totalt 3 420 960 kr.
LånekalkulatorNøkkelinfo
- Beliggenhet
- På fjellet
- Boligtype
- Hytte
- Eieform
- Eier (Selveier)
- P-plasser
- 2
- Bruksareal
- 57 m²
- Tomteareal
- 1 128 m² (eiet)
- Byggeår
- 2023
- Soverom
- 4
Visning
Ta kontakt for å avtale visning.Om eiendommen
Beliggenhet
Hytte tomtene ligger ved Sandvatn, Hovin, sør i Tinn kommune. Sandvatn ligger langs fylkesvei 364 mellom Bolkesjø og Austbygde på østsiden av Tinnsjøen. Rundt tomtene er det et vakkert og variert turterreng, som byr på fine turer og spennende veivalg sommer og vinter
VINTER - SNØ - SKI:
Blefjell Hyttegrend er et sentralt utgangspunkt for fine skiturer og ligger godt til rette for skiglade gjester med flere preparerte løypetilbud.
I nærområdet kjøres det opp skiløyper med snøscooter og sporkalle. Løypene er familievennlige og passer fint for den alminnelige turgåer.
I kort avstand fra Blefjell Hyttegrend, ca 15 minutters kjøretid nordover fra Blefjell Hyttegrend i Spjeldsetområdet, preparerer Blefjell IL spor med trase for skøyting og klassisk.
30 minutters kjøring sørover fra Blefjell Hyttegrend med utgangspunkt fra dagparkeringen Buen/Høgda og Liatoppen, starter løypenettet som blir preparert av Blefjell Løypeforening. Traseene består av et supert preparert løypenett med dobbeltspor og skøytesone i midten. Disse løypene er også en god start for skiturer videre inn på hele Blefjell.
Informasjon om oppkjørte løyper finner du på skisporet.no eller på bleloyper.no
Generelt
Hytten blir levert nøkkelferdig med tomt. Støpt på såle, torvtak, Danske Aubo Kjøkken, hvitevarer, komplett bad, fliser og varmekabler, downlight i entre, bad og kjøkken. peis ovn med pipe ++++
Overflate behandling inne/ute Kan bestilles ferdig.
Tomten er meget flott med utsikt utover Sandvtn.
Opparbeidelse av denne tomte kommer i tillegg. Ca Kr. 300 000,- Her får vi pris fra graver før avtale signering.
Hyttene har privat vann/kloakk og innlagt strøm. Gjort Klart for fiber.
Adkomst/Tomteforhold
Blefjell Hyttegrend er det nærmeste fjellområdet for store deler av østlandsbefolkningen, og ligger i køfri og komfortabel kjøretid på i underkant av 2 timer fra Oslo, Vestfoldbyene og Grenland.
fra Notodden 45 km
fra Kongsberg 50 km
fra Drammen 85 km
fra Skien/Porsgrunn 105 km
fra Oslo 130 km
fra Tønsberg/Sandefjord 130 km
fra Sarpsborg/Fredrikstad 197 km
For mer info: www.blefjellhyttegrend.no
Gebyr og Avgifter
Årlige avgifter.
Vei. Vedlikehold/brøyting kr 3 000
Vannavgift kr 6 000
Avløpsavgift kr 6 000
Avgift båtplass kr 2 000 (Denne er frivillig)
Kommunal hytterenovasjon Ca kr 1.866,-
Vann og avløpsavgiften dekker drift og vedlikehold av hyttegrendas private vann- og renseanlegg.
Avgiftene justeres årlig iht. alminnelig pris- og kostnadsutvikling.
Dokumentavgift 2,5% av tomteverdi inkludert i annonsert tilbud.
Følgende avgifter og gebyrer kommer i tillegg til salgssum:
Tinglysningsgebyr på skjøte kr 525,-
Tinglysningsgebyr for panteobligasjon kr 525,-
Innhold
Hytta blir gjort nøkkelferdig og innflytningsklar. Det er med støt såle og Torvtak.
Hytta er snekkerferdig utvendig og innvendig. Aubo kjøkken inkl. hvitevarer, baderomsinnredninger og utstyr, Stål pipe med Jøtul 373 ildsted, flisarbeider der hvor angitt på tegning, komplett elektroinstallasjon iht. punktskjema (Nek 400) Det er bil Lader, varmekabler i bad, vaskerom og entre. Komplett torvtak.
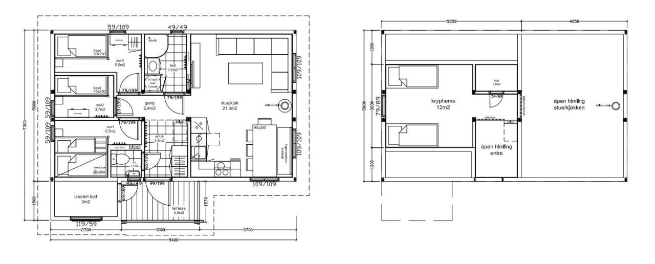
Planløsningen og rom delingen i denne hytta gir en svært effektiv plass utnyttelse.
Hyttemodellen utstråler tradisjoner, i en moderne og eksklusiv utførelse.
Hytta har stue, spiseplass og god kjøkkenplass.
Sove avdelingen har 3 rom
Der er innredet hems
Vindusløsningen gir godt med lys og god utsikt
Utvendig Bod
Denne Buen hytta er tilpasset et aktivt liv i naturen, sommer som vinter.
Standard
Alle våre hytter blir produsert i henhold til TEK17 og er gjenstand for stadig utvikling hvor vi utnytter det beste når det gjelder materialvalg, konstruksjonsdetaljer og design, for å skape en hytte som tåler vårt tøffe klima. .
Konstruksjonsdelen av hyttene produseres hos Nordic Houses OÜ, vår ISO 9001-godkjente fabrikk i Estland. Det kjente Buen-designet, spesialtilpasninger, tekniske tjenester og kontroll, leveres fra egen produksjon av Moen Design på Gvarv.
Alle hyttemodellene er produsert i henhold til samme strenge krav og gjør bruk av velprøvde tekniske løsninger. Selv i våre rimeligste modeller benytter vi markedets kraftigste dimensjonering, samme kresne materialvalg og samme krav til finish i alle ledd som i våre langt mer kostbare modeller.
Dette har vi gjort for å gjøre hyttekjøpet enkelt og trygt for deg som kunde.
For å se nærmere på standarden som er lagt inn i hytta kan dere ta kontakt med selger for nærmere avtale om visning.
Ta kontakt med megler for komplett informasjon
Nyttige lenker
Nærområdet
BUEN HYTTER AS
Lignende eiendommer til salgs


Velholdt og attraktiv 2-roms hytte. Innlagt strøm og vann. Bilvei frem

Koselig hytte beliggende i vakkert naturlandskap på Frøystul. Skiløyper og turområder i umiddelbar nærhet.
Innholdsrik helårshytte på stor/solrik tomt med skiløyper rett utenfor døren
Eventyrlig utsikt mot Gaustatoppen, ** VISN LØRD **skiløype, turstier , 6 solgt, solcelleanlegg 1 time kjøring +-,

Sjarmerende hytte med usjenert beliggenhet - Anneks - Solrik terrasse - Idylliske turmuligheter - Tilbygget i 2007
Annonsene kan være mangelfulle i forhold til lovpålagt opplysningsplikt. Før bindende avtale inngås oppfordres interessenter til å innhente komplett informasjon fra meglerforetaket, selger eller utleier.












