Bildegalleri

Velkommen til Lerkeveien 8B - Presentert av Veronika Hansen v/Eiendomsmegler1!
Inaktiv
Gamle Furuset
Hel tomannsbolig m/2 godkjente boenheter - 2 separate innganger i underetg. - Leieinntekter - Parkering - Tomt på 779 m²
Prisantydning8 000 000 kr
Nøkkelinfo
- Boligtype
- Tomannsbolig
- Eieform
- Eier (Selveier)
- Soverom
- 7
- Primærrom
- 241 m²
- Bruksareal
- 244 m²
- Etasje
- 2
- Byggeår
- 1981
- Energimerking
- F - Rød
- Tomteareal
- 779 m² (eiet)
Fasiliteter
Takterrasse
Balkong/Terrasse
Barnevennlig
Garasje/P-plass
Hage
Kjæledyr tillatt
Kabel-TV
Offentlig vann/kloakk
Rolig
Sentralt
Utsikt
Turterreng
Lademulighet
Balansert ventilasjon
Livsløpsstandard
Visning
Vi ønsker på forhånd å vite om du kommer på visning og ber deg ta kontakt for avtale om visning på angitt dag. Dette gjør vi for å kunne yte bedre service til kundene våre. For visninger utover de annonserte, ta kontakt med megler på telefon 970 78 846.
VisningspåmeldingOm boligen
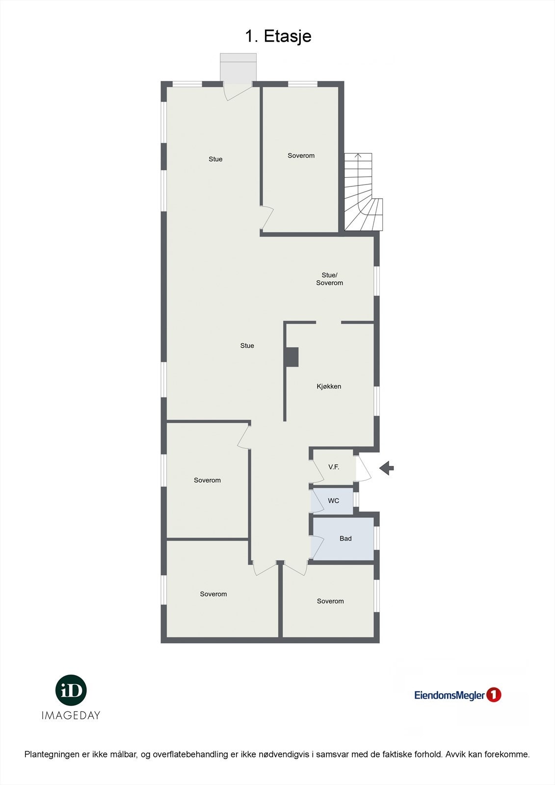
Velkommen til Lerkeveien 8B! - En hel tomannsbolig med 244 m² (BRA) og 2 godkjente boenheter. Dette er en perfekt bolig for dere som ønsker en rolig, men samtidig sentral beliggenhet med kort vei til Oslo sentrum, barnehager, skoler og marka.
Huset som strekker seg over to plan med 2 separate innganger i underetasjen består blant annet flere oppholdsrom, 7 soverom, 2 bad, vaskerom og 3 kjøkken. Innvendig oppleves huset luftig og har blitt påkostet i perioden 2018-2022 med tilbygg (3 soverom, vinterstue og takterrasse), 2 flislagte bad og vaskerom, downlights i hoveddelen, samt noen nye vinduer. Noe mod.behov må påregnes. Tomten inkluderer en solrik hage som omkranser boligen, takterrasse på 28 kvm og biloppst.plasser med varmekabler i bakken.
Huset som strekker seg over to plan med 2 separate innganger i underetasjen består blant annet flere oppholdsrom, 7 soverom, 2 bad, vaskerom og 3 kjøkken. Innvendig oppleves huset luftig og har blitt påkostet i perioden 2018-2022 med tilbygg (3 soverom, vinterstue og takterrasse), 2 flislagte bad og vaskerom, downlights i hoveddelen, samt noen nye vinduer. Noe mod.behov må påregnes. Tomten inkluderer en solrik hage som omkranser boligen, takterrasse på 28 kvm og biloppst.plasser med varmekabler i bakken.
NB: Knappen for å vise hele beskrivelsen har kun en visuell effekt.
NB: Knappen for å vise hele beskrivelsen har kun en visuell effekt.
Salgsoppgaven beskriver vesentlig og lovpålagt informasjon om eiendommen
Se komplett salgsoppgaveNyttige lenker
Nærområdet
EiendomsMegler 1 Stovner
Vi loser deg trygt gjennom hele boligsalget
Annonseinformasjon
| FINN-kode | 307092871 |
|---|---|
| Sist endret | 23. nov. 2023 11:47 |
| Referanse | 3286230152 |
Annonsene kan være mangelfulle i forhold til lovpålagt opplysningsplikt. Før bindende avtale inngås oppfordres interessenter til å innhente komplett informasjon fra meglerforetaket, selger eller utleier.









































