Bildegalleri

Nyoppført hytte med 3 soverom i Vessesetra på Kyrksæterøra. Fotograf: Haukdal / Interiørfoto AS
Nyoppført hytte med 3 soverom | Vei helt frem | Strøm, vann & avløp | Lav dok.avg |Kontakt megler for avtale om visning!
Prisantydning3 590 000 kr
- Omkostninger
- 5 100 kr
- Totalpris
- 3 595 100 kr
- Kommunale avg.
- 3 951 kr per år
Nøkkelinfo
- Beliggenhet
- På fjellet
- Boligtype
- Hytte
- Eieform
- Selveier
- Internt bruksareal
- 57 m² (BRA-i)
- Bruksareal
- 57 m²
- Tomteareal
- 1 112 m² (eiet)
- Byggeår
- 2022
- Soverom
- 3
- Rom
- 4
- Energimerking
Fasiliteter
Barnevennlig
Bilvei frem
Garasje/P-plass
Peis/Ildsted
Rolig
Utsikt
Innlagt strøm
Turterreng
Visning
Ønsker du en visning i påska? Ta kontakt med megler på tlf. 93 44 76 36 for å avtale tidspunkt!
Husk å lese komplett salgsoppgave før visning. Bestill komplett, utskriftsvennlig salgsoppgave.
VisningspåmeldingOm boligen
Nyoppført hytte beliggende i et attraktivt hyttefelt i Vessesetra på Kyrksæterøra.
Eiendommen ligger i naturskjønne omgivelser med flott turterreng like utenfor ytterdøra.
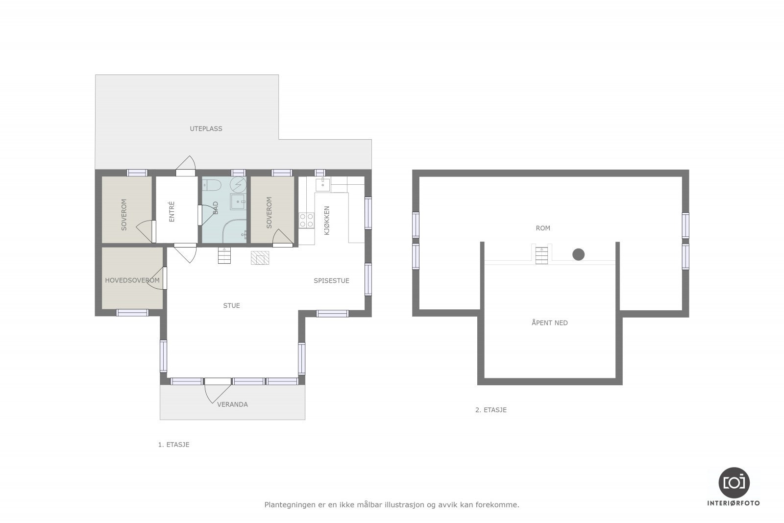
Hytta har en ny og moderne standard og inneholder gang, kjøkken/stue, 3 soverom og bad i 1.etasje. I tillegg er det adkomst til hems via stigetrapp fra stue.
Innlagt strøm, vann og avløp. Helårs bilvei helt frem eiendommen.
Eiendommen ligger kun 13 minutters kjøring unna sentrum av Kyrksæterøra med alle servicefunksjoner. Det er ca. 1 time og 40 minutter kjøring til Trondheim og ca. 1 time kjøring til Orkanger.
Da hytta er nyoppført og ikke tatt i bruk beregnes det kun dokumentavgift av tomteverdi (2,5% av kr 150.000,-).
Ønsker du en visning i påska? Ta kontakt med megler på tlf. 93 44 76 36 for å avtale tidspunkt!
Eiendommen ligger i naturskjønne omgivelser med flott turterreng like utenfor ytterdøra.
Hytta har en ny og moderne standard og inneholder gang, kjøkken/stue, 3 soverom og bad i 1.etasje. I tillegg er det adkomst til hems via stigetrapp fra stue.
Innlagt strøm, vann og avløp. Helårs bilvei helt frem eiendommen.
Eiendommen ligger kun 13 minutters kjøring unna sentrum av Kyrksæterøra med alle servicefunksjoner. Det er ca. 1 time og 40 minutter kjøring til Trondheim og ca. 1 time kjøring til Orkanger.
Da hytta er nyoppført og ikke tatt i bruk beregnes det kun dokumentavgift av tomteverdi (2,5% av kr 150.000,-).
Ønsker du en visning i påska? Ta kontakt med megler på tlf. 93 44 76 36 for å avtale tidspunkt!
NB: Knappen for å vise hele beskrivelsen har kun en visuell effekt.
NB: Knappen for å vise hele beskrivelsen har kun en visuell effekt.
Salgsoppgaven beskriver vesentlig og lovpålagt informasjon om eiendommen
Se komplett salgsoppgaveNærområdet
Aktiv Kystregionen
Annonseinformasjon
| FINN-kode | 306525425 |
|---|---|
| Sist endret | 26. mars 2026 20:47 |
| Referanse | 1701230024 |
Annonsene kan være mangelfulle i forhold til lovpålagt opplysningsplikt. Før bindende avtale inngås oppfordres interessenter til å innhente komplett informasjon fra meglerforetaket, selger eller utleier.




































