Bildegalleri

Velkommen til Haugenlia 25 | Presentert av Mohsin Ali for EiendomsMegler 1
Solgt
Skedsmokorset
Trivelig og familievennlig rekkehus o/3 plan | Rålekkert kjøkken fra Kvik 2021 | Herlige uteplasser | Carport m/lader
Prisantydning4 490 000 kr
Nøkkelinfo
- Boligtype
- Rekkehus
- Eieform
- Eier (Selveier)
- Soverom
- 3
- Primærrom
- 125 m²
- Bruksareal
- 132 m²
- Etasje
- 3
- Byggeår
- 1969
- Rom
- 4
- Tomteareal
- 15 712 m² (eiet)
Fasiliteter
Balkong/Terrasse
Barnevennlig
Garasje/P-plass
Kabel-TV
Offentlig vann/kloakk
Lademulighet
Om boligen
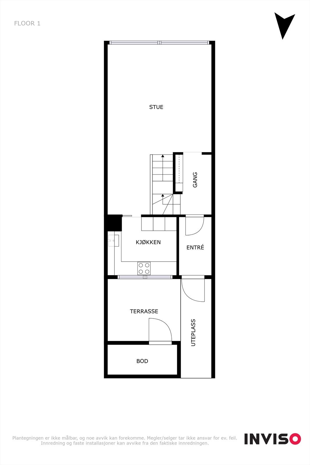
Familievennlig og gjennomgående rekkebolig, med herlige uteplasser. Interiøret er lyst og trivelig og det er nyere og flott Kvik-kjøkken fra 2021. Attraktivt og barnevennlig boligområde, sentralt plassert midt mellom Oslo og Gardermoen. Fra eiendommen er det gangavstand til skoler, barnehager, offentlig kommunikasjon, samt et rikt utvalg av fasiliteter og servicetilbud.
Kort fortalt:
- Stor sydvendt terrasse
- Skjermet inngangsparti
- Gjennomgående planløsning
- Lys og trivelig stue
- Flott Kvik-kjøkken fra 2021
- Pent flislagt bad og separat wc-rom
- Eget vaskerom/wc i underetasjen
- Muligh. for å etablere kjøkken i underetg
- Godt med lagring
- Utvendig sportsbod på 5 m2
- Medfølgende carport med lader
- Nærhet til friluft og rekreasjon
- Gangavstand til Skedsmo Senter
- 2 min til buss
Kort fortalt:
- Stor sydvendt terrasse
- Skjermet inngangsparti
- Gjennomgående planløsning
- Lys og trivelig stue
- Flott Kvik-kjøkken fra 2021
- Pent flislagt bad og separat wc-rom
- Eget vaskerom/wc i underetasjen
- Muligh. for å etablere kjøkken i underetg
- Godt med lagring
- Utvendig sportsbod på 5 m2
- Medfølgende carport med lader
- Nærhet til friluft og rekreasjon
- Gangavstand til Skedsmo Senter
- 2 min til buss
NB: Knappen for å vise hele beskrivelsen har kun en visuell effekt.
NB: Knappen for å vise hele beskrivelsen har kun en visuell effekt.
Salgsoppgaven beskriver vesentlig og lovpålagt informasjon om eiendommen
Se komplett salgsoppgaveNyttige lenker
Nærområdet
EiendomsMegler 1 Stovner
Vi loser deg trygt gjennom hele boligsalget
Prisstatistikk
Haugenlia 25
7 502 klikk
på annonsen
36 745 kr
prisantydning per kvadratmeter
Prisfordeling
Pris per m² ligger 10 255 kr under snittet for rekkehus i Skedsmo.
Grafen viser antall rekkehus solgt i Skedsmo siste året fordelt på pris per m² - totalt 185 rekkehus
Antall boliger
Kvadratmeterpris tilsvarer prisantydning pluss fellesgjeld per kvadratmeter (p-rom eller BRA-i). Prisene i grafen er avrundet til nærmeste 1000 kr.
Annonseinformasjon
| FINN-kode | 306520230 |
|---|---|
| Sist endret | 12. nov. 2023 11:44 |
| Referanse | 3286230165 |
Annonsene kan være mangelfulle i forhold til lovpålagt opplysningsplikt. Før bindende avtale inngås oppfordres interessenter til å innhente komplett informasjon fra meglerforetaket, selger eller utleier.










































