Bildegalleri

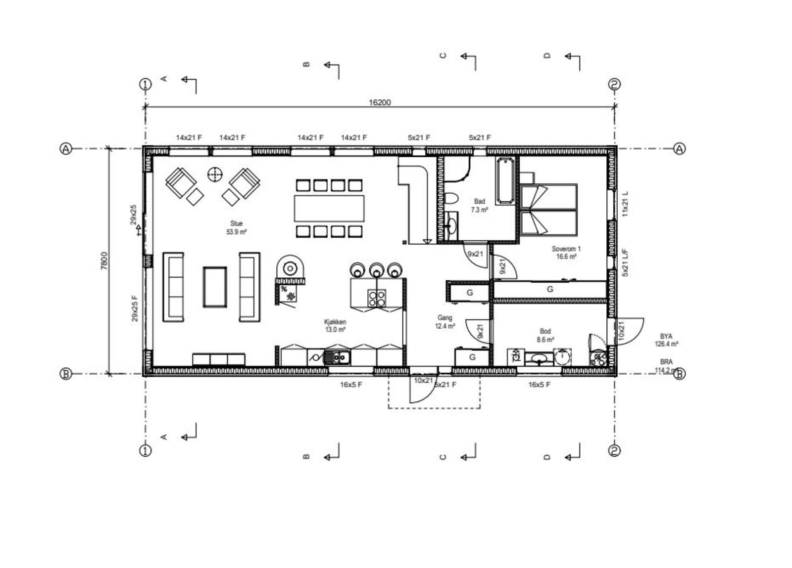
Plantegning 1.etasje.

Kvislabakkvegen 1

Familiebolig med 4 soverom, 2 baderom, vaskerom og 2 stuer. Barnevennlig beliggenhet like ved barneskole og barnehage!

Prisantydning6 650 000 kr
Totalpris
6 701 170 kr
Omkostninger
51 170 kr
  • Planlegging

    2024

  • Salgsstart

    2024

  • Byggestart

    Våren 2025

  • Overtakelse

    2026

Nøkkelinfo

Boligtype
Enebolig
Soverom
4
Primærrom
153 m²
Bruksareal
162 m²

Les mer om bruksareal her

Fasiliteter

Balkong/Terrasse

Visning

Ta kontakt for å avtale visning.Visningspåmelding

Beskrivelse

Innhold

Fremtredende kvaliteter er:
- 2 flislagte baderom i begge etasjer. Moderne utførelse med 60x60 flis.
- Belegg på bod/vaskerom, for en enklere rengjøring.
- Slette gipsvegger og OPUS vinylgulv i moderne fargetoner.
- Kjøkken fra Norema, leveres med integrerte hvitevarer.
- Tilrettelagt for barnefamilie med 4 soverom, 2 baderom og 2 stuer.
- Fantastisk takhøyde og vindusflater fra gulv til tak.
- Stor uteområde. Gode parkeringsmuligheter på tomten.
- Mulighet for vedfyring samt elektrisk oppvarming med bl.a. gulvvarme på baderom/vaskerom/entre.

Oppvarming

Boligens oppvarming består av:
Elektrisk gulvvarme på begge baderom, bod 1.etasje og entre som styres med hver sin gulvvarmekontroll.
Mulighet for vedfyring på stue 1.etasje.

Se vedlagte leveransebeskrivelse og romskjema.

Energimerking
Energimerking blir gitt ved ferdigstillelse.

Beliggenhet

Kvislabakken kan best karakteriseres som fredelig, barnevennlig og sentrumsnært. Her finnes bl.a. dagligvarerbutikken Kiwi, Kvislabakken barneskole hvor man også finner barnehage samt idrettsanlegg. For øvrig er det flere lekeplasser i området. Fra leiligheten tar det ca. 5 minutter å kjøre til sentrum hvor man finner alt av service fasiliteter samt Stjørdal stasjon som er Trøndelags knutepunkt med hyppige tog- og bussavganger.

Parkeringsforhold

Asfaltert gårdsplass med gode parkeringsmuligheter på tomten.

Faste løpende utgifter

Kommunale avgifter
Kommunale avgifter pr. år kr 0,-

Ligningsverdi (formuesverdi)

Primær formuesverdi kr 0,-
Sekundær formuesverdi kr 0,-

Betalingsbetingelser

Kjøpesum, omkostninger og evt. tilvalg skal være bekreftet innbetalt senest innen 2 virkedager før Overtakelsesdato. Det samme gjelder ved oversendelse av pantedokumenter for tinglysing. Kjøper er selv ansvarlig for at innbetalinger og pantedokumenter er megler i hende i rett tid.

Alle kontraktsinnbetalinger skal skje til: Meglerhuset Nylander AS sin klientkonto i Danske Bank. Det tas forbehold om eventuell endring av offentlige gebyrer og avgifter. Kjøper aksepterer at eventuelt økning i mva. og andre offentlige avgifter som måtte bli fastsatt etter inngåelse av denne kontrakt kan utlignes på kjøper med den forholdsmessige andel og kun for den del av leveransen som i slikt tilfelle får økte avgifter i henhold til entreprenørens oppstilling.

Nærområdet

Annonseinformasjon

FINN-kode306477453
Sist endret21. okt. 2025 06:54
ReferanseNY83.22291

Rapporter annonse

Annonsene kan være mangelfulle i forhold til lovpålagt opplysningsplikt. Før bindende avtale inngås oppfordres interessenter til å innhente komplett informasjon fra meglerforetaket, selger eller utleier.