Bildegalleri

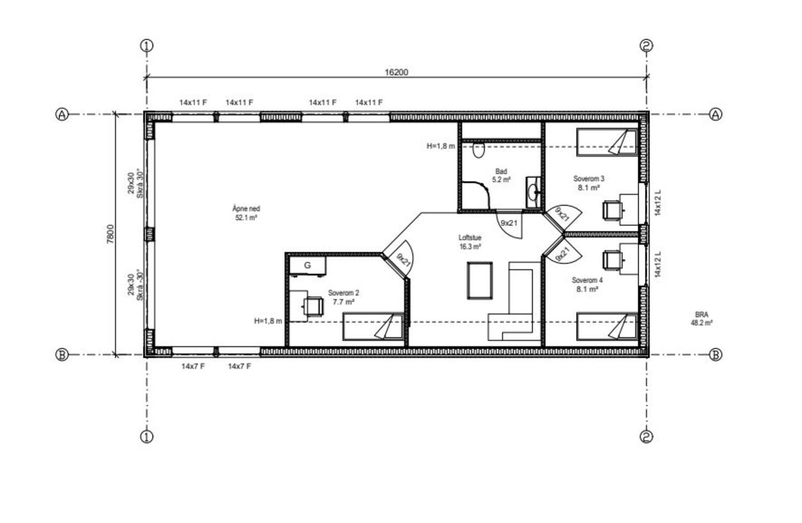
Plantegning 1.etasje.
Kvislabakkvegen 1
Familiebolig med 4 soverom, 2 baderom, vaskerom og 2 stuer. Barnevennlig beliggenhet like ved barneskole og barnehage!
Prosjektets status
Planlegging
2024
Salgsstart
2024
Byggestart
Våren 2025
Overtakelse
2026
Nøkkelinfo
- Boligtype
- Enebolig
- Soverom
- 4
- Primærrom
- 153 m²
- Bruksareal
- 162 m²
Fasiliteter
Beskrivelse
3
Innhold
Fremtredende kvaliteter er:
- 2 flislagte baderom i begge etasjer. Moderne utførelse med 60x60 flis.
- Belegg på bod/vaskerom, for en enklere rengjøring.
- Slette gipsvegger og 1-stavs laminatgulv i moderne fargetoner.
- Kjøkken fra Norema, leveres med integrerte hvitevarer.
- Tilrettelagt for barnefamilie med 4 soverom, 2 baderom og 2 stuer.
- Fantastisk takhøyde og vindusflater fra gulv til tak.
- Stor hage og uteareal. Gode parkeringsmuligheter på tomten.
- Vedfyring samt elektrisk oppvarming med bl.a. gulvvarme på baderom/vaskerom/entre.
- Universell utforming med baderom, soverom og kjøkken i 1.etasje.
Parkeringsforhold
Asfaltert gårdsplass med gode parkeringsmuligheter på tomten.
Faste løpende utgifter
Kommunale avgifter
Kommunale avgifter pr. år kr 0,-
Ligningsverdi (formuesverdi)
Primær formuesverdi kr 0,-
Sekundær formuesverdi kr 0,-
Viktig informasjon
2
Nyttige lenker
Nærområdet
Nylander &Partners, Stjørdal
Annonseinformasjon
| FINN-kode | 306477452 |
|---|---|
| Sist endret | 07. okt. 2025 07:47 |
| Referanse | NY83.22292 |
Annonsene kan være mangelfulle i forhold til lovpålagt opplysningsplikt. Før bindende avtale inngås oppfordres interessenter til å innhente komplett informasjon fra meglerforetaket, selger eller utleier.


