Bildegalleri

EiendomsMegler1 v/ Ørjan Tokle Sande presenterer her en fritidseiendom i Elias Blix vei 244.
Solgt
Sandhornøya
Attraktiv hytte med to anneks | Vestvendt | Fantastisk beliggenhet | 7 sengeplasser fordelt på 3 soverom | 360 visning
Prisantydning1 200 000 kr
- Omkostninger
- 31 170 kr
- Totalpris
- 1 231 170 kr
- Eiendomsskatt
- 1 255 kr per år
Nøkkelinfo
- Boligtype
- Andre
- Eieform
- Eier (Selveier)
- Primærrom
- 34 m²
- Bruksareal
- 35 m²
- Tomteareal
- 1 248 m² (eiet)
- Byggeår
- 1991
- Soverom
- 3
- Rom
- 4
- Sengeplasser
- 7
- Energimerking
- E - Rød
Fasiliteter
Balkong/Terrasse
Garasje/P-plass
Peis/Ildsted
Turterreng
Utsikt
Bilvei frem
Innlagt strøm
Om boligen
Velkommen til Elias Blix vei 244 og denne fritidsboligen beliggende i flotte omgivelser. Hytten har peis, god takhøyde og store vindusflater som sammen gir en fantastisk hyttefølelse. Stor terrasse med flere møbleringsmuligheter. Kort vei til uendelige turmuligheter.
Eiendommen ligger på Sandhornøy, ca. 1 time og 20 minutter fra Bodø sentrum. Fantastiske sandstrender som Sandhornstranda, omgitt av fantastisk natur. Sandhornet, er det høyeste fjellet som er ca. 993 moh. Området er perfekt for naturelskere med fotturer, fiske, kajakkpadling og andre aktiviteter. Dette passer deg perfekt enten du søker avslapning eller aktiv ferie.
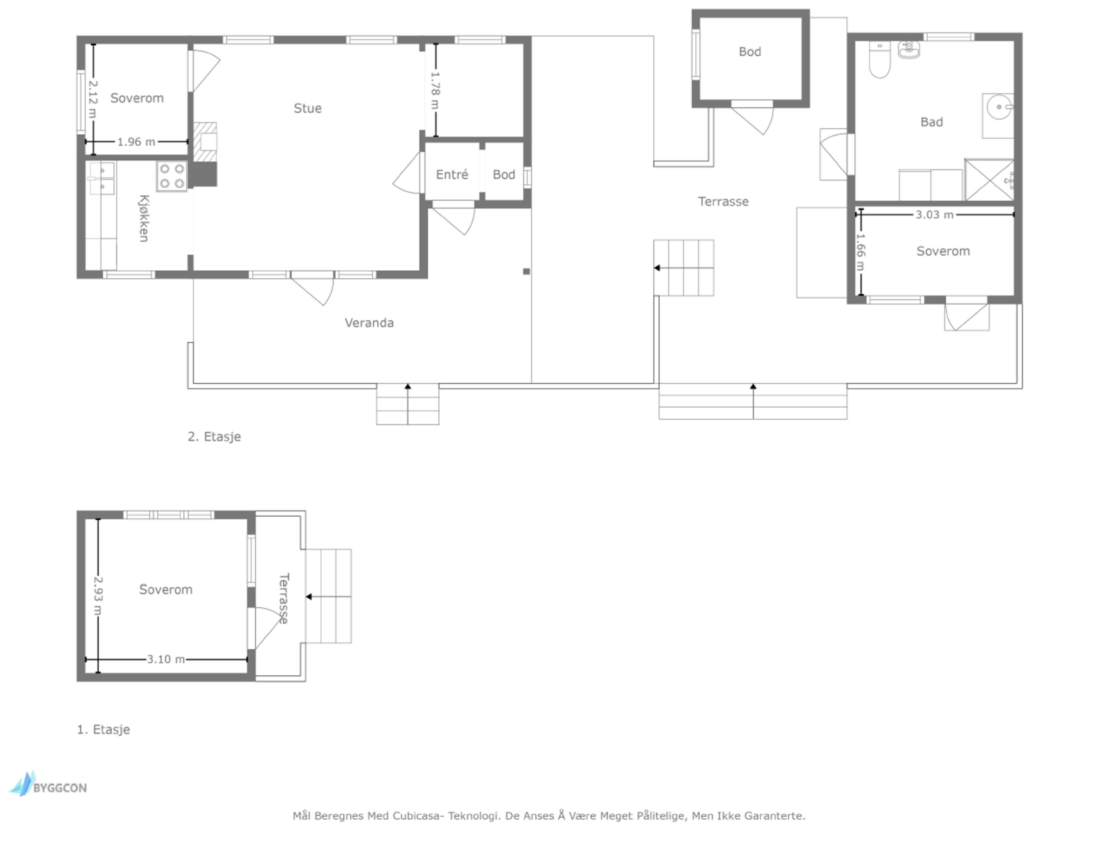
Det er totalt fire bygg på eiendommen. Her finner vi hovedhuset, 2 anneks og bod. Her får du 7 sengeplasser fordelt på 3 soverom.
Velkommen på visning!
Eiendommen ligger på Sandhornøy, ca. 1 time og 20 minutter fra Bodø sentrum. Fantastiske sandstrender som Sandhornstranda, omgitt av fantastisk natur. Sandhornet, er det høyeste fjellet som er ca. 993 moh. Området er perfekt for naturelskere med fotturer, fiske, kajakkpadling og andre aktiviteter. Dette passer deg perfekt enten du søker avslapning eller aktiv ferie.
Det er totalt fire bygg på eiendommen. Her finner vi hovedhuset, 2 anneks og bod. Her får du 7 sengeplasser fordelt på 3 soverom.
Velkommen på visning!
NB: Knappen for å vise hele beskrivelsen har kun en visuell effekt.
NB: Knappen for å vise hele beskrivelsen har kun en visuell effekt.
Salgsoppgaven beskriver vesentlig og lovpålagt informasjon om eiendommen
Se komplett salgsoppgaveNyttige lenker
Nærområdet
EiendomsMegler 1 Bodø - Stormen
Vi er der du er - EiendomsMegler 1
Annonseinformasjon
| FINN-kode | 304893326 |
|---|---|
| Sist endret | 26. okt. 2023 13:18 |
| Referanse | 23230092 |
Annonsene kan være mangelfulle i forhold til lovpålagt opplysningsplikt. Før bindende avtale inngås oppfordres interessenter til å innhente komplett informasjon fra meglerforetaket, selger eller utleier.























