Bildegalleri

drone-0018
Solgt
Berger/Kjelleråsen
Pen og solrik hytte beliggende høyt og fritt med utsikt. Oppgradert i 2003. Innlagt vann og avløp. Anneks. Båtplass.
Prisantydning2 800 000 kr
- Omkostninger
- 71 170 kr
- Totalpris
- 2 871 170 kr
- Kommunale avg.
- 2 276 kr per år
- Formuesverdi
- 106 445 kr
Nøkkelinfo
- Beliggenhet
- Ved sjøen
- Boligtype
- Hytte
- Eieform
- Eier (Selveier)
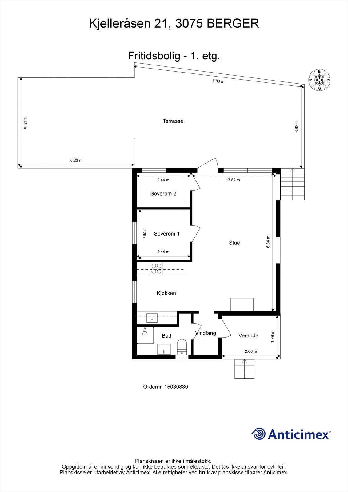
- Primærrom
- 47 m²
- Bruksareal
- 47 m²
- Tomteareal
- 488 m² (eiet)
- Byggeår
- 1963
- Soverom
- 2
- Rom
- 3
- Energimerking
- G - Rød
- Overtakelse
- Etter nærmere avtale.
Fasiliteter
Innlagt vann
Balkong/Terrasse
Barnevennlig
Bilvei frem
Båtplass
Garasje/P-plass
Hage
Peis/Ildsted
Rolig
Utsikt
Bademulighet
Fiskemulighet
Innlagt strøm
Offentlig vann/kloakk
Turterreng
Om boligen
Pen og solrik hytte på toppen av Kjelleråsen.
- Gode solforhold
- Pent oppusset i alle rom (2003).
- Flislagt bad fra 2010 med dusjkabinett og varmekabler
- Fornyet el-anlegg med nytt skap og automatkurser i 2003
- Ny kledning, isolasjon, vinduer og taktekke i 2003
- Innlagt kommunalt vann og avløp i 2010
- Frittstående anneks fra 2004
- Kjørevei helt frem til hytteveggen
- Kort gangavstand ned til fjorden med badestrand og eget bryggeanlegg
- Denne eiendommen rett til båtplass i bryggeanlegget
- Området ligger ca. 7 kilometer fra Svelvik sentrum (mellom Svelvik og Sande)
Det gjøres spesielt oppmerksom på at terrassen må ombygges i tråd med allerede avgitt byggetillatelse. Les mer i prospekt.
Velkommen til visning!
NB: Knappen for å vise hele beskrivelsen har kun en visuell effekt.
NB: Knappen for å vise hele beskrivelsen har kun en visuell effekt.
Salgsoppgaven beskriver vesentlig og lovpålagt informasjon om eiendommen
Se komplett salgsoppgaveNyttige lenker
Nærområdet
Krogsveen Drammen
Verdien av en god megler.
Annonseinformasjon
| FINN-kode | 304885016 |
|---|---|
| Sist endret | 03. aug. 2023 07:09 |
| Referanse | KR20.23186 |
Annonsene kan være mangelfulle i forhold til lovpålagt opplysningsplikt. Før bindende avtale inngås oppfordres interessenter til å innhente komplett informasjon fra meglerforetaket, selger eller utleier.













































