Bildegalleri

Landbrukseiendom med våningshus, drengestue, stor garasje og låve. Ca. 81 daa tomt.
Nøkkelinfo
- Boligtype
- Gårdsbruk/Småbruk
- Eieform
- Eier (Selveier)
- Soverom
- 3
- Primærrom
- 182 m²
- Bruksareal
- 217 m²
- Byggeår
- 1964
- Energimerking
- F - Oransje
- Tomteareal
- 81 728 m² (eiet)
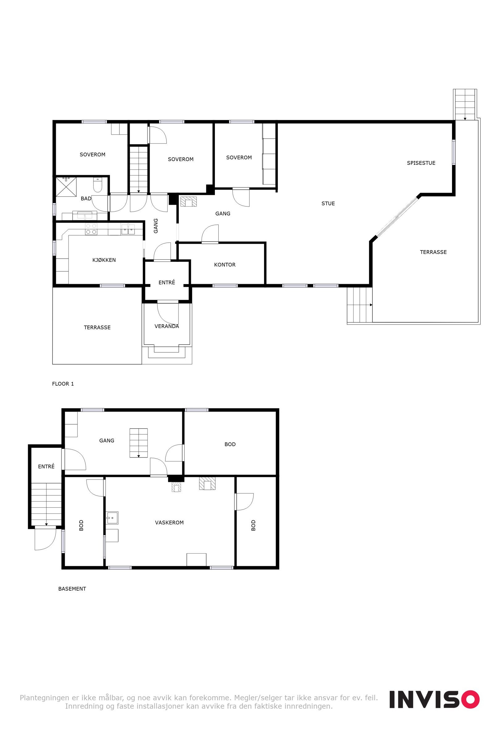
Om boligen
Velholdt og fin landbrukseiendom med usjenert og idyllisk beliggenhet i Våler. Eiendommen består av en innbydende og fin enebolig, drengestue, stor isolert garasje med plass til tre biler og bod i bakkant og låve. Eneboligen har blant annet 3 soverom og alt du trenger i boligens hovedetasje.
- Velholdt og sjarmerende landbrukseiendom
- Enebolig med god standard og 3 soverom
- Nyere bad og kjøkken
- Koselig tun med bjørkeallé inn til eiendommen og rundkjøring mellom bygningene på tunet
- Landlig og usjenert beliggenhet
Her bor du i landlige omgivelser, samtidig som det ikke er mer enn ca. 6 km til sentrum av Våler hvor du blant annet finner barnehage, skole, dagligvarebutikk og øvrige servicetilbud.
Velkommen til visning - husk visningspåmelding!
Salgsoppgaven beskriver vesentlig og lovpålagt informasjon om eiendommen
Se komplett salgsoppgaveNyttige lenker
Nærområdet
Rustad & Partners
Prisstatistikk
Svenskevegen 312
på annonsen
prisantydning per kvadratmeter
Prisfordeling
Pris per m² ligger 6 175 kr over snittet for gårdsbruk/småbruk i Våler (Innlandet).
Grafen viser antall gårdsbruk/småbruk solgt i Våler (Innlandet) siste året fordelt på pris per m² - totalt 4 gårdsbruk/småbruk
Antall boliger
Kvadratmeterpris tilsvarer prisantydning pluss fellesgjeld per kvadratmeter (p-rom eller BRA-i). Prisene i grafen er avrundet til nærmeste 1000 kr.
Annonsene kan være mangelfulle i forhold til lovpålagt opplysningsplikt. Før bindende avtale inngås oppfordres interessenter til å innhente komplett informasjon fra meglerforetaket, selger eller utleier.







































