Bildegalleri

Solgt
Velkommen til Langhus
Fantastisk 5-roms med stor og solrik terrasse, nydelig utsikt, 2 p-plasser og mye lagring
Prisantydning7 500 000 kr
Nøkkelinfo
- Boligtype
- Leilighet
- Eieform
- Eier (Selveier)
- Soverom
- 4
- Primærrom
- 132 m²
- Bruksareal
- 135 m²
- Etasje
- 3
- Byggeår
- 2014
- Energimerking
- D - Rød
- Tomteareal
- 4 307 m² (eiet)
Fasiliteter
Barnevennlig
Balkong/Terrasse
Garasje/P-plass
Turterreng
Utsikt
Sentralt
Moderne
Rolig
Lademulighet
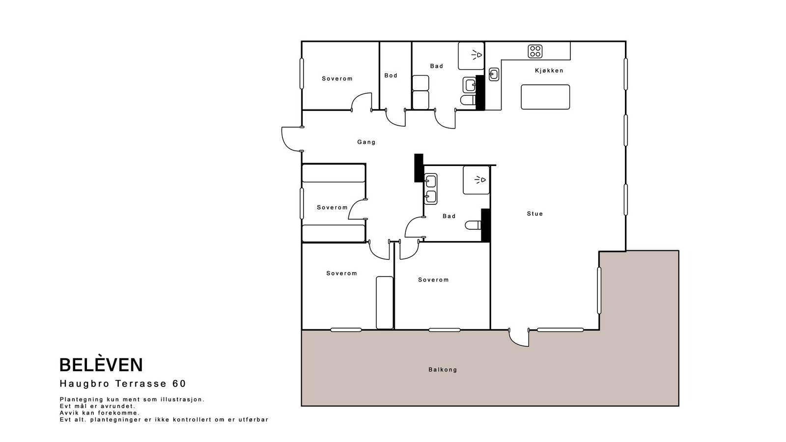
Om boligen
Attraktiv leilighet i naturskjønne omgivelser med gjennomgående god standard. Store vindusflater slipper godt med naturlig lys inn og byr på upåklagelig utsyn utover nærområdet og marka. Leiligheten har en stor, og åpen stue- og spisestueløsning og et lekkert kjøkken med god med skap- og benkeplass. To delikate bad og fire rolige soverom med praktisk tilgang til baderom.
Fra stuen er det utgang til terrasse på ca. 53 kvm med fantastiske solforhold og nydelig, helt uten innsyn. Flotte rekreasjonsmuligheter med blant annet Nøstvedtmarka som nærmeste nabo. Kort vei til et godt servicetilbud på Langhus og Ski.
300 meter til nærmeste bussholdeplass. Buss til Ski stasjon tar 8 minutter, og som igjen korresponderer med tog med 11 minutter til Oslo S. Det er ytterligere parkeringsmuligheter ved fire gjesteplasser i sameiet.
Tilgang til to garasjeplasser bak egen port med elbillader, innvendig bod og kjellerbod på ca. 12 kvm.
Fra stuen er det utgang til terrasse på ca. 53 kvm med fantastiske solforhold og nydelig, helt uten innsyn. Flotte rekreasjonsmuligheter med blant annet Nøstvedtmarka som nærmeste nabo. Kort vei til et godt servicetilbud på Langhus og Ski.
300 meter til nærmeste bussholdeplass. Buss til Ski stasjon tar 8 minutter, og som igjen korresponderer med tog med 11 minutter til Oslo S. Det er ytterligere parkeringsmuligheter ved fire gjesteplasser i sameiet.
Tilgang til to garasjeplasser bak egen port med elbillader, innvendig bod og kjellerbod på ca. 12 kvm.
NB: Knappen for å vise hele beskrivelsen har kun en visuell effekt.
NB: Knappen for å vise hele beskrivelsen har kun en visuell effekt.
Salgsoppgaven beskriver vesentlig og lovpålagt informasjon om eiendommen
Se komplett salgsoppgaveNærområdet
Belèven Eiendomsmegling
Prisstatistikk
Haugbro terrasse 60
11 447 klikk
på annonsen
56 818 kr
prisantydning per kvadratmeter
Prisfordeling
Pris per m² ligger 11 182 kr under snittet for leiligheter i Ski.
Grafen viser antall leiligheter solgt i Ski siste året fordelt på pris per m² - totalt 435 leiligheter
Antall boliger
Kvadratmeterpris tilsvarer prisantydning pluss fellesgjeld per kvadratmeter (p-rom eller BRA-i). Prisene i grafen er avrundet til nærmeste 1000 kr.
Annonsene kan være mangelfulle i forhold til lovpålagt opplysningsplikt. Før bindende avtale inngås oppfordres interessenter til å innhente komplett informasjon fra meglerforetaket, selger eller utleier.




























