Bildegalleri

Fossbakken 38 - Suveren enderekke med attraktiv beliggenhet
Solgt
Lier Hageby
Tiltalende og nyere enderekkehus med 3 soverom- 2 stuer- 2 bad- Carport- Suveren utsikts og solforhold- El-bil lader
Prisantydning6 100 000 kr
Nøkkelinfo
- Boligtype
- Rekkehus
- Eieform
- Eier (Selveier)
- Soverom
- 3
- Primærrom
- 109 m²
- Bruksareal
- 115 m²
- Byggeår
- 2020
- Energimerking
- B - Oransje
- Rom
- 5
- Tomteareal
- 86 m² (eiet)
Fasiliteter
Takterrasse
Balkong/Terrasse
Barnevennlig
Garasje/P-plass
Hage
Peis/Ildsted
Rolig
Sentralt
Utsikt
Turterreng
Lademulighet
Om boligen
Tiltalende enderekkehus på Soltoppen -Lier Hageby. Fin intern beliggenhet med blant annet inngang på midtre plan som tar deg direkte inn i hovedetasjen.
Godt familiemiljø og høy andel barnefamilier i et nyetablert boligområde. Flere nærlekeplasser for de yngste på feltet. For de litt eldre kan man dra nytte av fasiliteten i nærområdet med fotballbane, treningspark, frisbeegolf mm.
Kort vei til flere barnehager og skoler.
Boligen ligger sydvestvendt som sikrer sol fra morgen til kveld akkompagnert av vidstrakt utsikt!
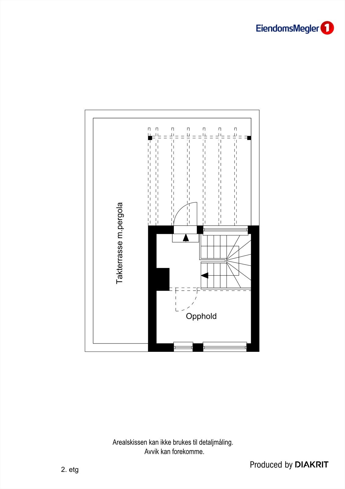
God planløsning med soverommene samlet i underetasje sammen med bad/vaskerom. Stue, spisestue, kjøkken og bad i midtre plan i 1.etg og med en suveren toppetasje med stue og adkomst til takterrasse i 2. etasje.
Parkeringsplass rett ved inngang med el-bil lader samt carport
Godt familiemiljø og høy andel barnefamilier i et nyetablert boligområde. Flere nærlekeplasser for de yngste på feltet. For de litt eldre kan man dra nytte av fasiliteten i nærområdet med fotballbane, treningspark, frisbeegolf mm.
Kort vei til flere barnehager og skoler.
Boligen ligger sydvestvendt som sikrer sol fra morgen til kveld akkompagnert av vidstrakt utsikt!
God planløsning med soverommene samlet i underetasje sammen med bad/vaskerom. Stue, spisestue, kjøkken og bad i midtre plan i 1.etg og med en suveren toppetasje med stue og adkomst til takterrasse i 2. etasje.
Parkeringsplass rett ved inngang med el-bil lader samt carport
NB: Knappen for å vise hele beskrivelsen har kun en visuell effekt.
NB: Knappen for å vise hele beskrivelsen har kun en visuell effekt.
Salgsoppgaven beskriver vesentlig og lovpålagt informasjon om eiendommen
Se komplett salgsoppgaveNyttige lenker
Nærområdet
EiendomsMegler 1 Lier
et foretak i SpareBank 1 Sør-Norge konsernet
Prisstatistikk
Fossbakken 38
5 972 klikk
på annonsen
55 963 kr
prisantydning per kvadratmeter
Prisfordeling
Pris per m² ligger 12 963 kr over snittet for rekkehus i Lier.
Grafen viser antall rekkehus solgt i Lier siste året fordelt på pris per m² - totalt 53 rekkehus
Antall boliger
Kvadratmeterpris tilsvarer prisantydning pluss fellesgjeld per kvadratmeter (p-rom eller BRA-i). Prisene i grafen er avrundet til nærmeste 1000 kr.
Annonseinformasjon
| FINN-kode | 303522944 |
|---|---|
| Sist endret | 07. aug. 2023 08:04 |
| Referanse | 7026230019 |
Annonsene kan være mangelfulle i forhold til lovpålagt opplysningsplikt. Før bindende avtale inngås oppfordres interessenter til å innhente komplett informasjon fra meglerforetaket, selger eller utleier.













































