Bildegalleri

EiendomsMegler 1 v/Awet Tella har gleden av å presentere Prost Krags veg 2!
Solgt
Sundet
Romslig og innholdsrik enebolig på 209 BRA | Hybeldel | Garasje og carport | Stor gårdsplass | Sentralt beliggenhet
Prisantydning4 550 000 kr
Nøkkelinfo
- Boligtype
- Enebolig
- Eieform
- Eier (Selveier)
- Soverom
- 3
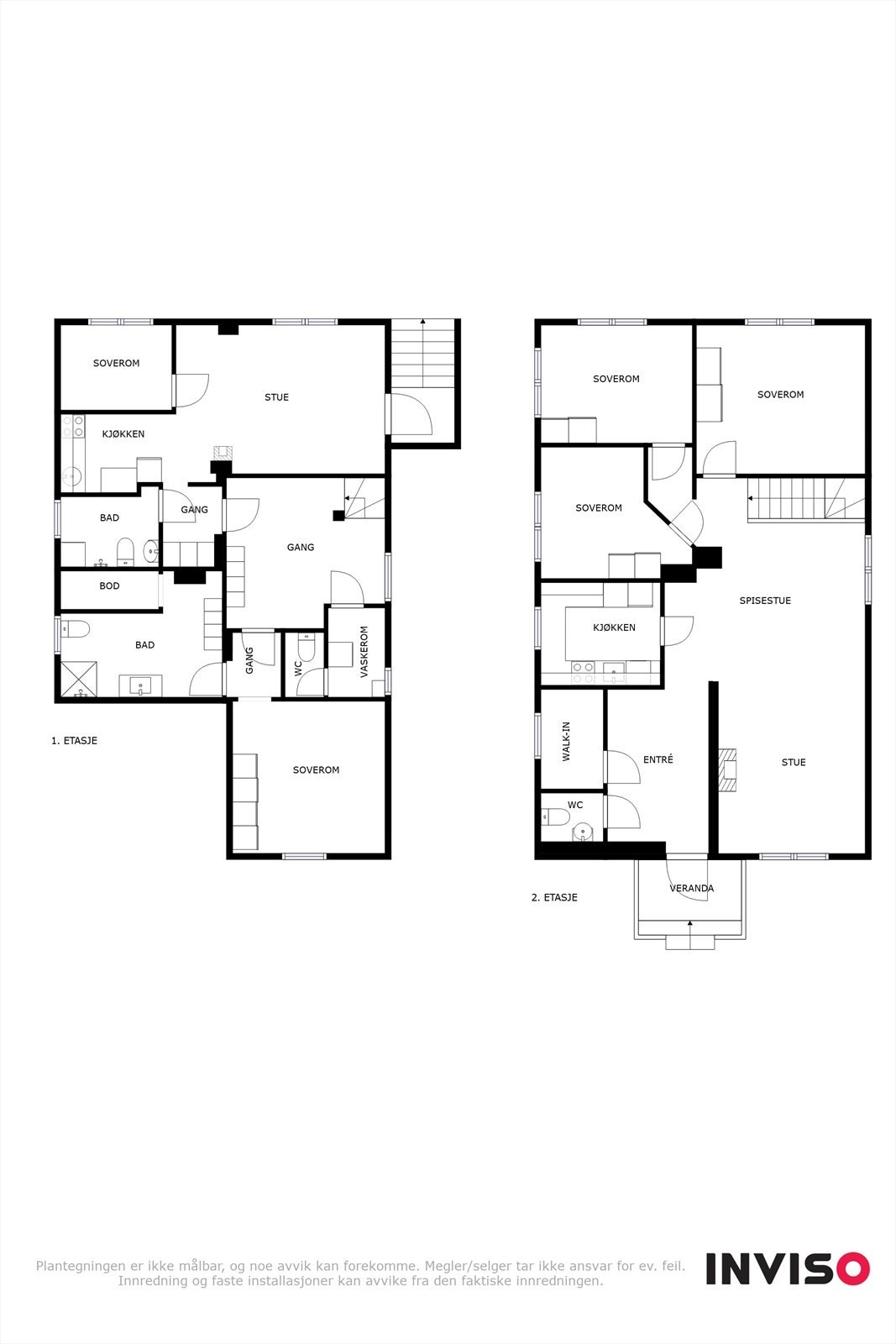
- Primærrom
- 206 m²
- Bruksareal
- 209 m²
- Etasje
- 2
- Byggeår
- 1950
- Energimerking
- G - Rød
- Rom
- 4
- Tomteareal
- 554 m² (eiet)
Fasiliteter
Garasje/P-plass
Kjæledyr tillatt
Offentlig vann/kloakk
Sentralt
Om boligen
Romslig og tiltalende familiebolig over to etasjer. Mange gode parkeringsmuligheter på asfaltert gårdsplass, samt garasje og carport. Boligen ligger i et meget sentralt område i sentrum av Eidsvoll. Området har nærhet til skoler, barnehager, offentlig kommunikasjon, samt et rikt utvalg av fasiliteter og servicetilbud. For båtfolket er det kort vei til Mjøsa og idylliske Vorma med gjestehavner og båtforeninger.
Kort fortalt:
- Romslig familiebolig
- Praktisk planløsning over to etasjer
- Lys og trivelig interiør
- To flislagte bad oppusset i 2009
- Tre lune og gode soverom
- Separat gjestetoalett og vaskerom
- Rikelig med lagringsmuligheter
- Deler av underetasjen er utleid som hybel
- Gode parkeringsfasiliteter
- Meget sentral beliggenhet på Eidsvoll
- Kort gange til skole og barnehage
Kort fortalt:
- Romslig familiebolig
- Praktisk planløsning over to etasjer
- Lys og trivelig interiør
- To flislagte bad oppusset i 2009
- Tre lune og gode soverom
- Separat gjestetoalett og vaskerom
- Rikelig med lagringsmuligheter
- Deler av underetasjen er utleid som hybel
- Gode parkeringsfasiliteter
- Meget sentral beliggenhet på Eidsvoll
- Kort gange til skole og barnehage
NB: Knappen for å vise hele beskrivelsen har kun en visuell effekt.
NB: Knappen for å vise hele beskrivelsen har kun en visuell effekt.
Salgsoppgaven beskriver vesentlig og lovpålagt informasjon om eiendommen
Se komplett salgsoppgaveNyttige lenker
Nærområdet
EiendomsMegler 1 Stovner
Vi loser deg trygt gjennom hele boligsalget
Prisstatistikk
Prost Krags veg 2
3 769 klikk
på annonsen
22 087 kr
prisantydning per kvadratmeter
Prisfordeling
Pris per m² ligger 4 913 kr under snittet for eneboliger i Eidsvoll.
Grafen viser antall eneboliger solgt i Eidsvoll siste året fordelt på pris per m² - totalt 218 eneboliger
Antall boliger
Kvadratmeterpris tilsvarer prisantydning pluss fellesgjeld per kvadratmeter (p-rom eller BRA-i). Prisene i grafen er avrundet til nærmeste 1000 kr.
Annonseinformasjon
| FINN-kode | 302656966 |
|---|---|
| Sist endret | 19. sep. 2023 06:09 |
| Referanse | 3286230092 |
Annonsene kan være mangelfulle i forhold til lovpålagt opplysningsplikt. Før bindende avtale inngås oppfordres interessenter til å innhente komplett informasjon fra meglerforetaket, selger eller utleier.
















































