Bildegalleri

Velkommen til Storgata 1 b
Sentralt i Son: Stor klassisk eiendom med et lyst anneks/atelier. Vid utsikt. Bør oppleves ved et besøk.
Nøkkelinfo
- Boligtype
- Enebolig
- Eieform
- Eier (Selveier)
- Soverom
- 4
- Primærrom
- 200 m²
- Bruksareal
- 227 m²
- Byggeår
- 1987
- Tomteareal
- 938 m² (eiet)
Kort om eiendommen
Velkommen til Storgata 1 B!
Stor og innholdsrik eiendom med kort gangavstand til Son torg.
Fra eiendommen er det fin utsikt mot Son sentrum og Sonskilen
Opprinnelig sentrumseiendom "Oxagrunnen" fra 1900. Revet og gjenoppbygget i 1987. Arkitekt tegnet bolig med god og innholdsrik planløsning over 2 plan, samt kjeller og loft. Boligen fremstår som godt vedlikeholdt. Pent opparbeidet tomt med flere gode uteplasser.
Anneks/atelier opprinnelig fra ca. 1800, totalrenovert i 2002.
Inneholder Atelier/kjøkken, bad og 3 bodrom.
Garasje med elbil-lader, oppført i 1996.
Eiendommen ligger høyt og fritt og meget sentralt i Son med gange avstand til det meste. Son er et trivelig lokalsamfunn med hilseplikt , og her får du både et idyllisk maritimt miljø med historiske bygninger og et moderne samfunn.
Beskrivelse
Denne benyttes til prosjektenhet
Innhold
Opprinnelig sentrumseiendom "Oxagrunnen" fra 1900. Revet og gjenoppbygget i 1987. Tegnet av siv. arkitekt MNAL Asbjørn Ystad.
God og innholdsrik planløsning over 2 plan samt kjeller og
loft.
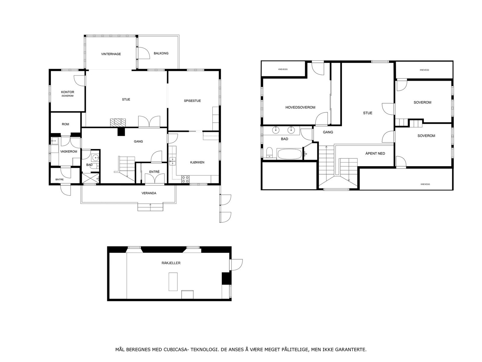
Kjeller: Bod.
1.etasje: Entré, hall m/trapp, bientré, kjøkken, kjølerom, stue, spisestue, bad, vaskerom og soverom.
2.etasje: Bad, stue og 3 soverom der det ene soverommet har stor garderobe løsning. Knevegger for lagring.
Anneks/atelier opprinnelig fra ca. 1800, totalrenovert i 2002.
Inneholder Atelier/kjøkken, bad og 3 bodrom. Utsikt til Sonskilen.
Det foreligger antatt ikke originale tegninger av aktuelt bygg.
Garasje oppført i 1996 med el-bil lader. Elektrisk port.
Standard
Eneboligen har en god og innholdsrik planløsning med normalt god standard. Håndverkmessig meget godt utført med mange detaljer. Boligen fremstår som godt vedlikeholdt
På gulv er det overflater av bredt massivt furugulv (ubehandlet) og fliser. Varmekabler i hall m/trapp, entré, på kjøkken, vaskerom, bientre og begge bad.
Veggoverflater av malt panel, fliser, trepanel og mønstret tapet.
I tak er det trepanel og malt panel.
Lukket trapp i tre mellom etasjene.
Kjøkken har malt heltre innredning fra 1987 med takhøye skap fra Son snekkerverksted med antikke marmor benkeplater. Integrert kjøleskap, underbygget oppvaskmaskin og frittstående komfyr.
Bad i 1. etasje fra 1987. Rommet har servant, gulvfestet toalett og dusjnisje.
Bad i 2. etasje opprinnelig fra 1987, innredning og fliser fra 2000. Rommet har innredning med to nedfelte servanter, veggfestet toalett, dusjnisje og innebygget badekar.
Vaskerom fra 1987. Rommet har utslagsvask og opplegg for vaskemaskin.
Fra vaskerom er det adkomst til kjølerom. Nytt kjøleroms aggregat fra 2021.
I spisestue er det plassbygget stort skap fra Son snekkerverksted.
Teknisk:
Sentralstøvsuger. (Ikke benyttet av nåværende eier)
Vannrør av kobber, flexislange og plastbelagt kobber.
Avløpsrør av plast.
Varmtvannsbereder på 200 liter fra ca. 2021.
Sikringsskap med automatsikringer.
Oppvarming
Kakkelovn fra Fredrikstad kakkelovnsmakeri i stue i 1. etasje.
Varmekabler i hall m/trapp, entré, på kjøkken, vaskerom, bientre og begge bad. Forøvrig elektrisk oppvarming.
Varme i gulv i atelier.
Beskaffenhet
Tomten ligger høyt i terrenget og har meget gode sol og lysforhold. Tomten er noe skrånende og opparbeidet med
blomsterbed og diverse beplantning, steinmurer, prydbusker, frukttrær m.m. Eiendommen har asfaltert innkjøring og tomten er inngjerdet. Det er lagt varmekabler i grunnen i oppkjørsel og foran garasje.
Beliggenhet
Eiendommen ligger høyt og fritt og meget sentralt i Son med gange avstand til det meste. Son er et trivelig lokalsamfunn med hilseplikt , og her får du både et idyllisk maritimt miljø med historiske bygninger og et moderne samfunn.
Son ligger ved sjøen og er et populært sted både blant fastboende og turister. Det er kort vei til fine offentlige badeplasser. I sentrum er det et godt utvalg av servicetilbud som matbutikk, fiskebutikk, bakeri, vinmonopol, apotek, lege, tannlege, fysioterapeut og bibliotek. I tillegg kan stedet by på flere restauranter, kafeer, gallerier og et levende kystmuseum. Like utenfor Son sentrum er det en 9-hulls golfbane og Son Spa Hotell med treningssenter og restaurant.
Son kan tilby barnehager, barne- og ungdomsskole, flere idrettshaller, og slalåmbakke. Det er et variert fritidstilbud i nærområdet som håndball, fotball, seiling, tennis, sykling, og ridning. Det er kort vei til mange fine turområder, både i skogen og langs sjøen.
I mai 2023 åpnet Vestby Kommune Solhøy Omsorgsboliger i Son.
Fra eiendommen er det med bil 40 minutter til Oslo, og 10 minutter til Vestby sentrum og Moss. Tog fra Sonsveien stasjon til Oslo S tar 30 minutter. For pendlere er det bilparkering på togstasjonen. Det går busser fra Son som er tilpasset togtidene. Det er 3 minutters gange fra eiendommen til nærmeste bussholdeplass.
Adkomst
Se kartreferanse på finn.no. Det vil bli skiltet ved visning.
Parkeringsforhold
I garasje med el-bil lader og på egen gårdsplass. Plass til 2 biler også foran egen garasje.
Radon
Strålevernforskriften stiller krav til at årsmiddelverdien av radon i oppholdsrom i utleid bolig må være under 200 becquerel per m3.
Dette er viktig å merke seg dersom man kjøper bolig som helt eller delvis skal leies ut.
For ytterligere informasjon om radon, se www.nrpa.no/radon.
Regulering
Eiendommen ligger iht reguleringsplan for Son, Indre område til formål: Frittliggende småhusbebyggelse, bevaringsområde, høyspenningsanlegg, kjørevei og felles avkjørsel.
Eiendommen ligger iht. kommuneplan 2019-2030 til boligbebyggelse, nåværende og bevaring kulturmiljø.
Eiendommen ligger innenfor bevaringsområde for kulturminne.
Bevaringsområde for kulturmiljø i Son.
Det er boplikt, eiendommen ligger innenfor bopliktsområdet i Son.
Ferdigattest
Det foreligger ferdigattest for enebolig datert, 10.06.2008. Dokumentet er vedlagt i salgsoppgaven.
Beskrivelse (type bolig)
Enebolig.
Bygningsinformasjon / byggemåte
Byggegrunn av fjell. Grunnmur av granitt og Leca. Etasjeskillere av tre. Yttervegger i bindingsverk med stående kledning. Saltakkonstruksjon tekket med glasert teglstein. Undertak av rupanel. Takrenner og nedløp av kobber. Snøfangere er montert. Doble vinduer og verandadør i tre. Ytterdører i tre. Snøfangere og takstige montert i nyere tid.
Nyere markiser på tre av fire vegger.
Eiendommen er utrustet med dekorbelysning, blendfritt og med led.
Areal / Arealspesifikasjon / Arealbetegnelse
P-rom per etasje: Kjeller: 0 kvm.
1.etasje: 116 kvm.
2.etasje: 84 kvm.
Bruksareal per etasje: Kjeller: 24 kvm.
1.etasje: 119 kvm.
2.etasje: 84 kvm.
Inngår i p-romsareal: 1.etasje: Entré, hall m/trapp, bientré, kjøkken, stue, spisestue, bad, vaskerom og soverom.
2.etasje: Bad, stue og 3 soverom.
Diverse
Følgende utstyr tilhører boligen: Hvitevarer utover integrerte medfølger ikke.
Da boligen ble bygget opp igjen i 1987 ble det laget nye tegninger på huset som stemmer med dagens bruk. Det er alltid
bruken av et rom som avgjør rommets betegnelse. Det understrekes at alle forhold knyttet til bruk, lovlighet, tilbygg m.m må undersøkes hos PBE i Vestby kommune.
Det er på eiendommen oppført en hagestue, selger har sendt inn melding om oppført bygg til kommunen. Kommunen har bedt om ytterligere redegjørelse, dette er ikke fulgt opp. Se vedlagte dokument fra Vestby kommune, datert 02.03.2021 som er vedlagt i salgsoppgaven.
Det er en sprekk i lite vindu i 2 etasje/soverom. Det er en sprukket flis i entre.
Hvitevarer / tilbehør
Med mindre selger eller kjøper tar forbehold om annet, gjelder Liste over løsøre og tilbehør som skal følge med eiendommen ved salg. Hvitevarer på kjøkken medfølger.
Listen er utarbeidet av Norges Eiendomsmeglerforbund, Eiendom Norge og Eiendomsadvokatenes Servicekontor i fellesskap.
Faste løpende utgifter
Kommunale avgifter
Kommunale avgifter pr. år kr 12 145,-
Årstall 2022
Varierer etter forbruk. I tillegg kommer renovasjon til Movar kr. 4341,- pr. år.
Vei, vann og avløp
Det er innstallert vannmåler.
Offentlig vei. Eiendommen er tilknyttet offentlig vann- og avløpsnett via private stikkledninger.
Ligningsverdi (formuesverdi)
Primær formuesverdi kr 1 894 182,-
Sekundær formuesverdi kr 6 819 055,-
Formuesverdi årstall 2021
Formuesverdien fastsettes med utgangspunkt i en kvadratmeterpris, som beregnes av Statistisk sentralbyrå (SSB). Kvadratmeterprisen skal gi uttrykk for en estimert markedsverdi per kvadratmeter, og bygger på statistiske opplysninger om omsatte boliger (boligtype, areal, geografisk beliggenhet og alder).
Skatteetaten fastsetter årlige kvadratmetersatser basert på kvadratmeterprisene til SSB. Satsene utgjør hhv. 25 % av kvadratmeterprisen for primærboliger (der boligeier er folkeregistrert pr. 1. januar) og 90 % for sekundærboliger (øvrige boliger).
Boligselgerforsikring
Selger har tegnet boligselgerforsikring i Gjensidige som dekker selgers mangels ansvar etter avhendingsloven. Forsikringen gjelder fra budaksept. Er det mer enn 12 måneder til overtakelse, så gjelder forsikringen først fra overtakelse. Dersom det ikke blir avtalt overtakelsesdato samtidig med budaksept, så gjelder forsikringen først fra overtakelsen.
Forsikringen dekker ansvar begrenset til eiendommens salgssum, dog oppad begrenset til kr. 10 000 000,-. Forsikringen løper i perioden kjøper kan reklamere, dog maksimalt 5 år fra overtakelse av eiendommen. Det kan tegnes boligselgerforsikring på kombinasjonseiendommer, men forsikringen dekker kun boligdelen. Kjøper har plikt til å sette seg inn i fullstendige vilkår for boligselgerforsikring som kan hentes på https://www.gjensidige.no/privat/forsikring/bolig-og-innbo/boligselgerforsikring.
Av vilkårene fremgår unntak i forsikringsdekningen, f. eks. ved nye forhold som inntreffer mellom aksept og overtakelse. Garantier/lovnader der selger har påtatt seg ansvar for egenskaper ved eiendommen eller dokumentasjon av slike, dekkes ikke. I noen tilfeller er det heller ikke dekning der selger har opptrådt forsettlig eller grovt uaktsomt. Forsikringen omfatter heller ikke en redusert boligverdi som skyldes skadedyr/insekter, f. eks. skjeggkre/perlekre/sølvkre, veggdyr, pelsbiller, maur, borebiller og tilsvarende. Iht. lov og rettspraksis må det reklameres "innen rimelig tid". Det anbefales å reklamere umiddelbart/snarest mulig og senest innen 2 mnd. fra forholdet ble/burde vært oppdaget. Dersom kjøper utbedrer mangelskrav på egen hånd, kan dette medføre at reklamasjonsretten tapes.
Eiendomsmeglingsforetaket vil kunne motta kundeutbytte jf. Gjensidige Stiftelsens utbyttemodell for distribusjon og salg av boligselgerforsikring.
Boligkjøperforsikring
Vedlagt i salgsoppgaven følger informasjon om Boligkjøperforsikring Pluss og Boligkjøperforsikring fra HELP Forsikring AS. Boligkjøperforsikring er en rettshjelpsforsikring som gir trygghet og profesjonell juridisk hjelp dersom det oppdages uventede feil eller mangler ved boligen de neste fem årene. Boligkjøperforsikring Pluss har samme dekning som boligkjøperforsikring samt fullverdig advokathjelp på viktige rettsområder i privatlivet. Les mer om begge forsikringene i vedlagte materiell eller på help.no. Meglerforetaket mottar mellom kr. 2 800,- til kr. 4 500,- pr. tegnet forsikring, samt et tillegg på kr. 1 000,- ved salg av Pluss.
Overtakelse
Etter nærmere avtale med selger.
Viktig informasjon
NB! Kjøpesummen skal betales inn fra kjøpers konto i en norsk finansinstitusjon.
Tinglyste heftelser
Følgende heftelser vil følge eiendommen og kopi kan fås av megler. Kjøpers bank får prioritet etter disse heftelsene:
Elektriske Kraftlinjer - Tinglyst dato 12.06.61
Bestemmelse om trafostasjon/kiosk
GJELDER DENNE REGISTERENHETEN MED FLERE
Erklæring/Avtale - Tinglyst dato 15.04.83
Byggeforbud på nærmere angitt avstand
Kan ikke slettes uten samtykke fra kommunen
Salgsoppgaven beskriver vesentlig og lovpålagt informasjon om eiendommen
Se komplett salgsoppgaveNyttige lenker
Nærområdet
ASK Foss Vestby/Son
Prisstatistikk
Storgata 1 B
på annonsen
prisantydning per kvadratmeter
Prisfordeling
Pris per m² ligger 19 500 kr over snittet for eneboliger i Vestby.
Grafen viser antall eneboliger solgt i Vestby siste året fordelt på pris per m² - totalt 158 eneboliger
Antall boliger
Kvadratmeterpris tilsvarer prisantydning pluss fellesgjeld per kvadratmeter (p-rom eller BRA-i). Prisene i grafen er avrundet til nærmeste 1000 kr.
Annonsene kan være mangelfulle i forhold til lovpålagt opplysningsplikt. Før bindende avtale inngås oppfordres interessenter til å innhente komplett informasjon fra meglerforetaket, selger eller utleier.
































































