Bildegalleri

Illustrasjonsbilde
Attraktiv vestvendt tomt på 721 kvm med godkjent rammetillatelse for enebolig. Solrik beliggenhet med sen kveldssol.
- Totalpris
- 3 588 842 kr
- Omkostninger
- 88 842 kr
Nøkkelinfo
Visning
Om eiendommen
Beskrivelse
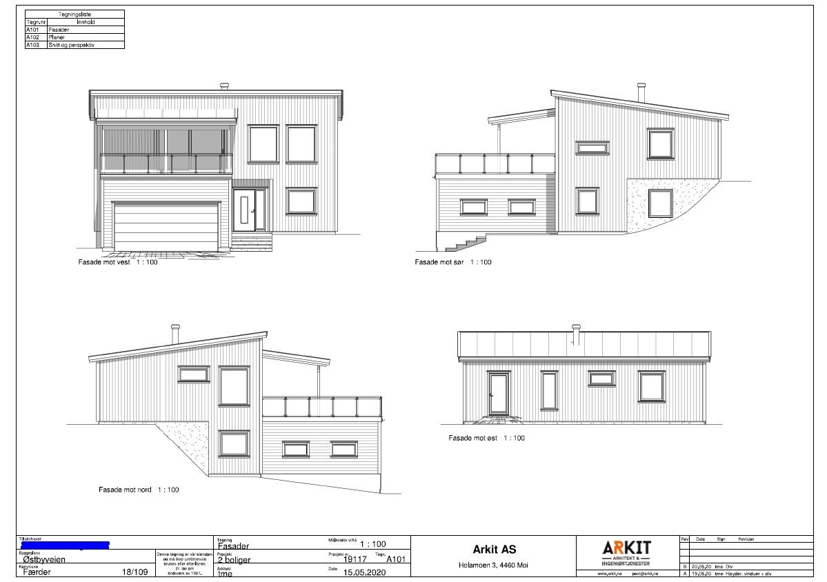
Østbyveien 32B er den nordre av to byggeklare tomter med en fantastisk beliggenhet på Føynland, i nærheten av Fjærholmen.
Fra eiendommen er det kort vei til Føynlandskogen med fine turstier, samt til populære Fjærholmen. Sistnevnte er Nøtterøys største badeplass med langrunn sandstrand, samt gresslette med lekeapparater. Det er gangavstand (ca. 11 minutter) til Føynland barneskole hvor det også er barnehage.
Rammetillatelse til oppføring av enebolig på 174 kvm BRA fordelt på to plan foreligger. Det foreligger veiledende tegninger som interessenter kan få oversendt, men det er ikke byggeklausul på tomten.
Offentlig vann og avløp er lagt frem til tomtene og vei er etablert.
Beliggenhet
Området er svært populært og har nærhet til skoler (Føynland barneskole), barnehager, offentlig kommunikasjon, samt et rikt utvalg av fasiliteter og servicetilbud.
Fra eiendommen er det kort vei til Føynlandskogen med fine turstier, samt til populære Fjærholmen. Sistnevnte er Nøtterøys største badeplass med langrunn sandstrand, samt gresslette med lekeapparater. I nærområdet finner du også Nøtterøy golfbane på Borgheim, som er kjent som en av Norges beste golfanlegg. Det er også kort vei med båt til de mange øyene i skjærgården. Nøtterøy har vakker skjærgård, med en fin kyststi som gir god rekreasjon hele året.
Eiendommen har kort gangavstand (ca. 11 minutter) til Føynland barneskole hvor det også er barnehage. For elever i ungdomstrinnene er det skolebussordning til Teigar Ungdomsskole og Borgheim Ungdomsskole. Det finnes flere videregående skoler i nærliggende områder, samt et godt utvalg av både private og kommunale barnehage. Ved ungdomsskolen Teigar ligger Nøtterøyhallen, og et flott utendørs idrettsanlegg med en rekke fotballbaner og friidrettsbane. Det finnes en rekke idrettsforeninger, samt seilforening både på Føynland og i Tønsberg.
Husøy ligger i gangavstand fra tomten. Ved Borge hotell på Husøy finnes en mindre 9 hulls golfbane. På Borge Hotell er det flere arrangementer året rundt og inneværende år byr blant annet hagekonserter, quizaftener, lunch-/middagsbuffeter og høytidsfeiringer. På Husøy finner man også Husøy Arena med kunstgressbane og sandvolleyballbanen, samt kort vei til lekeplasser, skøytebane, småbåthavn og et godt mangfold av friluftsområder. Husøy Arena Gym er nylig åpnet og tilbyr innendørs treningssenter i regi av Husøy & Foynland IF.
Dagligvarehandelen kan gjøres på blant annet Spar, som ligger kort vei fra eiendommen ved Føynlandsenteret. Det er kort kjørevei til Teie Torv med et rikt og variert utvalg av forretninger. Coop Extra finnes på vei mot Teie, ca. 5 minutter unna bil. Det er kort kjørevei til Teie Torv med blant annet vinmonopol og en rekke forretninger. Tønsberg by nås med bil på ca. 10 minutter med alt av bymessige fasiliteter og servicetilbud.
Fra Tønsberg togstasjon er det hyppige avganger til Oslo, noe som er utmerket for pendlere. Reisetiden til Oslo S med tog er ca. 1 time og 20 min. Ved å benytte bil tar det ca. 10 min til Tønsberg og ca. 30 min til Sandefjord lufthavn. Til Oslo er det en drøy time å kjøre med bil.
Lovanvendelse
Generelle bestemmelser
Salgsoppgaven er basert på de opplysningene selger har gitt til megler, den bygningssakyndiges tilstandsrapport, samt opplysninger innhentet fra kommunen, Kartverket og andre tilgjengelige kilder. Det er viktig at kjøper setter seg grundig inn i alle salgsdokumentene, herunder salgsoppgave, tilstandsrapport og selgers egenerklæring. Kjøper anses kjent med forhold som er tydelig beskrevet i salgsdokumentene, og slike forhold kan ikke påberopes som mangler. Dette gjelder uavhengig av om kjøper har lest dokumentene. Alle interessenter oppfordres til å undersøke eiendommen nøye, gjerne sammen med fagkyndig før bud inngis. Kjøper som velger å kjøpe usett kan ikke gjøre gjeldende som mangel noe han burde blitt kjent med ved undersøkelsen.
Dersom det er behov for avklaringer, anbefaler vi at interessenter rådfører seg med eiendomsmegler eller egne rådgivere før det legges inn bud.
Kjøper og selgers rettigheter og plikter reguleres av avtalen mellom partene, samt informasjonen som har vært tilgjengelig for kjøperen i forbindelse med handelen. Avtalen utfylles av avhendingsloven, og det gjelder ulike avtalevilkår avhengig av om kjøper er forbrukerkjøper eller ikke. Dette er nærmere beskrevet nedenfor.
På grunn av ulike avtalevilkår kan selger vurdere bud fra en som ikke er forbruker, ulikt fra en forbrukers bud. Dersom kjøper ikke er forbruker, er selger sitt mulige mangelsansvar begrenset fordi eiendommen selges "som den er". Selger kan ikke ta som den er forbehold ovenfor en forbrukerkjøper. Selv et lavere bud fra en som ikke er forbruker kan foretrekkes fordi begrensningen i mulig mangelsansvar kan ha egenverdi for selger. Selger står fritt til å forkaste eller akseptere ethvert bud, og er for eksempel ikke forpliktet til å akseptere høyeste bud.
Budgiver skal i budskjema avgi egenerklæring om budgiver er forbruker eller næringsdrivende/ person som hovedsakelig handler som ledd i næringsvirksomhet. Budgivere får informasjon dersom andre bud er inngitt av en som ikke er forbruker.
Forbrukerkjøp - definisjon
Med forbrukerkjøp menes kjøp av eiendom når kjøperen er en fysisk person som ikke hovedsakelig handler som ledd i næringsvirksomhet.
Forbruker avtalevilkår
Eiendommen har en mangel dersom den ikke er i samsvar med kravene som følger av avtalen, eller det foreligger brudd på bestemmelsene i avhendingsloven §§ 3-2 til 3-8. Hvis eiendommen ikke er i samsvar med det kjøperen må kunne forvente ut ifra alder, type og synlig tilstand, kan det være grunnlag for mangelskrav. Det samme gjelder hvis det er holdt tilbake eller gitt uriktige opplysninger om eiendommen. Dette gjelder likevel bare dersom man kan gå ut ifra at det virket inn på avtalen at opplysningen ikke ble gitt eller at uriktige opplysninger ikke blir rettet i tide på en tydelig måte.
Dersom eiendommen har et mindre grunnareal (tomt) enn kjøperen har regnet med, er det likevel ikke en mangel hvis ikke arealet er vesentlig mindre enn det som fremkommer av salgsdokumentene, jf. avhl-3-3.
Ved beregning av et eventuelt prisavslag eller erstatning må kjøper selv dekke tap/kostnader opptil et beløp på kr 10 000 (egenandel).
Ikke-forbruker (næringsdrivende) definisjon
Hvis kjøper er en juridisk person, eller en fysisk person som hovedsakelig handler som ledd i næringsvirksomhet, vil kjøpet ikke anses som et forbrukerkjøp.
Ikke-forbruker avtalevilkår
Eiendommen har en mangel dersom den ikke er i samsvar med kravene som følger av avtalen. Eiendommen selges som den er , og selgers ansvar utover det konkret avtalte er da begrenset etter avhendingsloven § 3-9, første ledd andre setning.
Informasjon om kjøpers undersøkelsesplikt, herunder oppfordringen om å undersøke eiendommen nøye, gjelder også for kjøpere som ikke anses som forbrukere.
Adkomst
For veibeskrivelse henvises det til vedlagte kart i salgsoppgaven.
Det vil bli skiltet med visningsskilt fra DNB Eiendom under annonserte visninger.
Budgivning
Bud kan legges inn på nettannonsen via "gi bud"- lenken. Ved elektronisk budgivning kan bud legges inn trygt og enkelt med Bank-ID. Megler kan også kontaktes for tilsendelse av budskjema. Budskjema finnes også i salgsoppgaven.
All budgivning må foregå skriftlig. Kontakt megler dersom det er behov for bistand for å gi bud.
Tomt
Tomten er skrånende og det er tenkt at nybygget skal kunne gli godt inn i terrenget på en slik måte at hovedetasjen med tilhørende terrasse får en fin og langstrakt utsikt. Grunnarbeider må påregnes.
Det er ikke foretatt grunnundersøkelser på tomten av selger. Eiendommen er ikke inntegnet som undersøkt i Den nasjonale databasen for grunnundersøkelser, NADAG.
Diverse
Det blir tilført fibernett til tomtene fra syd (Telenor).
Omkostninger
Mange kjøpere har anledning til å tegne boligkjøperforsikring. Vedlagt i salgsoppgaven følger informasjon om Boligkjøperforsikring fra HELP Forsikring AS. Boligkjøperforsikring er en rettshjelpsforsikring som gir trygghet og profesjonell juridisk hjelp dersom det oppdages uventede feil eller mangler ved boligen de neste fem årene. Les mer om Boligkjøperforsikring i vedlagte materiell eller på help.no. Det gjøres oppmerksom på at meglerforetaket mottar kr 3 700,- / 5 200,- / 6 500,- i kostnadsgodtgjørelse for Boligkjøperforsikring (avhengig av boligtype).
Ansvarlig megler
André Norrøne Volla
Regulering
Nyttige lenker
Nærområdet
Annonseinformasjon
| FINN-kode | 302522646 |
|---|---|
| Sist endret | 21. nov. 2023 14:11 |
| Referanse | 606230168 |
Annonsene kan være mangelfulle i forhold til lovpålagt opplysningsplikt. Før bindende avtale inngås oppfordres interessenter til å innhente komplett informasjon fra meglerforetaket, selger eller utleier.














