Bildegalleri

Vi har gleden av å presentere en helt spesiell villa på Jongskollen. Villaen har original utforming med funksjonell planløsning og estetiske detaljer fra byggetid. Velkommen til visning!
Spennende arkitekttegnet funkisbolig - stor skjermet tomt - 4 soverom - 2 bad - 2 stuer - frittliggende garasje
Nøkkelinfo
- Boligtype
- Enebolig
- Eieform
- Eier (Selveier)
- Soverom
- 4
- Primærrom
- 166 m²
- Bruksareal
- 177 m²
- Byggeår
- 1962
- Energimerking
- G - Oransje
- Rom
- 6
- Tomteareal
- 1 978 m² (eiet)
Fasiliteter
Om boligen
- Jongskollen 33 er en spennende funkisbolig signert arkitekt Nøstvik & Holter. Villaen ligger tilbaketrukket og usjenert på en kolle i en "skog". En stor, variert og kupert tomt som er opparbeidet i flere nivåer. Her er det hyggelige uteplasser, trapper, gangveier, gressplen, naturtomt og trær.
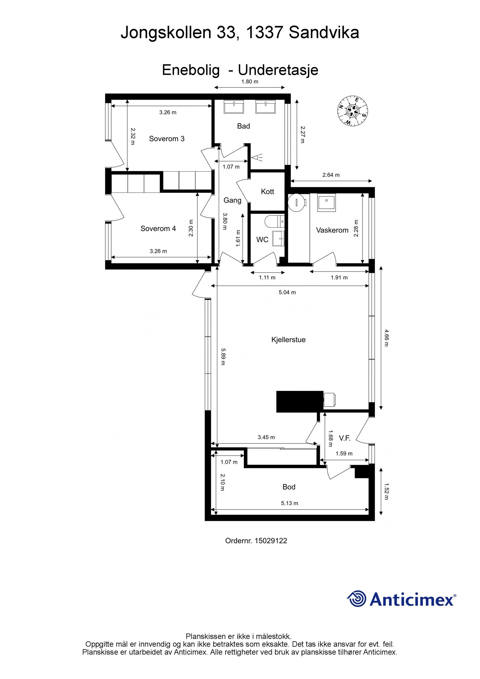
- Boligen er oppført over 2 plan. Villaen har original utforming med funksjonell planløsning og estetiske detaljer fra byggetid. I underetasjen møter du skogen gjennom store vindusflater. Fra kjøkkenet og frokostbalkongen har du fjordutsikt. En unik mulighet for deg som ønsker å løfte denne flotte funkisen opp til tidsriktig standard.
- En innholdsrik bolig med bl.a. 2 stuer, kjøkken, 4 soverom, 2 bad, vaskerom mm. Flere utganger til hagen. Frittstående dobbelgarasje på 42 kvm m/innredet loft.
Velkommen!
Salgsoppgaven beskriver vesentlig og lovpålagt informasjon om eiendommen
Se komplett salgsoppgaveNærområdet
EIE eiendomsmegling Bærum

Kjetil Borgersrud
Daglig leder / Eiendomsmegler MNEF / Fagansvarlig
Prisstatistikk
Jongskollen 33
på annonsen
prisantydning per kvadratmeter
Prisfordeling
Pris per m² ligger 15 313 kr over snittet for eneboliger i Bærum.
Grafen viser antall eneboliger solgt i Bærum siste året fordelt på pris per m² - totalt 448 eneboliger
Antall boliger
Kvadratmeterpris tilsvarer prisantydning pluss fellesgjeld per kvadratmeter (p-rom eller BRA-i). Prisene i grafen er avrundet til nærmeste 1000 kr.
Annonsene kan være mangelfulle i forhold til lovpålagt opplysningsplikt. Før bindende avtale inngås oppfordres interessenter til å innhente komplett informasjon fra meglerforetaket, selger eller utleier.






























































