Bildegalleri
3 Ute01
BYHAVEN TIMBER NORD - Siste salgstrinn!
BYHAVEN Timber Nord
Prosjektets status
Planlegging
-
Salgsstart
-
Byggestart
-
Overtakelse
-
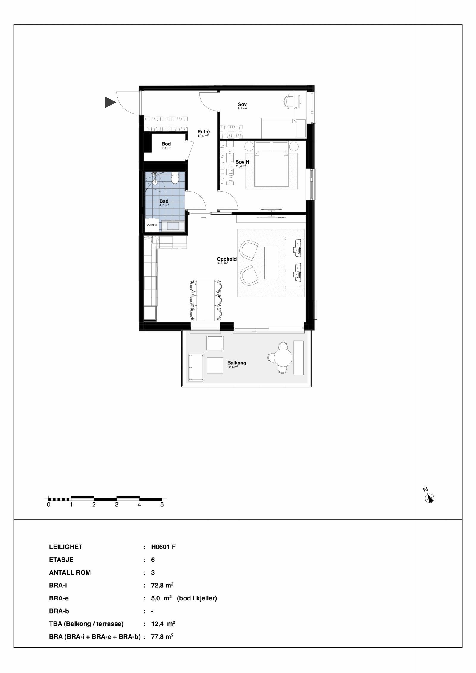
Nøkkelinfo
- Boligtype
- Leilighet
- Etasje
- 6
- Soverom
- 2
- Rom
- 3
- Internt bruksareal
- 72 m² (BRA-i)
- Bruksareal
- 77 m²
- Eksternt bruksareal
- 5 m² (BRA-e)
- Balkong/Terrasse
- 12 m² (TBA)
Visning
Beskrivelse
Oppdragsansvarlig
Presisjon Eiendomsmegling AS / Martin Spinnvåg
Selger/Utbygger
Bjølstad Utvikling AS
Betegnelse
Andelsnr. 25 Orgnr. 933690253 i Fredrikstad kommune
BYHAVEN I FREDRIKSTAD - EN SALGSSUKSESS
Med over 180 solgte leiligheter, kan Byhaven i Fredrikstad kalles en salgssuksess!
De flotte leilighetene begynner å ta form og nå er det mulig med byggeplassvisning hvor du kan se ulike leilighetstyper. Mellom Timber Nord og Timber Syd kommer en felles takhage, som fungerer som et bindeledd mellom de to leilighetsbyggene.
Les om prosjektet og de ulike byggene ved å klikke på Prosjektets hjemmeside, eller se www.boibyhaven.no
Velkommen til visning!
BYHAVEN - TIMBER TRINN 3
Byhaven er for deg som ønsker å bo urbant og meget sentralt i Fredrikstads nye bydel. Her har du gode muligheter til å leve et aktivt og komfortabelt liv.
I Byhaven får du en helt ny og lettstelt bolig i hjertet av Fredrikstads nye bydel - Værste. Her får du livskvalitet med det beste av to verdener - en stor felles takhage og nærhet til naturen, samtidig som du bor urbant og meget sentralt med «alt» innen gangavstand.
Byhaven ligger sentralt på Værste, bare et steinkast unna gangbroa over til Stortorvet. Her vil det bygges en variert miks av boliger som er tilpasset forskjellige livssituasjoner. Blant de 250 boligene finner du alt fra mindre 2-roms og større 4-roms leiligheter til flotte townhouses.
Timber har et skandinavisk og industrielt preg hvor lyse, levende trefasader kombineres med sorte utvendige metallkonstruksjoner. Med tre og metall er det tydelige referanser til både Plankebyen og verftsvirksomheten på Værste.
Timber Nord består av 30 andelsleiligheter fordelt over 13 toroms, 12 treroms og 5 fireroms med størrelse fra 42 kvm til 161 kvm BRA. I 7.etasje vil det komme en flott penthouseleilighet med stor terrasse mot vest.
I Timber Syd finner du 26 andelsleiligheter fordelt over 12 toroms, 10 treroms og 4 fireroms med størrelse fra 38 kvm til 161 kvm BRA. I 6.etasje vil det komme en flott penthouseleilighet med stor terrasse mot vest.
FREDRIKSTADS NYE HANDELS- OG MATDESTINASJON!
Værstetorvet har ambisjoner om å ta handelen tilbake til byen og sammen med eksisterende sentrum utgjøre en opplevelses- og handelsdestinasjon i Østfold.
Handlesenteret Værstetorvet er ca. 30.000m2 stort med tillegg av handel ute på torvet og vil romme om lag 65-70 butikker og serveringssteder, i tillegg til ca. 600 p-plasser til handel.
I Værstetorvet ligger også Matværste - Fredrikstads egen mathall fylt med street food boder og utsalg av ulike råvarer og delikatesser. Alle som er glad i god mat og ulike smaker vil finne et bredt utvalg med kvalitetsprodukter og retter på Matværste.
Blant signerte aktører er Manstad Kjøtt & Delikatesser, Gla'Laksen med ferske råvarer og delikatessebutikken Smakslykke. Ta heisen ned til det nye matmarkedet i byen!
Arealer og fordeling pr. etasje
Primærrom: 70,10 kvm, Bruksareal: 77,80 kvm, BRA-i: 72,80 kvm , BRA-e: 5 kvm , TBA: 12,40 kvm
Parkering / Garasje
Se prisliste og salgsoppgave for betingelser ang. kjøp av p-plass i Timber.
Tinglyste rettigheter og forpliktelser
Kommunen har legalpant som sikkerhet for betaling av kommunale avgifter. Legalpant er pant som følger av loven, og som ikke tinglyses. Legalpant følger derfor eiendommen ved salg. På eiendommen kan det være tinglyst erklæringer som f eks rett for kommunen til å vedlikeholde rørsystemer for vann- og kloakk. Disse erklæringene vil følge eiendommen ved salg. Kontakt megler for nærmere informasjon.
Servitutter / rettigheter
Eiendommen overdras fri for pengeheftelser, med unntak av eventuelle erklæringer, avtaler, servitutter og panteheftelser som fremgår av salgsoppgaven og skal følge med eiendommen ved salg. Kjøpers bank vil få prioritet etter disse.
Borettslag
Det er borettslaget som eier eiendommen, mens andelseierne eier andeler i borettslaget. Andel i borettslag gir andelseier borett til og råderett over en nærmere bestemt bolig. Andelseierne har ikke personlig ansvar for borettslagets gjeld, men borettslagets løpende utgifter må dekkes av andelseierne gjennom månedlige fellesutgifter (husleie).
Interessenter oppfordres til å sette seg inn i borettslagets vedtekter, husordensregler, regnskap, budsjett, årsberetning, vedtak fra årsmøte/generalforsamling m.m. Se særlig om vedtekter og husordensregler knyttet til husdyrhold, dugnader, trappevask o.l.
Verdi ved skattefastsetting
Verdien ved skattefastsetting er p.t. ikke fastsatt. Verdien ved skattefastsetting fastsettes av Ligningskontoret etter beregningsmodell som tar hensyn til om boligen er en såkalt "primærbolig" (der boligeieren er folkeregistrert bosatt) eller "sekundærbolig" (alle boliger man eier, men ikke bor fast i). Interessenter oppfordres til å sjekke www.skatteetaten.no eller kontakte ansvarlig megler for nærmere informasjon om verdien ved skattefastsetting.
Andel fellesgjeld / formue
Kr 3 325 000,- / Kr ,- pr ifølge forretningsfører.
Andel fellesgjeld og evt. formue overtas av kjøper.
Andre faste løpende kostnader
Kr. 20 373,- pr. Mnd.
Finansiering
Kontakt megler for avklaring av finansielle forhold, herunder lån til kjøp av eiendom. Privatmegleren har avtale med Nordea om formidling av lån og andre finansielle tjenester. Privatmegleren mottar godtgjørelse for dette.
Konsesjon / Odel
Det er ikke krav til konsesjon ved erverv av eiendommen. Det hefter ikke odel på eiendommen.
Sikkerhetsstillelse
Alle eiendomsmeglingsforetak har lovpålagt forsikring av klientmidler begrenset oppad til kr 45 mill. Enkeltsaker er forsikret inntil kr 15 mill. Dersom kjøpers låneinstitusjon krever tilleggsforsikring ved omsetning over 15 millioner, må kjøper selv eller dennes låneinstitusjon dekke utgiftene forbundet med dette.
Lovanvendelse
Eiendommen selges etter reglene i avhendingsloven.
Eiendommen skal overleveres kjøper i tråd med det som er avtalt. Det er viktig at kjøper setter seg grundig inn i alle salgsdokumentene, herunder salgsoppgave, tilstandsrapport og selgers egenerklæring. Kjøper anses kjent med forhold som er tydelig beskrevet i salgsdokumentene. Forhold som er beskrevet i salgsdokumentene kan ikke påberopes som mangler. Dette gjelder uavhengig av om kjøper har lest dokumentene. Alle interessenter oppfordres til å undersøke eiendommen nøye, gjerne sammen med fagkyndig før bud inngis. Kjøper som velger å kjøpe usett kan ikke gjøre gjeldende som mangel noe han burde blitt kjent med ved undersøkelsen.
Dersom det er behov for avklaringer, anbefaler vi at kjøper rådfører seg med eiendomsmegler eller en bygningssakyndig før det legges inn bud.
Hvis eiendommen ikke er i samsvar med det kjøperen må kunne forvente ut ifra alder, type og synlig tilstand, kan det være en mangel. Det samme gjelder hvis det er holdt tilbake eller gitt uriktige opplysninger om eiendommen. Dette gjelder likevel bare dersom man kan gå ut i fra at det virket inn på avtalen at opplysningen ikke ble gitt eller at feil opplysninger ikke ble rettet i tide på en tydelig måte. Det kan avdekkes enkelte forhold etter overtakelse som nødvendiggjør utbedringer. Normal slitasje og skader som nødvendiggjør utbedring, er innenfor hva kjøper må forvente og vil ikke utgjøre en mangel.
Boligen kan ha en mangel dersom det er avvik mellom opplyst og faktisk areal, forutsatt at avviket er på 2% eller mer og minimum 1 kvm.
Ved beregning av et eventuelt prisavslag eller erstatning må kjøper selv dekke tap/kostnader opptil et beløp på kr 10 000 (egenandel).
Dersom kjøper ikke er forbruker selges eiendommen «som den er», og selgers ansvar er da begrenset jf. avhl. § 3-9, 1. ledd 2. pktm. Avhendingsloven § 3-3 (2) fravikes, og hvorvidt en innendørs arealsvikt karakteriseres som en mangel vurderes etter avhendingsloven § 3-8. Informasjon om kjøpers undersøkelsesplikt, herunder oppfordringen om å undersøke eiendommen nøye, gjelder også for kjøpere som ikke anses som forbrukere. Med forbrukerkjøp menes kjøp av eiendom når kjøperen er en fysisk person som ikke hovedsakelig handler som ledd i næringsvirksomhet.
Forsikring
Frem til overtagelse vil eiendommen være forsikret av selger. Etter overtagelse vil eiendommen forsikres gjennom sameiets fellesforsikring. Kjøper må selv besørge innboforsikring og forsikring av eventuelle særskilte påkostninger.
Budgiving
Boligene selges til fastpris.
Alle bud/kjøpetilbud på eiendommen skal være skriftlig og sendes meglerforetaket pr. fax, mail, sms eller via vår "gi bud"-knapp på våre nettsider. Knappen finner du også på Privatmeglerens hjemmeside for prosjektet, se på den enkelte bolig.
Bud/kjøpetilbud må ikke ha kortere akseptfrist enn til kl. 12.00 første virkedag etter siste annonserte visning. Lørdag regnes ikke som virkedag. Bud/kjøpetilbud med kortere frist enn dette kan ikke formidles av megler. Nærmere info om budgiving finner du på egen side sammen med kjøpetilbud/budskjema.
Som budgiver hos Privatmegleren kan du kreve budjournal fremlagt så snart handel er gjennomført.
Innhold i budjournal er lovregulert, og innebærer at budgivere må akseptere at opplysninger om budet kan bli fremlagt for selger, kjøper og øvrige budgivere. Budgiver som ikke blir kjøper, kan kreve kopi av anonymisert budjournal.
Lov om hvitvasking
Megler er underlagt lov om hvitvasking som innebærer plikt til å melde ifra til Økokrim om mistenkelige transaksjoner
Meglers vederlag og utlegg
Tilrettelegging 30 leiligheter TIMBER NORD byggetrinn 4 (Kr.150 000)
Totalt kr. (Kr.150 000)
Nyttige lenker
Nærområdet

PrivatMegleren Fredrikstad
Annonseinformasjon
| FINN-kode | 301951679 |
|---|---|
| Sist endret | 29. des. 2025 09:40 |
| Referanse | 108230115 |
Annonsene kan være mangelfulle i forhold til lovpålagt opplysningsplikt. Før bindende avtale inngås oppfordres interessenter til å innhente komplett informasjon fra meglerforetaket, selger eller utleier.
