Bildegalleri

Aukse Martinkute v/ EiendomsMegler1 har gleden av å presentere Osloveien 715!
Inaktiv
Ytre Enebakk
Innholdsrik enebolig med koselig vinterhage -Påbegynt spa - Stor herlig uteplass - 2 separate leiligheter(ikke godkjent)
Prisantydning6 900 000 kr
Nøkkelinfo
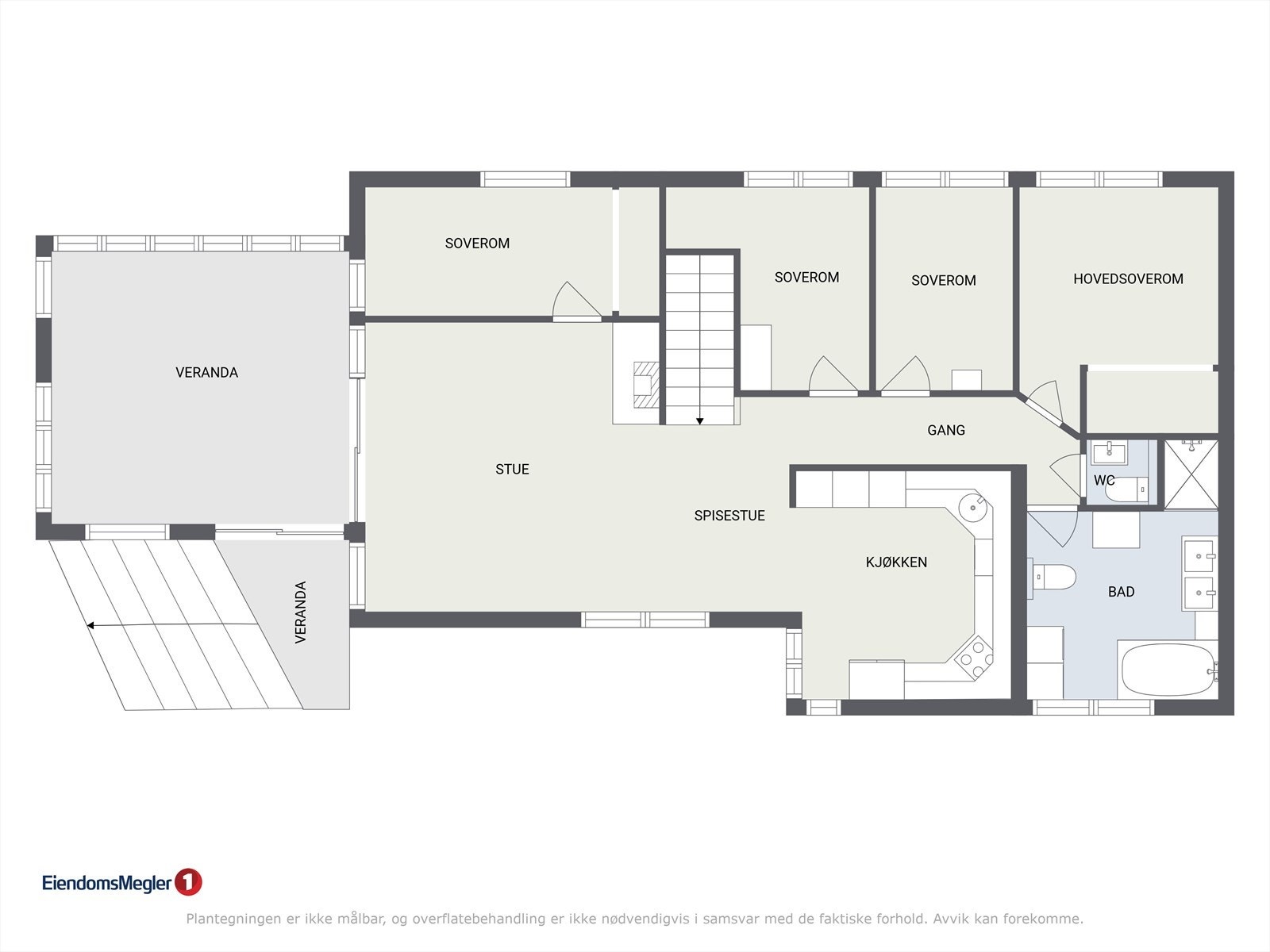
- Boligtype
- Enebolig
- Eieform
- Eier (Selveier)
- Soverom
- 6
- Primærrom
- 261 m²
- Bruksareal
- 272 m²
- Byggeår
- 1982
- Energimerking
- G - Rød
- Rom
- 10
- Tomteareal
- 1 373 m² (eiet)
Fasiliteter
Balkong/Terrasse
Barnevennlig
Hage
Kjæledyr tillatt
Offentlig vann/kloakk
Parkett
Peis/Ildsted
Rolig
Turterreng
Visning
Visning uten visningspåmelding vil ikke bli avholdt. Ta kontakt med megler eller meld deg på under visningspåmeling.
VisningspåmeldingOm boligen
EiendomsMegler 1 v/Aukse Martinkute har gleden av å presentere Osloveien 715!
En stor, innholdsrik enebolig over to plan med renoveringsbehov.
Boligen er innredet med to separate leiligheter med egne innganger, men disse er ikke søkt godkjente.
Eiendommen har en landlig og fin beliggenhet i rolig og populært boligområde i Ytre Enebakk med nærhet til Bindingsvann og Østmarka med gode rekreasjonsmuligheter sommer som vinter. Ca 6-8 km til barnehager, skoler og Vågsenteret. Det er få minutters gange til bussholdeplass med kommunikasjon til Ski, Oslo og Lillestrøm.
- Stor familiebolig som grenser til marka
- Stor terrasse m/god plass for utemøbler og grill
- Flott vinterhage
- Anneks med badstue og trimrom
En stor, innholdsrik enebolig over to plan med renoveringsbehov.
Boligen er innredet med to separate leiligheter med egne innganger, men disse er ikke søkt godkjente.
Eiendommen har en landlig og fin beliggenhet i rolig og populært boligområde i Ytre Enebakk med nærhet til Bindingsvann og Østmarka med gode rekreasjonsmuligheter sommer som vinter. Ca 6-8 km til barnehager, skoler og Vågsenteret. Det er få minutters gange til bussholdeplass med kommunikasjon til Ski, Oslo og Lillestrøm.
- Stor familiebolig som grenser til marka
- Stor terrasse m/god plass for utemøbler og grill
- Flott vinterhage
- Anneks med badstue og trimrom
NB: Knappen for å vise hele beskrivelsen har kun en visuell effekt.
NB: Knappen for å vise hele beskrivelsen har kun en visuell effekt.
Salgsoppgaven beskriver vesentlig og lovpålagt informasjon om eiendommen
Se komplett salgsoppgaveNyttige lenker
Nærområdet
EiendomsMegler 1 Lambertseter
Vi loser deg trygt gjennom hele boligsalget
Annonseinformasjon
| FINN-kode | 301656485 |
|---|---|
| Sist endret | 09. jan. 2024 08:45 |
| Referanse | 3290230015 |
Annonsene kan være mangelfulle i forhold til lovpålagt opplysningsplikt. Før bindende avtale inngås oppfordres interessenter til å innhente komplett informasjon fra meglerforetaket, selger eller utleier.

















































































