Bildegalleri

Funkishagen - unike og sentrumsnære leiligheter!
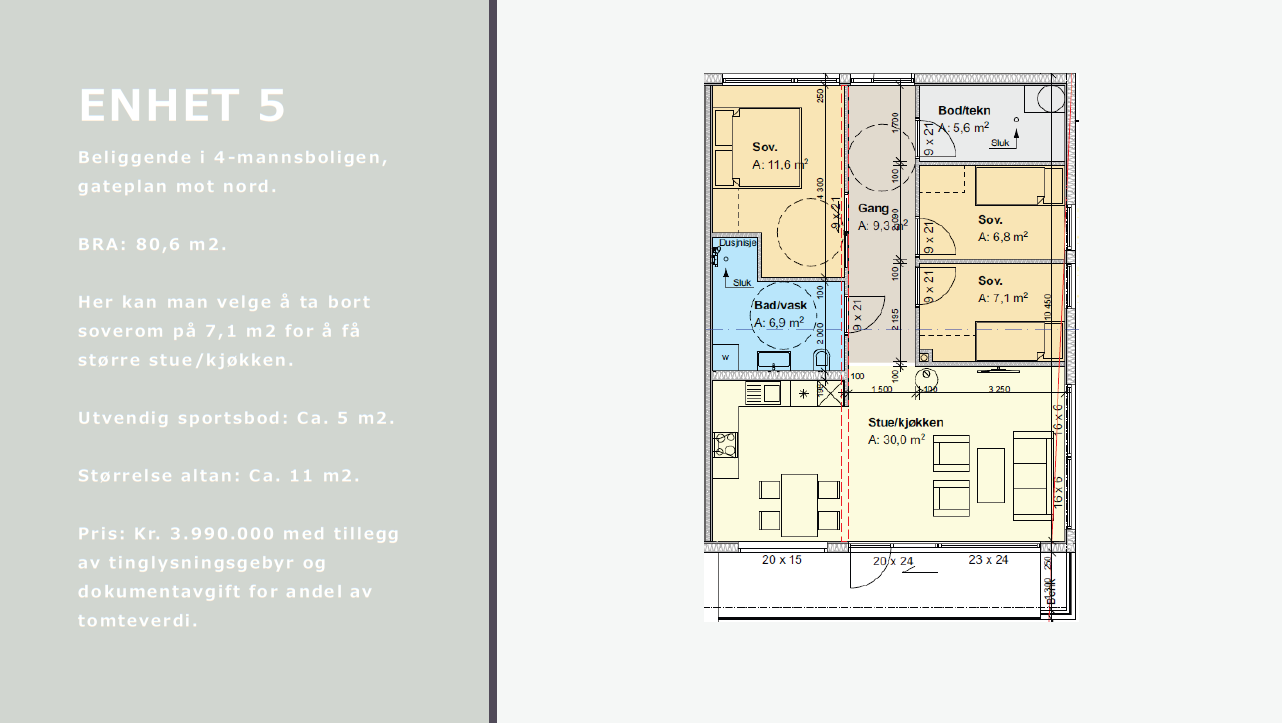
En solgt og to reservert! 6 prosjekterte leiligheter til salgs sentralt i Måløy, gate 3
Prisantydning fra
3 790 000 kr
Prisantydning til
3 990 000 kr
Kort om prosjektet
Ta kontakt for å få tilsendt fullstendig salgsprospekt og vedlegg.
Prosjektets status
Planlegging
Under sluttprosjektering
Salgsstart
Oktober 2023
Byggestart
Våren 2024
Overtakelse
Sommer 2025
Nøkkelinfo
- Boligtype
- Leilighet
- Soverom
- 3
- Primærrom
- 74 - 75 m²
- Bruksareal
- 78 - 80 m²
- Eieform
- Eier (Selveier)
Enheter i prosjektet
Sorter etter
| Enhet | P-rom | Soverom | Totalpris | |
|---|---|---|---|---|
| 1 | 74 m² | 3 | 3 796 342 kr | |
| 2 | 74 m² | 3 | 3 796 342 kr | |
| 3 | 74 m² | 3 | 3 996 342 kr | |
| 4 | 75 m² | 3 | 3 996 342 kr | |
| 5 | 75 m² | 3 | 3 996 342 kr |
Visning
Ta kontakt for å avtale visning.Beskrivelse
BYGGET
Funkishagen vil bestå av 6 treromsleiligheter, fordelt på en firemannsbolig og en tomannsbolig.
Boligene vil oppføres i tre- og betongfasade med flatt tak og få et moderne og stilrent uttrykk. Fra de store vinduene, altanene og uteområdet vendt mot sjø, vil samtlige boenheter få fantastisk utsikt over Måløy by og havn.
Ved kjøp før byggestart vil kjøperen få alternativer for overflater, fargevalg og tilvalg tilpasset sine ønsker.
INNHOLD
Alle leilighetene vil få 3 soverom, stue med åpen kjøkkenløsning, bad/wc/vaskerom og utgang til altan/terrasse.
Ved kjøp før byggestart vil kjøper kunne endre planløsning fra tre soverom til to soverom til fordel for større stue/åpen kjøkkenløsning.
UTEOMRÅDE
Funkishagen vil bli opparbeidet med terrassebord i front av leilighetene, samt en parkeringsplass hver like ved boligene. Gjesteparkering vil ligge like over veien.
Området mellom firemannsboligen og tomannsboligen blir fellesareal og vil bli opparbeidet med impregnerte terrassebord. Øvrig planert uteareal utenfor enhet 1 mot sør blir til eksklusiv bruk for enhet 1, tilsvarende for enhet 3 mot nord.
Boligene på gateplan vil ha trappefri adkomst, mens boligene i underetasjen vil ha adkomst via utvendig trapp. Her vil både godt voksne og unge finne en leilighet tilpasset sine behov.
BELIGGENHET
Funkishagen vil ha en sentral beliggenhet i etablert boligfelt i gate 3, "midt" mellom fjell og sjø. På bare få minutters gange vil man kunne være i sentrum eller i natur- og friluftsområder på Måløy stadion.
SALGSPROSESSEN
Leilighetene selges etter «første mann til mølla» prinsippet.
BYGGESTART
Planlagt byggestart er våren 2024.
INNVENDIG STANDARD
KJØKKEN
Innredning: HTH/Nordfjordkjøkkenet, farge velges av kjøper ut fra et utvalg med alternativ.
Benkeplate: I laminat, farge velges av kjøper ut fra et utvalg med alternativ.
Hvitevarer: Integrerte hvitevarer fra kvalitetsprodusent.
BAD
Vegg: Våtromsplater, farge velges av kjøper ut fra et utvalg med alternativ.
Gulv: 20 x 20 cm flis i grå farge.
Innredning: Servant, skuffer og speilskap med lys, veggopphengt toalett, dusjsdører fra kvalitetsprodusent.
OVERFLATER
Tak: Ferdigmalte takplater i standard hvitfarge (eggehvit/bomullshvit).
Vegg: Slette, ferdigmalte plater, farge velges av kjøper ut fra et utvalg med alternativ.
Gulv: Laminat Moskus Twelve 12 mm i oppholdsrom og gang. Våtromsbelegg i bod/teknisk rom.
Lister: Glatt utførelse i standard hvitfarge (eggehvit/bomullshvit). Det gjøres oppmerksom på at det vil være synlige spikerhull i listverk etter montasje.
Dører: Slette dører fra Bygg1 i standard hvitfarge (eggehvit/bomullshvit).
TILVALG
Kjøper vil få mulighet til å oppgradere innvendige overflater og standard etter tilvalg, forutsatt at kjøp gjøres før byggestart.
UTVENDIG STANDARD
FASADE
Veggfasade i betong og tre.
Sorte profiler rundt vindu, innvendig trekarm, utvendig aluminium.
Glassrekkverk på altan.
TAK
Tekket, flatt tak.
UTENOMHUSAREAL
1 stk parkeringsplasser til hver av enhetene vil bli opparbeidet på utenomhusarealet ved boligene. Asfaltert tilkomstvei og parkeringsplass til boligene.
Gjesteparkering vil bli opparbeidet med gruset toppdekke på kommunal grunn på andre siden av gaten, like i nærheten. Det planerte området utenfor leilighetene i underetasjene vil bli opparbeidet med impregnert terrassebord for et lettstelt uteområde.
Sort flettverksgjerde på mur.
TEKNISK STANDARD
TEK17
Funkishagen vil bli oppført etter TEK 17, iht. gjeldende forskrifter.
VENTILASJON
Balansert ventilasjon med varmegjenvinning.
ELEKTRISK ANLEGG
Leveres iht. NEK 400 2018. Det elektriske anlegget vil ligge skjult i vegg med unntak av på lyd-/brannvegger hvor det vil være synlig.
Plassering av bryter og stikk iht. egen tegning som utleveres i møte med elektriker. Varmekabler på bad.
Downlights i stue, kjøkken og på bad. Ellers lyspunkt i tak.
Utelys på fasade og belyste parkeringsplasser tilhørende boligene.
VVS
Eiendommen er tilknyttet offentlig vann- og avløp.
Rør-i-rør opplegg skjult i konstruksjon.
Varmtvannsbereder i bod og opplegg for vaskemaskin i bad eller i bod.
OPPVARMING
Varmekabler på bad.
Stålpipe med vedovn i stue.
GENERELLE FORBEHOLD
Vi gjør oppmerksom på at utbygger har rett til å foreta mindre endringer/justeringer.
Tegningene/illustrasjoner i annonsen kan inneholde element av oppgraderinger og er ikke å se på som kontraktsdokument.
Avvik kan forekomme fra illustrasjonsbildene.
Dersom det er avvik mellom tegninger, beskrivelse i prosjekt eller denne annonsen er det alltid leveransebeskrivelsen i kontrakten som gjelder.
Nærområdet
UNU Eiendomsutvikling AS
Annonsene kan være mangelfulle i forhold til lovpålagt opplysningsplikt. Før bindende avtale inngås oppfordres interessenter til å innhente komplett informasjon fra meglerforetaket, selger eller utleier.















