Bildegalleri

Halvpart av tomannsbolig med 4 soverom, 2 stuer, WC i begge etasjer og stor og åpen kjøkken/stueløsning med moderne kjøkken. Foto: EFKT (Hamish Grey)
Ulvevegen 26
B - Delikat bolig med moderne kjøkken i eikefarge. Egen tomt med skjermet hage. Terrasse på begge sider av boligen.
Prosjektets status
Planlegging
Ferdig.
Salgsstart
Salget er igangsatt.
Byggestart
Bygging er igangsatt.
Overtakelse
Oktober 2023 - januar 2024.
Nøkkelinfo
- Boligtype
- Tomannsbolig
- Soverom
- 4
- Rom
- 6
- Internt bruksareal
- 136 m² (BRA-i)
- Bruksareal
- 141 m²
- Eksternt bruksareal
- 5 m² (BRA-e)
- Balkong/Terrasse
- 61 m² (TBA)
Fasiliteter
Beskrivelse
Velkommen til Ulvevegen 26 B!
Nøkkelferdig bolig nylig ferdigstilt og klar for overtakelse. Den ledige boligen er i byggets sørvestlige ende og har svært gode solforhold. Her får du sentral beliggenhet med trygg og kort gange til Frol oppvekstsenter og Frol barnehage. Her er det tilrettelagt for en enkelt hverdag med nærhet til de fleste funksjoner man trenger i hverdagen, samt 4 soverom, 2 stuer og toalett i begge etasjer. Parkering i carport med takoverbygg inn til inngangsdøra. Boligene er oppgradert med blant annet spotter og ledskinner i himling på stue/kjøkken, parkett på gulv, kjøkken i eikefarge med sort benkeplate og integrerte hvitevarer, samt bad med beige fliser i ulike størrelser og veggfestet toalett. Royalimpregnerte terrassebord og utvendig kledning malt to strøk.
Boligen har energikarakter B som gir muligheten for Grønt Boliglån med svært gode rentebetingelser.
Kort om eiendommen
Velkommen til Ulvevegen 26! På eiendommen er 2 nøkkelferdige boliger nylig ferdigstilt og klar for overtakelse. Her får du sentral beliggenhet med trygg og kort gange til Frol oppvekstsenter og Frol barnehage. Her er det tilrettelagt for en enkelt hverdag med nærhet til de fleste funksjoner man trenger i hverdagen, samt 4 soverom, 2 stuer og toalett i begge etasjer. Parkering i carport med takoverbygg inn til inngangsdøra. Boligene er oppgradert med blant annet spotter og ledskinner i himling på stue/kjøkken, parkett på gulv, kjøkken i eikefarge med sort benkeplate og integrerte hvitevarer, samt bad med beige fliser i ulike størrelser og veggfestet toalett. Royalimpregnerte terrassebord og utvendig kledning malt to strøk.
Innhold
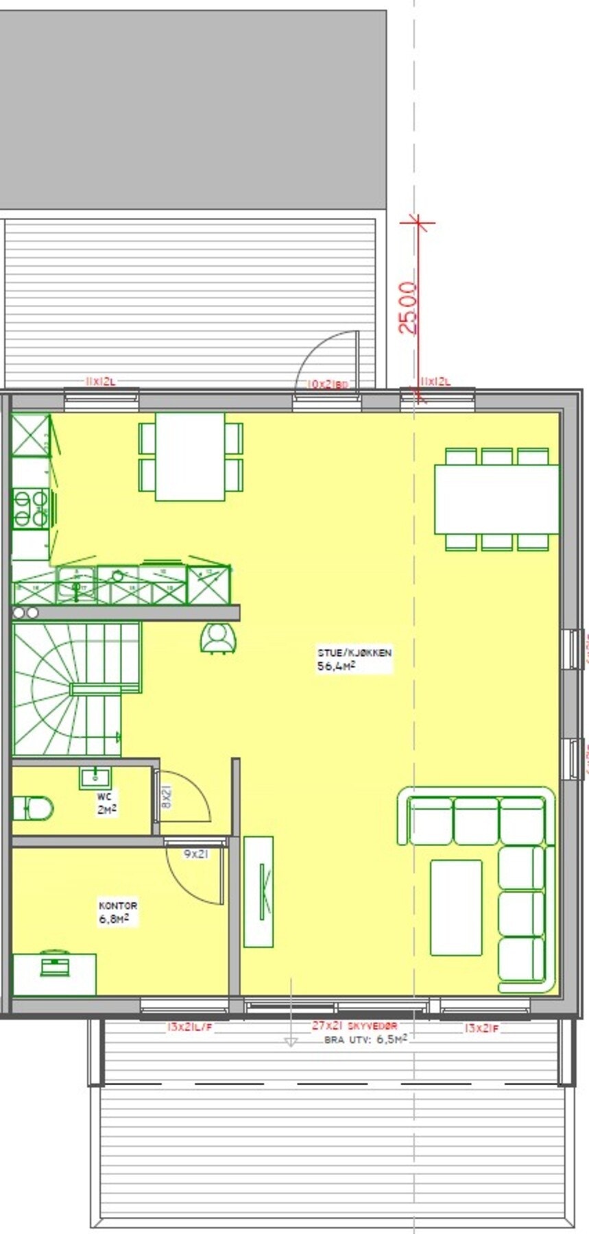
1. etasje: Gang, TV-stue, 3 soverom, bad/vaskerom og garderobe/bod.
2. etasje: Stue/kjøkken, wc og kontor/sov.
I tillegg kommer carport og utvendig sportsbod.
Oppvarming
Luft til luft varmepumpe, samt vedovn. Elektriske varmekabler i ytterste del i gang, samt på bad/vaskerom. Ellers oppvarming med panelovner.
Beskaffenhet
Tomten er flat og beplantet med plen.
Beliggenhet
Eiendommen ligger i ei rolig blindgate uten gjennomgangstrafikk. Her bor det barn i alle aldre, det er gode oppvekstsvilkår og et hyggelig og trygt bomiljø. Barnehage og barneskole i umiddelbar nærhet. Eiendommen ligger fint til på Frol med kort avstand til bl.a. Levanger sentrum med offentlige kontorer, banker, forretninger, jernbane, etc. Like i nærheten finner du også Nord Universitet. Trønderhallen med svømmehall, Frol oppvekstsenter, barnehager og Røstadlandet med fine turstier, Røstad legesentret og apotek.
Adkomst
Kjør nordover fra Levanger sentrum. Ta til høyre i første rundkjøring inn i Okkenhaugvegen. Hold denne veien et godt stykke, og ta etter hvert til høyre inn i Sommervegen og deretter første til venstre inn i Ulvevegen. Du vil da etter hvert få boligene på høyre hånd.
Parkeringsforhold
I carport utenfor inngangspartiet, samt på egen gårdsplass. Ta kontakt ved ønske om elbillader.
Adgang til utleie
Det er kun en bruksenhet i boligen.
Regulering
Eiendommen ligger i et uregulert område, men ligger innenfor et område avsatt til ''boligbebyggelse - nåværende'' iht. ''Kommunedelplan Levanger'' id L2013007
For kopi av hele reguleringsplanen og kommunedelplanen ta kontakt med megler. Vi oppfordrer interessenter til å gjøre seg kjent med disse.
Ferdigattest
Det er utstedt ferdigattest den 06.12.2023.
Beskrivelse (type bolig)
Halvpart av tomannsbolig
Diverse
Arealoppmåling er foretatt av takstmann.
Ettersom boligen er av nyere dato vil kravene til mangler etter avhendingsloven lettere være oppfylt enn ved kjøp av eldre bolig.
Det stilles ikke garanti iht. avhendingslovens § 2-11, da eiendommen selges senere enn 6 mnd. etter ferdigstillelse.
Det er ikke samsvar mellom byggegodkjente tegninger mottatt fra kommunen og dagens utnyttelse av eiendommen. Dette gjelder:
- Soverom i 2. etasje er godkjent som kontor. Dette er ikke en søknadspliktig endring.
Hvitevarer / tilbehør
Integrerte hvitevarer på kjøkken medfølger. Dette gjelder kombiskap kjøl/frys, komfyr, platetopp og vaskemaskin.
Ligningsverdi (formuesverdi)
Da eiendommen er nyoppført, foreligger ikke skattemessig formuesverdi p.t., men vil bli fastsatt av skatteetaten
Boligselgerforsikring
Selger har ikke kjøpt boligselgerforsikring, men har fylt ut egenerklæringsskjema. Kjøper oppfordres til å gjennomgå innholdet i skjemaet i forkant av budgivning.
Boligkjøperforsikring
EiendomsMegler 1 formidler Boligkjøperforsikring fra HELP Forsikring AS. Det er en rettshjelpsforsikring som gir trygghet og profesjonell juridisk hjelp dersom det oppdages uventede feil eller mangler de neste fem årene. Du kan ta kontakt med megler for å få informasjon om boligkjøperforsikring eller lese mer på help.no. Forsikringen tilbys kun til privatpersoner som kjøper eiendom til eget eller nærmeste families bruk, og det er en forutsetning at kjøpsavtalen reguleres av avhendingsloven. Ved kjøp av landbrukseiendom/ småbruk, er det kun forhold tilknyttet til våningshuset som omfattes av forsikringen. For nærmere detaljer henvises det til forsikringsvilkårene. Megler mottar tegningsprovisjon fra HELP.
Nyttige lenker
Nærområdet
EiendomsMegler 1 Levanger
Annonseinformasjon
| FINN-kode | 299789865 |
|---|---|
| Sist endret | 11. des. 2025 11:02 |
| Referanse | 512210133 |
Annonsene kan være mangelfulle i forhold til lovpålagt opplysningsplikt. Før bindende avtale inngås oppfordres interessenter til å innhente komplett informasjon fra meglerforetaket, selger eller utleier.































