Bildegalleri

Velkommen til en lys og lekker leilighet i 3. etasje med solrik balkong.
Husebyenga hage - bygg 2
Brumunddal - ny og moderne leilighet i sentrum. Perfekt for førstegangskjøpere!
Prosjektets status
Planlegging
2022
Salgsstart
2022
Byggestart
2023
Overtakelse
2025
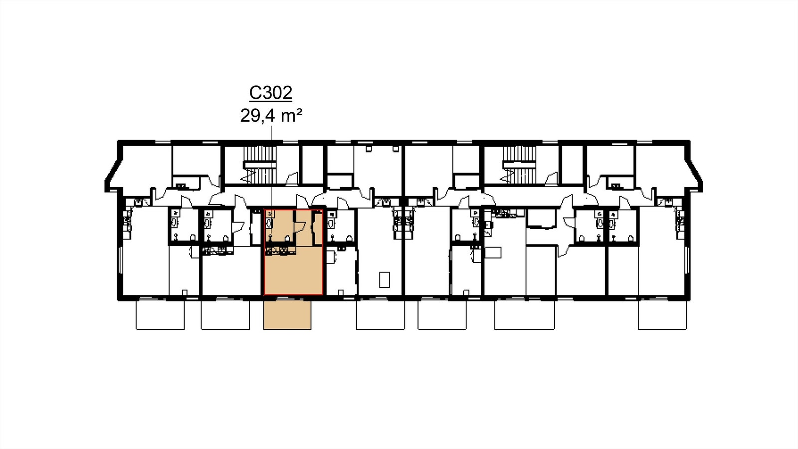
Nøkkelinfo
- Boligtype
- Leilighet
- Etasje
- 3
- Soverom
- 1
- Rom
- 1
- Internt bruksareal
- 29 m² (BRA-i)
- Bruksareal
- 34 m²
- Eksternt bruksareal
- 5 m² (BRA-e)
- Balkong/Terrasse
- 8 m² (TBA)
Fasiliteter
Beskrivelse
Nytt leilighetsbygg med flotte fellesarealer både ute og inne;
- nyoppført leilighet med lave kjøpsomkostninger
- påkostet kjøkken med moderne farger
- stor stue med gode møbleringsmuligheter
- gjennomgående leilighet med godt innfall av lys fra begge sider
- komfortabel og økonomisk oppvarming med vannbåren gulvvarme
- rimelige boutgifter
- best oppnåelige energikarakter
- oppvarmet garasjekjeller
- heis
- felles gjesteleilighet
- bildelingsordning
- flott hage med hyggelige uteplasser
Ansvarlig megler
Milena Løftingsmo
eiendomsmegler
Nyttige lenker
Nærområdet
EiendomsMegler 1 Østlandet - avd. Nybygg Innlandet
Annonseinformasjon
| FINN-kode | 298665176 |
|---|---|
| Sist endret | 12. des. 2025 10:00 |
| Referanse | 16220005 |
Annonsene kan være mangelfulle i forhold til lovpålagt opplysningsplikt. Før bindende avtale inngås oppfordres interessenter til å innhente komplett informasjon fra meglerforetaket, selger eller utleier.
















