Bildegalleri

Plantegning
Inaktiv
Risør Platå
Prosjekterte leiligheter, eneboliger i kjede og frittliggende eneboliger. Ingen boplikt!
Prisantydning5 490 000 kr
Prosjektets status
Planlegging
Fullført
Salgsstart
Salg pågår
Byggestart
Se komplett salgsoppgave
Overtakelse
Ca 12 mnd fra vedtatt byggestart
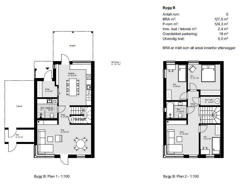
Nøkkelinfo
- Boligtype
- Enebolig
- Soverom
- 3
- Rom
- 5
- Primærrom
- 124 m²
- Bruksareal
- 127 m²
Beskrivelse
Ansvarlig megler
Arild Aasen
NB: Knappen for å vise hele beskrivelsen har kun en visuell effekt.
NB: Knappen for å vise hele beskrivelsen har kun en visuell effekt.
Nyttige lenker
Nærområdet
Eiendomsmegler Norge Arendal
Annonseinformasjon
| FINN-kode | 297586107 |
|---|---|
| Sist endret | 18. mars 2025 10:51 |
| Referanse | SORM31.23246 |
Annonsene kan være mangelfulle i forhold til lovpålagt opplysningsplikt. Før bindende avtale inngås oppfordres interessenter til å innhente komplett informasjon fra meglerforetaket, selger eller utleier.

