Bildegalleri

Velkommen til Skjerdingen 221!
Solgt
Ringebufjellet - NY PRIS! Fritidseiendom med nydelig beliggenhet ved Skjerdingen Høyfjellshotell. Flott utsikt. 3 sov.
Prisantydning990 000 kr
- Omkostninger
- 38 650 kr
- Totalpris
- 1 028 650 kr
- Kommunale avg.
- 1 670 kr per år
- Eiendomsskatt
- 1 915 kr per år
- Formuesverdi
- 318 882 kr
Nøkkelinfo
- Beliggenhet
- På fjellet
- Boligtype
- Hytte
- Eieform
- Eier (Selveier)
- Primærrom
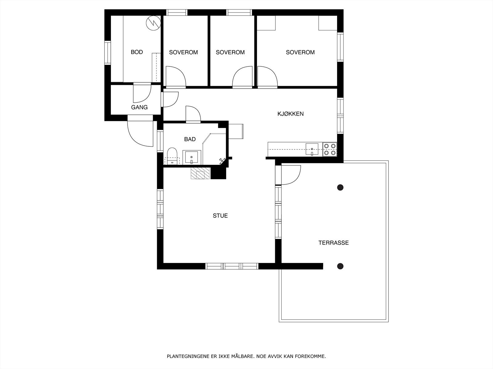
- 64 m²
- Bruksareal
- 68 m²
- Renovert år
- 2020
- Byggeår
- 1985
- Soverom
- 3
- Rom
- 4
- Energimerking
- G - Oransje
- Overtakelse
- Overtakelse etter avtale
Fasiliteter
Innlagt vann
Alpinanlegg
Balkong/Terrasse
Barnevennlig
Bilvei frem
Hage
Peis/Ildsted
Rolig
Utsikt
Fiskemulighet
Innlagt strøm
Offentlig vann/kloakk
Turterreng
Om boligen
Velkommen til Ringebu og Skjerdingen 221!
Her kan vi presentere en fritidseiendom med flott beliggenhet i Ringebufjellet, like ved Skjerdingen Høyfjellshotell. Hytta har tre soverom, stue, kjøkken, bad og bod. Oppvarming med vedfyring og strøm, elektriske varmekabler i gulvet på badet. Stor, dels overbygget terrasse med gode solforhold. Fritidsboligen selges delvis møblert. Hvitevarer medfølger.
Umiddelbar nærhet til oppkjørte skiløyper og fint turterreng, samt fiske- og jaktmuligheter. Fin utsikt utover området og fjellene rundt.
Velkommen til visning!
Benytt egen knapp for visningspåmelding eller kontakt Hans Petter Carlsson, Eiendomsmegler MNEF på tlf. 911 25 518.
Selger kan også kontaktes ved interesse, tlf. 906 78 774.
Her kan vi presentere en fritidseiendom med flott beliggenhet i Ringebufjellet, like ved Skjerdingen Høyfjellshotell. Hytta har tre soverom, stue, kjøkken, bad og bod. Oppvarming med vedfyring og strøm, elektriske varmekabler i gulvet på badet. Stor, dels overbygget terrasse med gode solforhold. Fritidsboligen selges delvis møblert. Hvitevarer medfølger.
Umiddelbar nærhet til oppkjørte skiløyper og fint turterreng, samt fiske- og jaktmuligheter. Fin utsikt utover området og fjellene rundt.
Velkommen til visning!
Benytt egen knapp for visningspåmelding eller kontakt Hans Petter Carlsson, Eiendomsmegler MNEF på tlf. 911 25 518.
Selger kan også kontaktes ved interesse, tlf. 906 78 774.
NB: Knappen for å vise hele beskrivelsen har kun en visuell effekt.
NB: Knappen for å vise hele beskrivelsen har kun en visuell effekt.
Salgsoppgaven beskriver vesentlig og lovpålagt informasjon om eiendommen
Se komplett salgsoppgaveNyttige lenker
Nærområdet
Meglerhuset Østlandet AS
Annonseinformasjon
| FINN-kode | 297496988 |
|---|---|
| Sist endret | 16. feb. 2024 15:34 |
| Referanse | GAR14.2335 |
Annonsene kan være mangelfulle i forhold til lovpålagt opplysningsplikt. Før bindende avtale inngås oppfordres interessenter til å innhente komplett informasjon fra meglerforetaket, selger eller utleier.





























