Bildegalleri

Velkommen til Tordenskiolds gate 5!
Sjelden og innholdsrik bygård | En hovedleilighet og to mindre leiligheter | Gode leieinntekter | 2 solrike takterrasser
Nøkkelinfo
- Boligtype
- Bygård/Flermannsbolig
- Eieform
- Eier (Selveier)
- Soverom
- 5
- Internt bruksareal
- 211 m² (BRA-i)
- Bruksareal
- 261 m²
- Eksternt bruksareal
- 50 m² (BRA-e)
- Balkong/Terrasse
- 30 m² (TBA)
- Byggeår
- 1843
- Energimerking
- G - Rød
- Tomt
- Eiet
Fasiliteter
Om boligen
Kvaliteter verdt å merke seg:
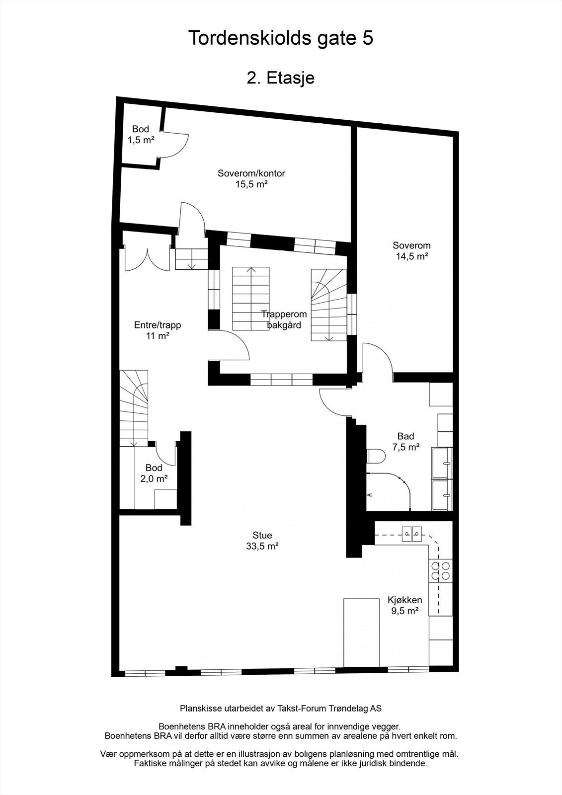
- Hovedleilighet over to plan med bla. romslig stue, to bad og tre soverom.
- Tregulv i eik i store deler av hovedleiligheten.
- To solrike takterrasser på henholdsvis 12m² og 17,5m².
- To av boenhetene er utleid og leieforholdene medfølger.
- Svært gode kollektivforbindelser i form av buss, trikk og tog i umiddelbar nærhet.
- Mulighet for parkering i boligsone eller parkeringshus i nærheten.
- Mye bodplass både i hovedleiligheten og i kjeller.
- Eget vaskerom i kjeller.
Velkommen!
Salgsoppgaven beskriver vesentlig og lovpålagt informasjon om eiendommen
Se komplett salgsoppgaveNyttige lenker
Nærområdet
Heimdal Eiendomsmegling avd. Sentrum
Prisstatistikk
Tordenskiolds gate 5
på annonsen
prisantydning per kvadratmeter
Prisfordeling
Pris per m² ligger 10 289 kr over snittet for bygårder/flermannsboliger i Trondheim Sentrum.
Grafen viser antall bygårder/flermannsboliger solgt i Trondheim Sentrum siste året fordelt på pris per m² - totalt 3 bygårder/flermannsboliger
Antall boliger
Kvadratmeterpris tilsvarer prisantydning pluss fellesgjeld per kvadratmeter (p-rom eller BRA-i). Prisene i grafen er avrundet til nærmeste 1000 kr.
Annonseinformasjon
| FINN-kode | 296905426 |
|---|---|
| Sist endret | 27. juni 2024 11:14 |
| Referanse | 6-23-0207 |
Annonsene kan være mangelfulle i forhold til lovpålagt opplysningsplikt. Før bindende avtale inngås oppfordres interessenter til å innhente komplett informasjon fra meglerforetaket, selger eller utleier.









































